+13
- Home
- Emprendimientos
- ÚNICO - Junín 777
Emprendimiento
ÚNICO - Junín 777
Junín 777, C1026ABO Cdad. Autónoma de Buenos Aires, Argentina
EstadoEn Construcción
Posesión Aproximada ennoviembre de 2028
Desde
USD79.064
Hasta
USD396.515
Destacado
Gold
Detalles
Emprendimiento
Edificio
Ubicación
Amenities
- Gimnasio
- Laundry
- Piscina
- Solarium
- SUM
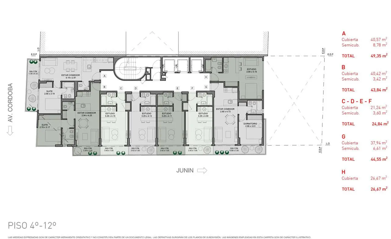
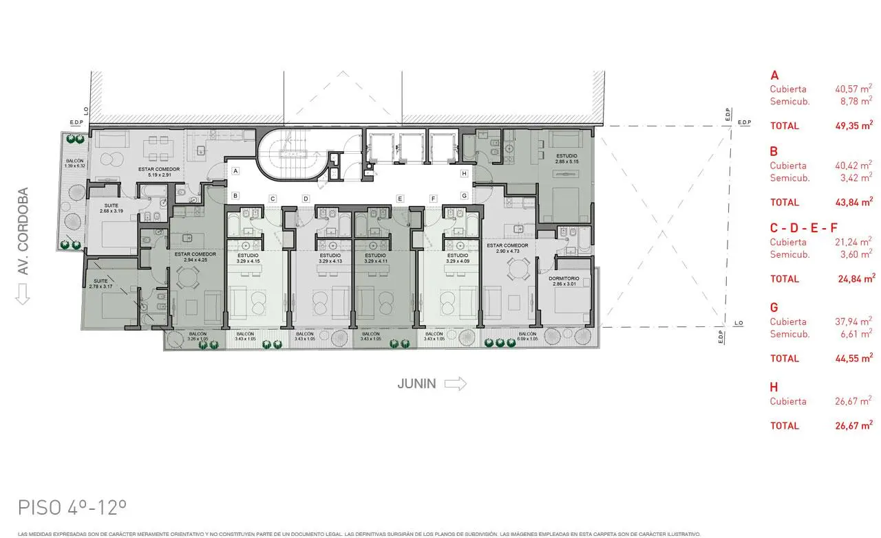
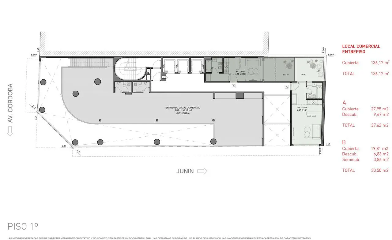
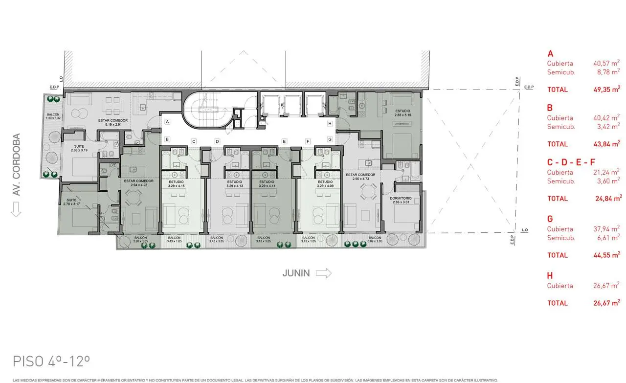
Planos
Emprendimiento1 / 9
Unidades
Servicios
- Electricidad
- Pavimento
- Alcantarillado
- Agua corriente
ÚNICO CÓRDOBA es un desarrollo de 15 pisos ubicado en la esquina de Av. Córdoba y Junín, frente a la renovada Plaza Houssay, un punto estratégico donde convergen vida universitaria, servicios, cultura y transporte.
Ofrece estudios, 1 y 2 ambientes y unidades"de 4 amb con terrazas, todas con plantas eficientes y excelente luz. Amenities premium.
Ideal para estudiantes, inversores, turismo y pied-à-terre por su conectividad y servicios inmediatos.
Una ubicación donde la demanda es constante y la rentabilidad, natural. Donde la vida universitaria, la ciudad y la inversión se encuentran en su mejor versión.
La implantación en gran esquina con más de 42 metros de frente le otorga presencia urbana, excelente iluminación natural y una cualidad buscada por inversores: visibilidad, seguridad y alto flujo peatonal.
- Uno de los mayores polos universitarios del país: Medicina, Económicas, Farmacia, Odontología, Clínicas.
- Presencia continua de estudiantes, profesionales, médicos y visitantes del interior.
- Cercanía inmediata a Recoleta, Av. Santa Fe, Av. Pueyrredón y Av. 9 de Julio.
- Gastronomía, mercados, bibliotecas, centros médicos, coworkings y oferta cultural a metros.
- Subte D, múltiples líneas de colectivo y tránsito peatonal seguro.
- Alta ocupación garantizada para alquiler tradicional y temporario.
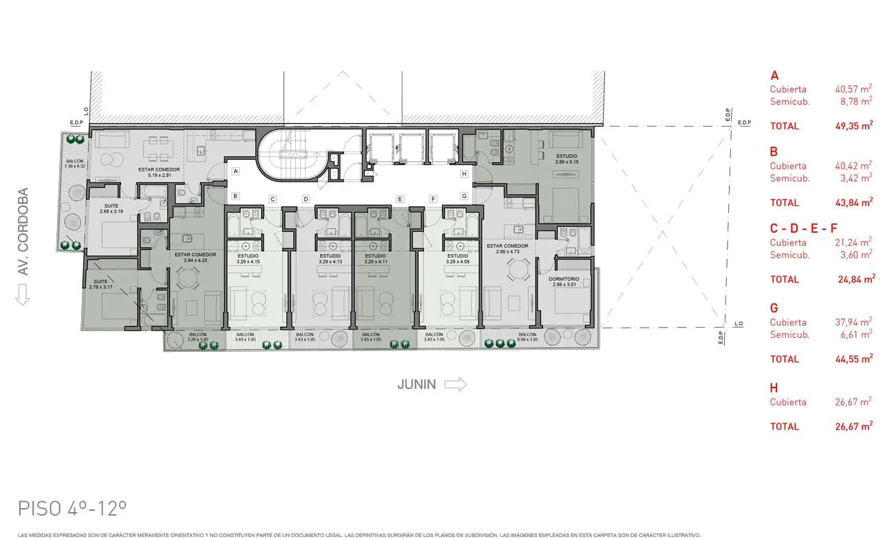
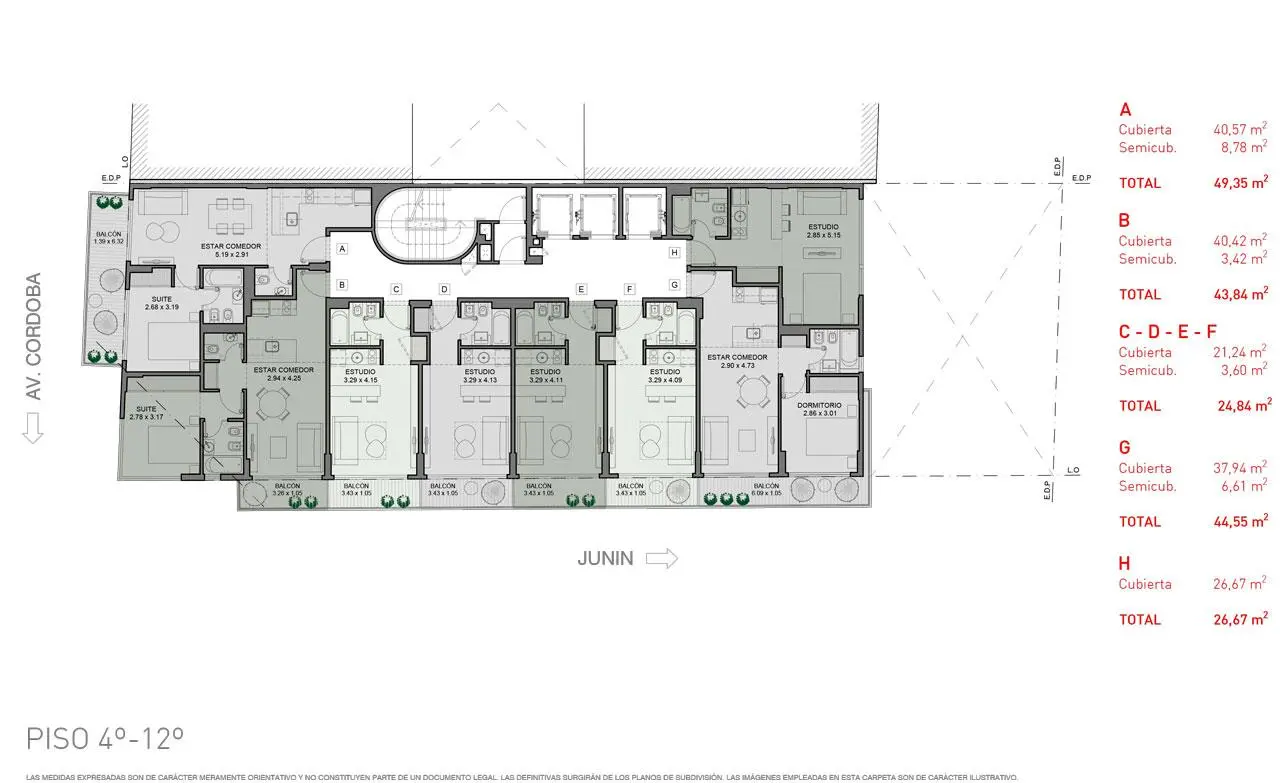
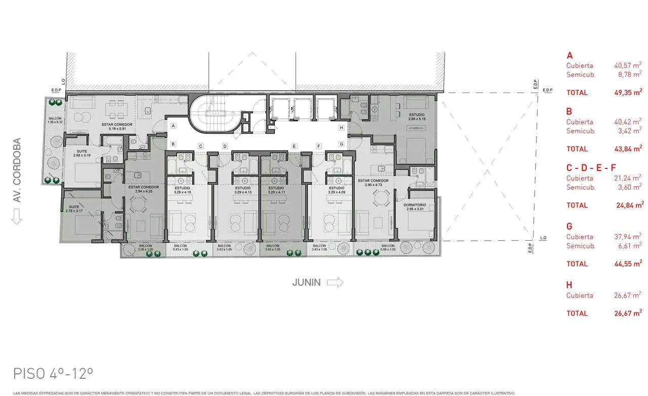
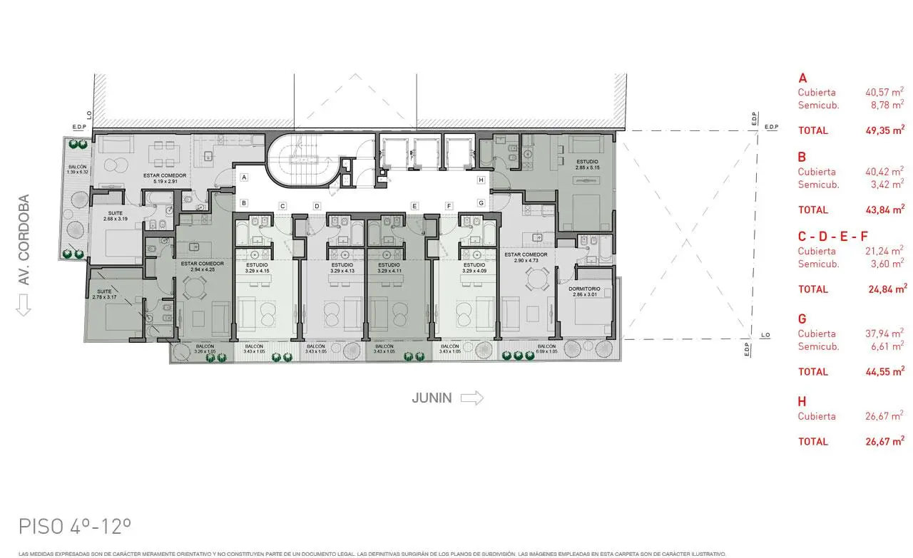
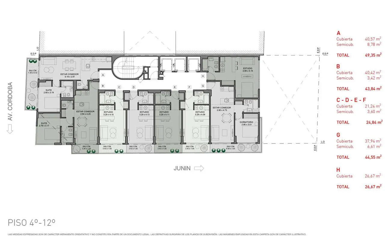
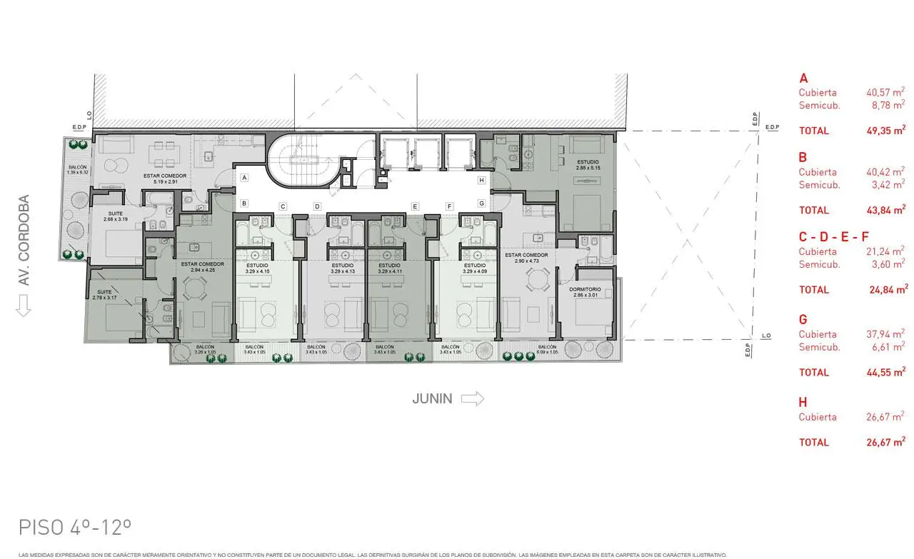
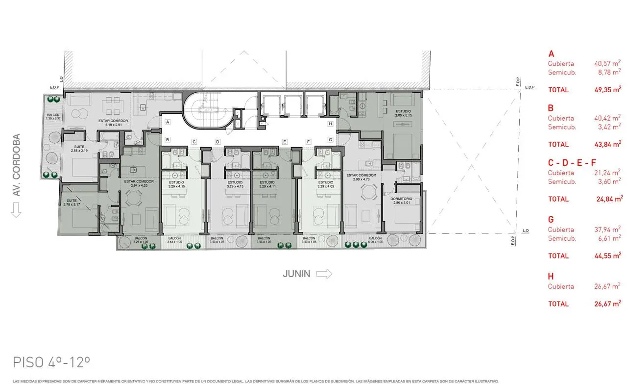
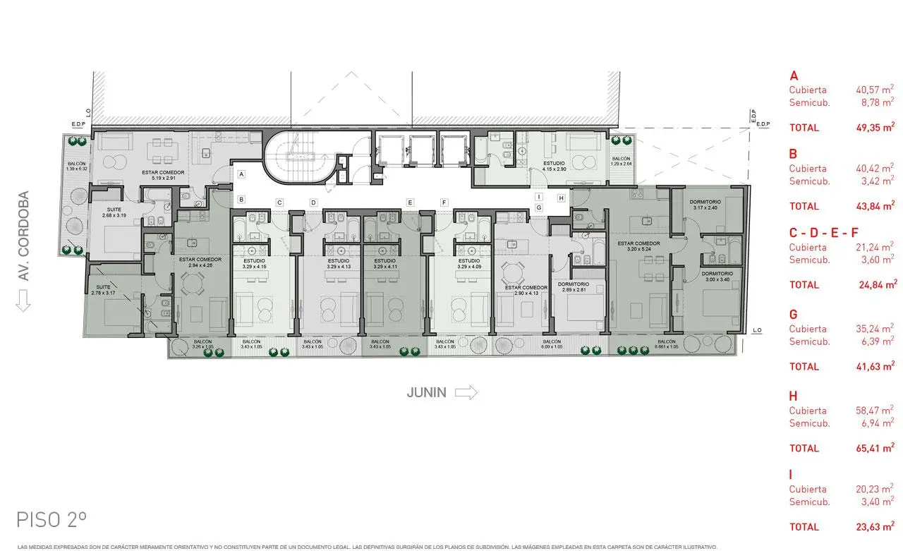
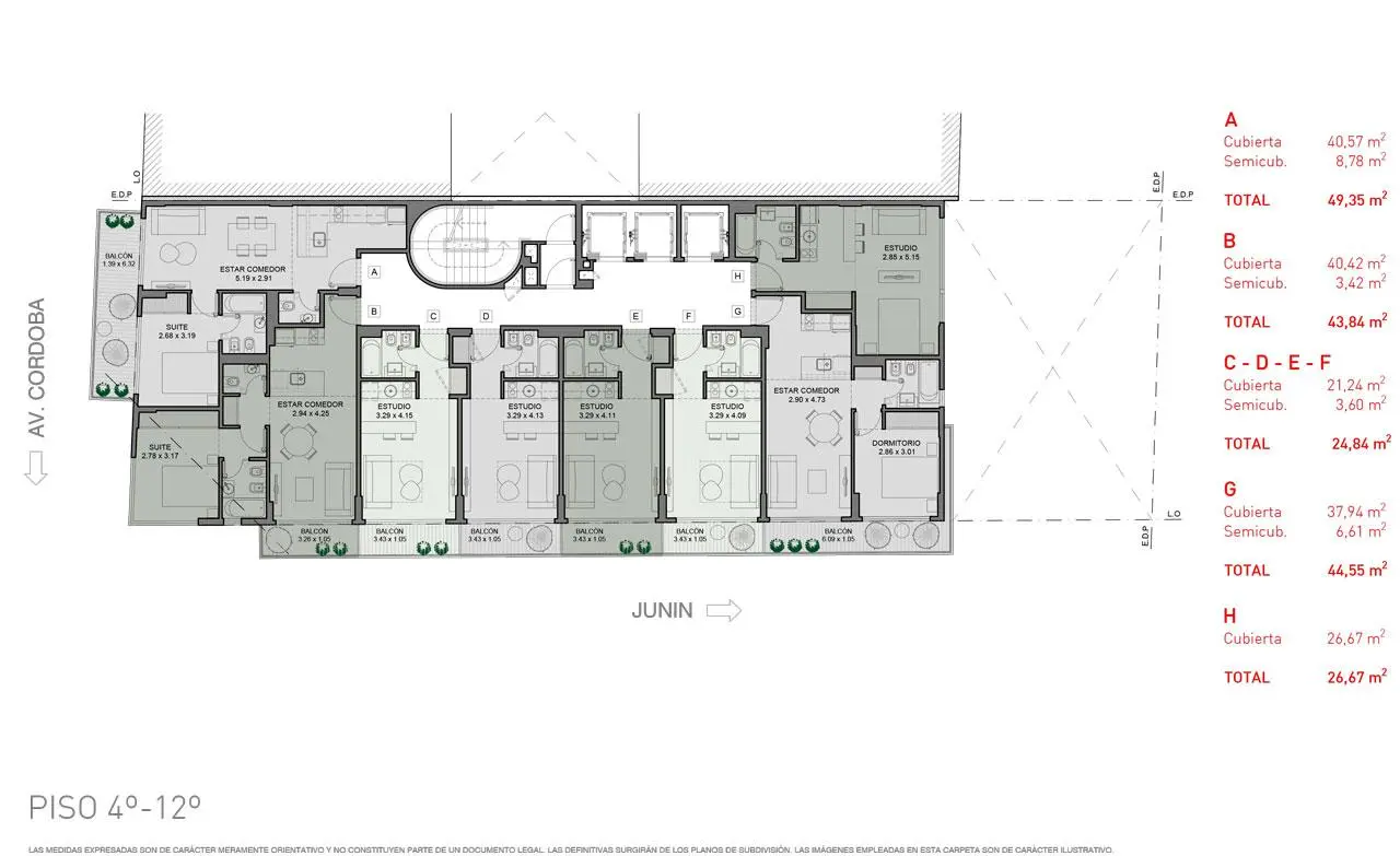
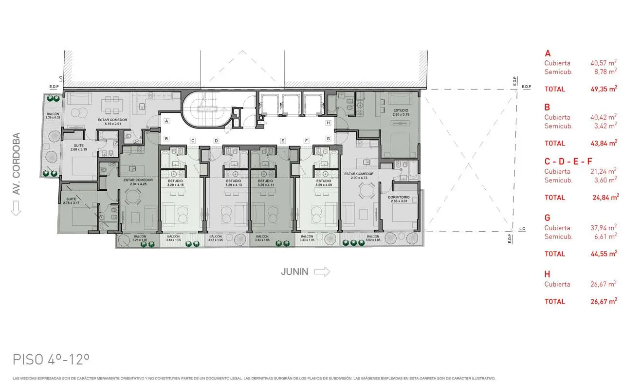
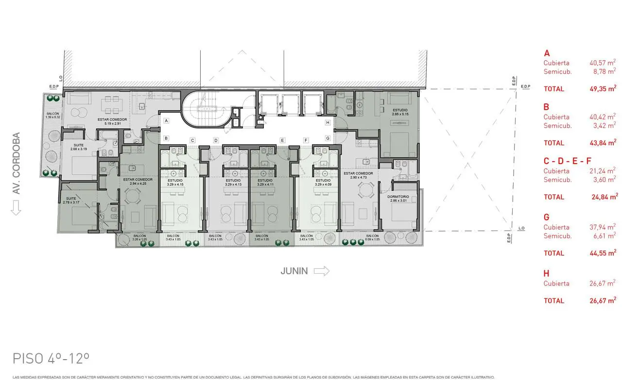
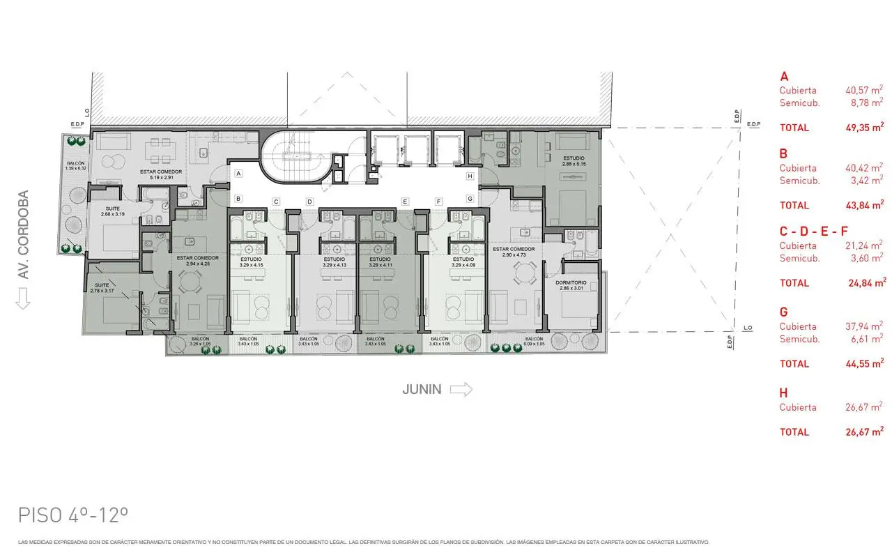
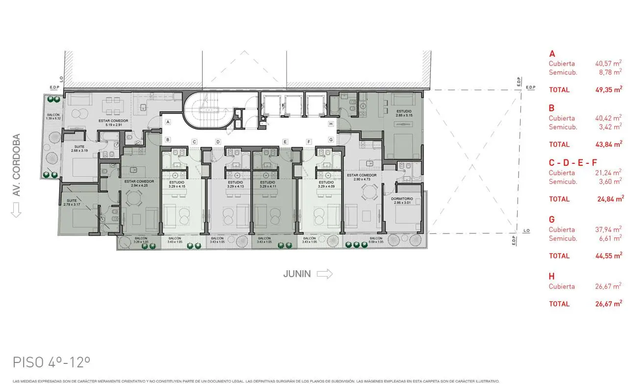
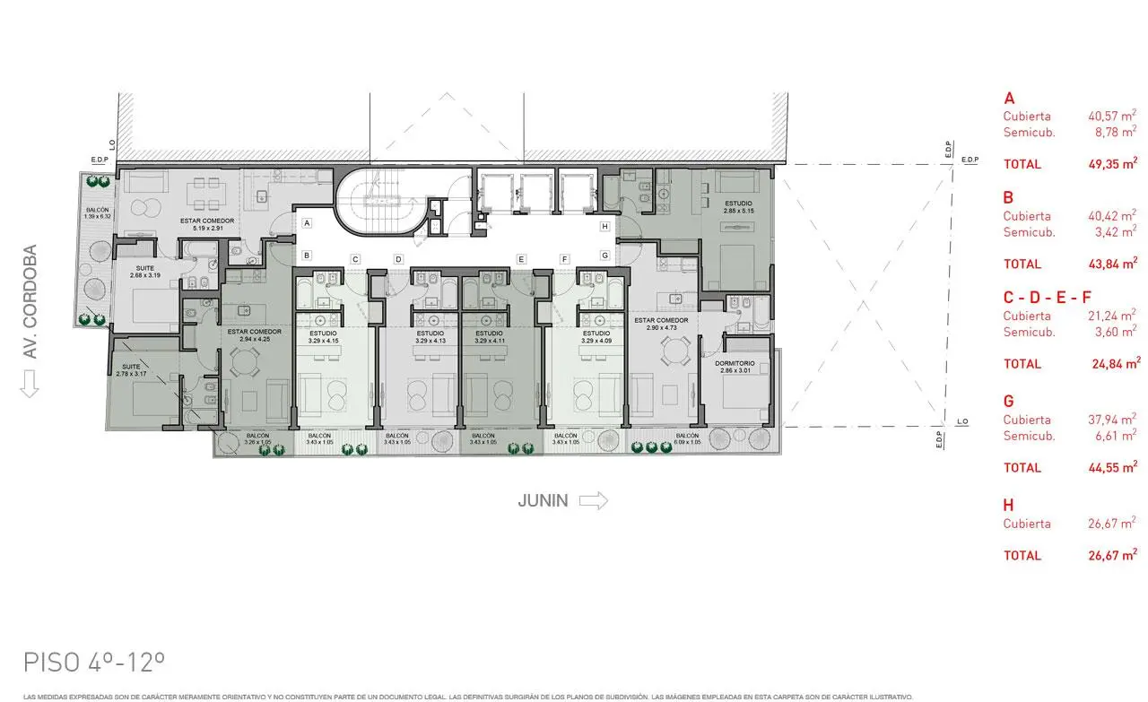
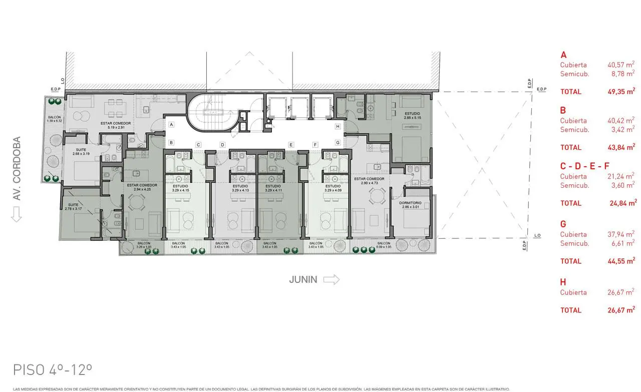
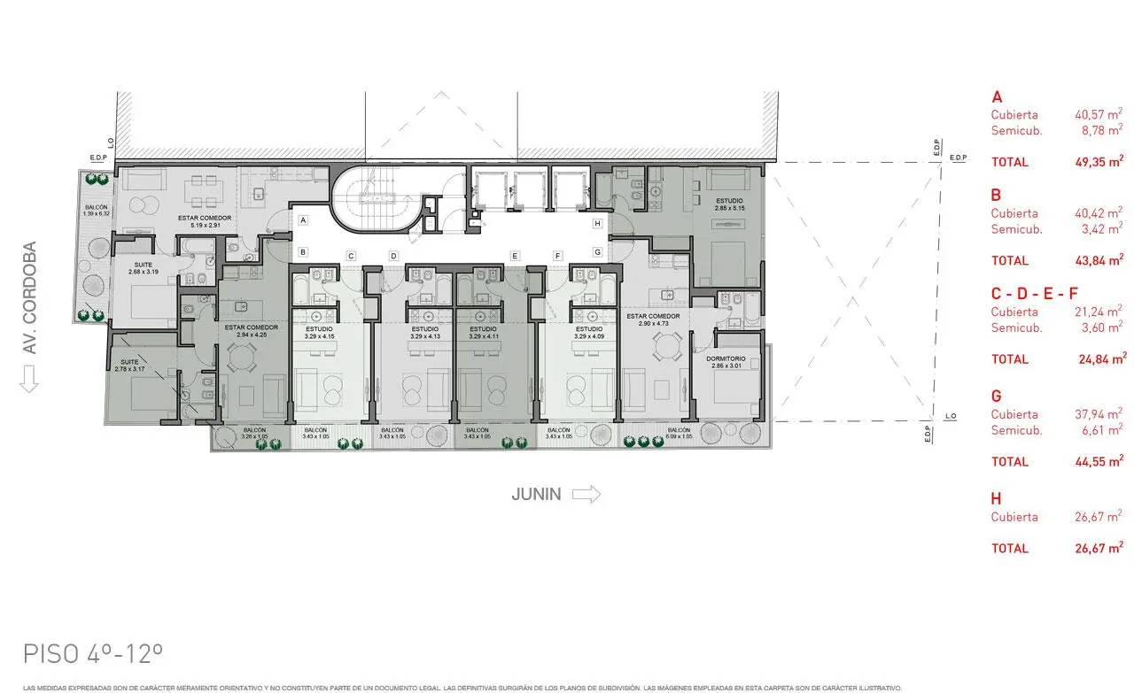
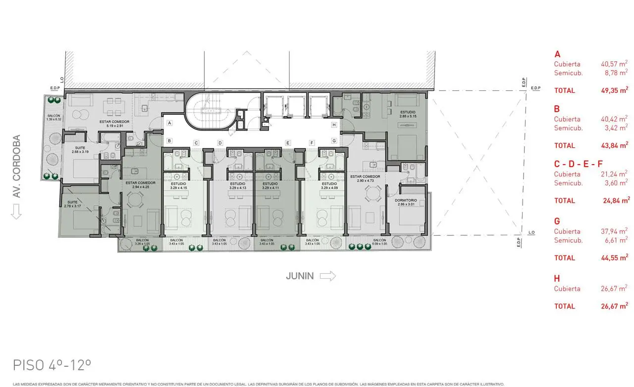
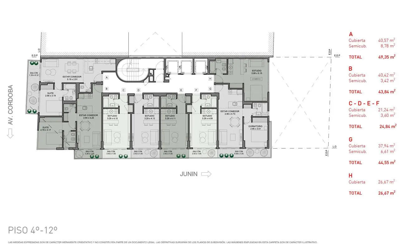
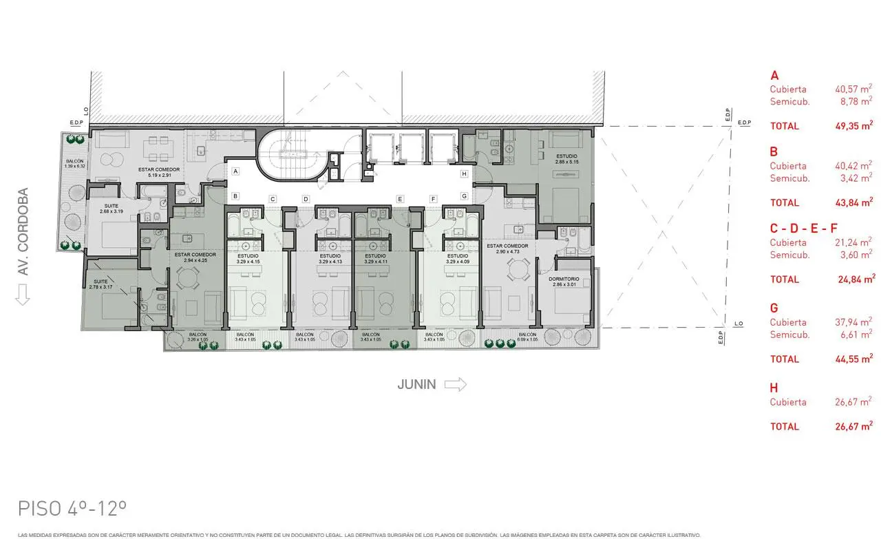
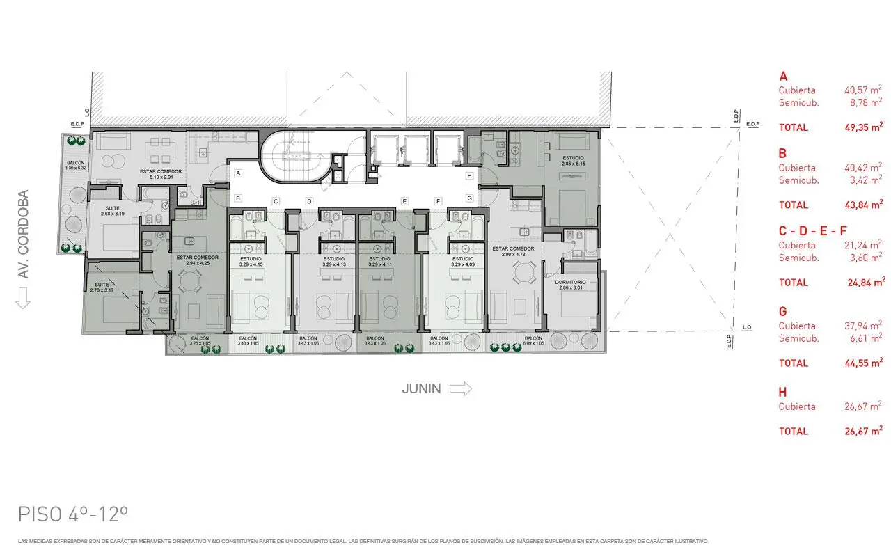
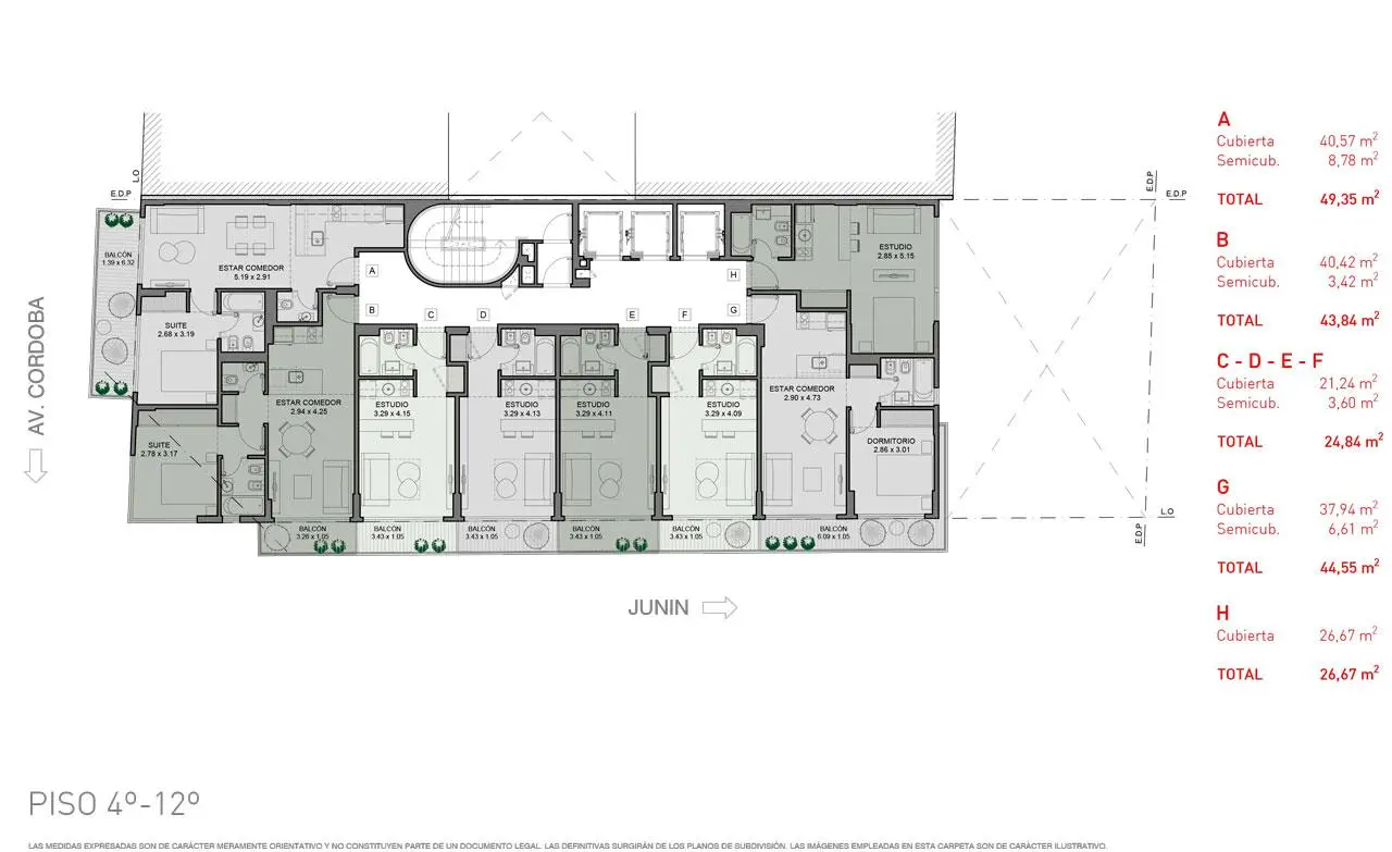
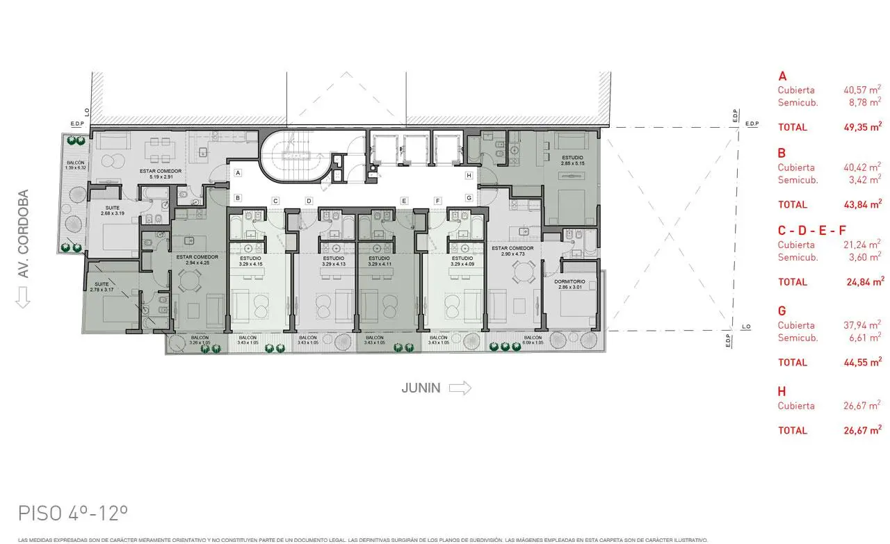
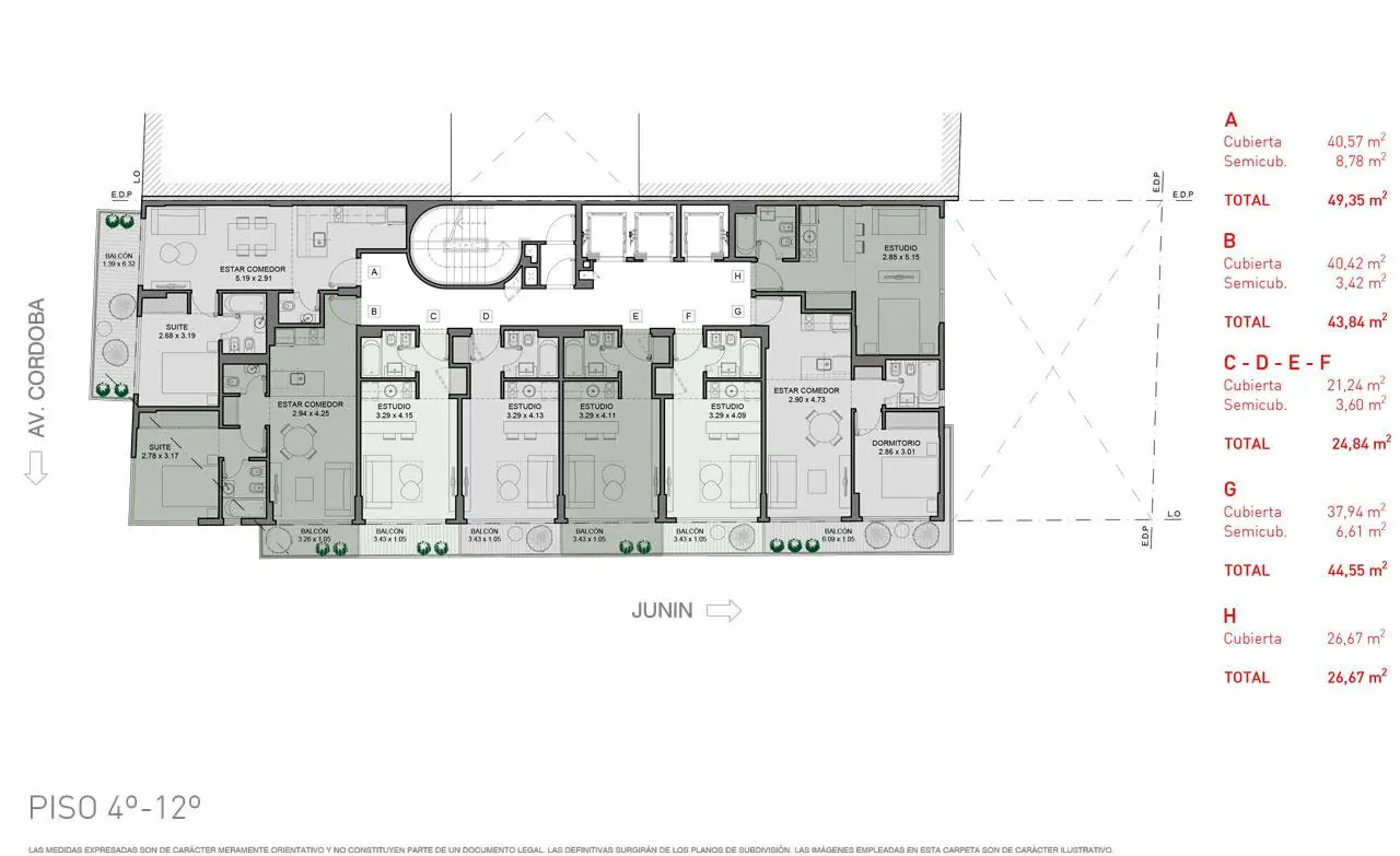
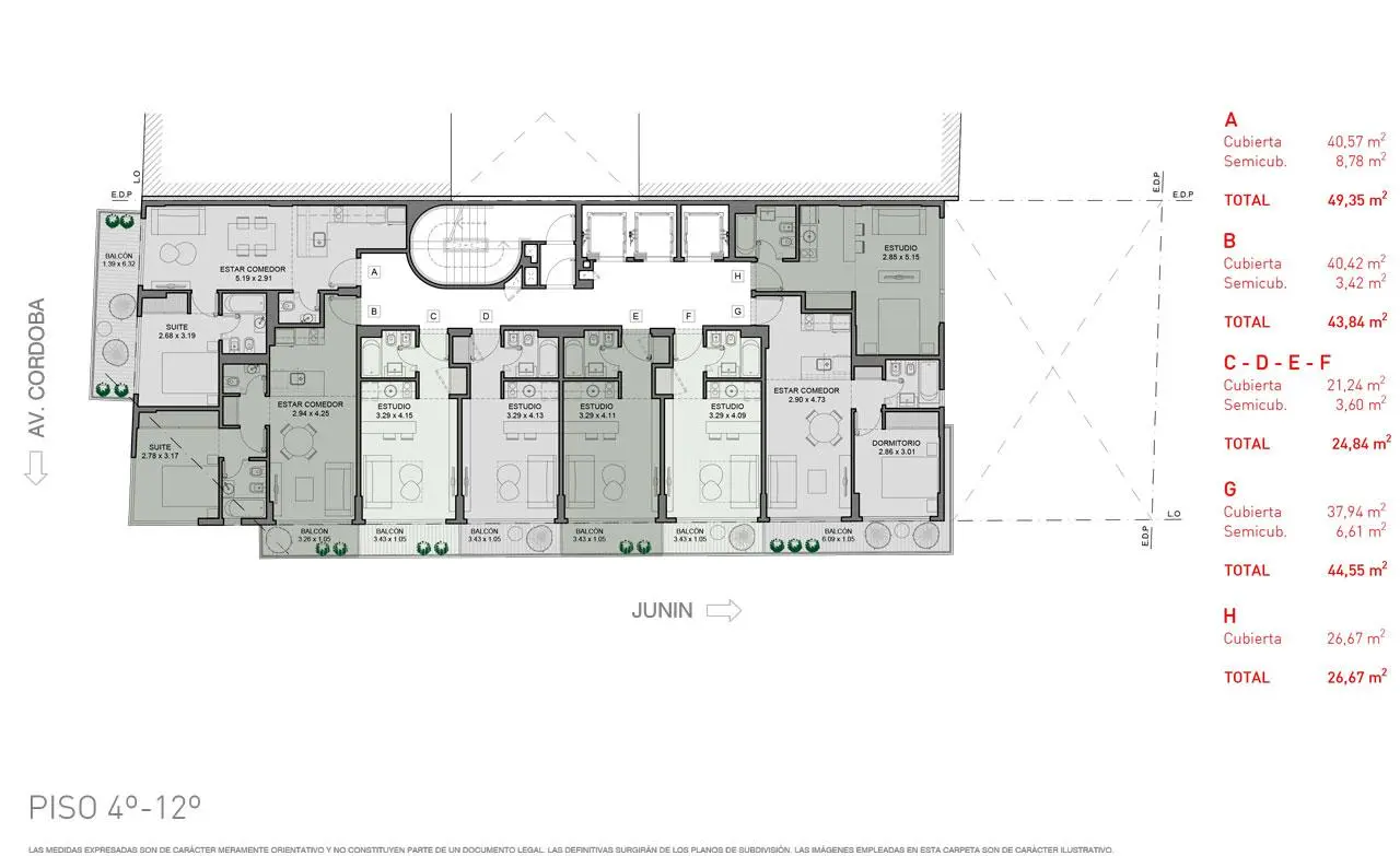
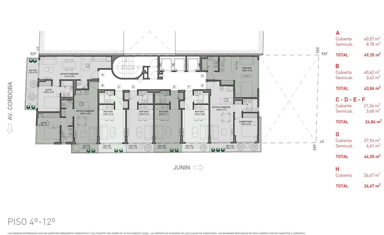
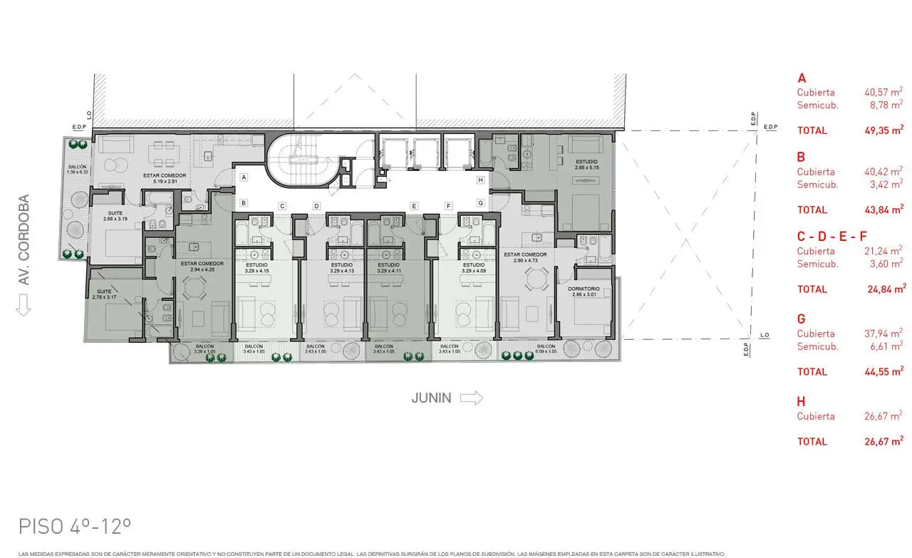
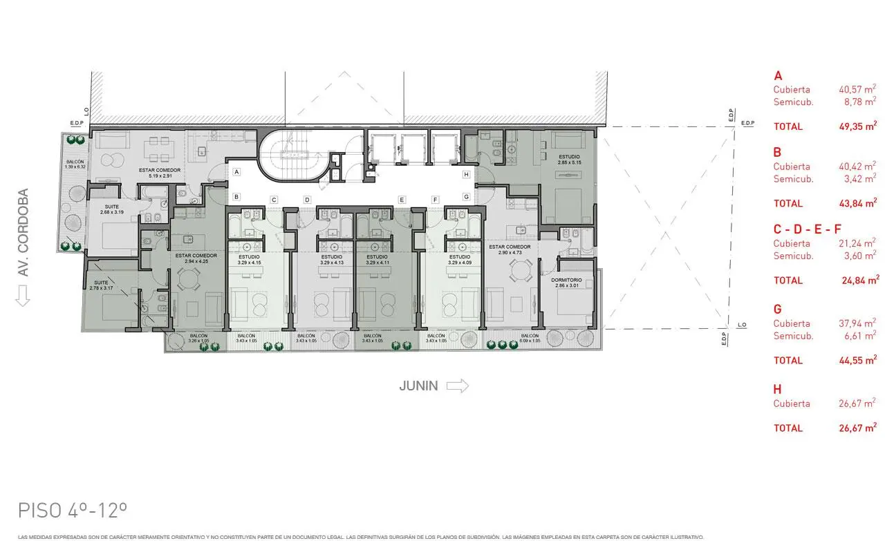
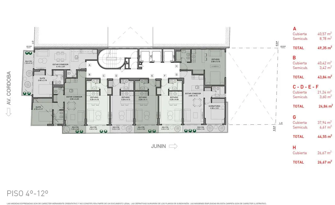
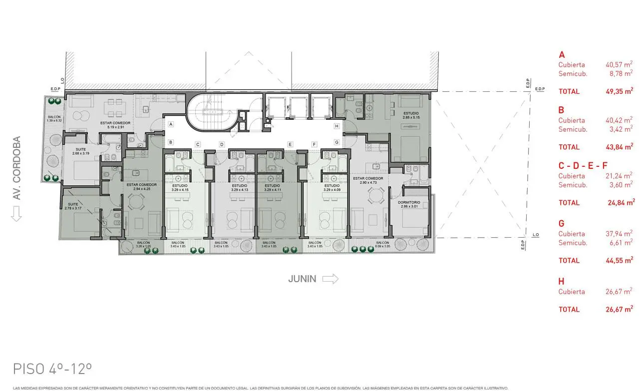
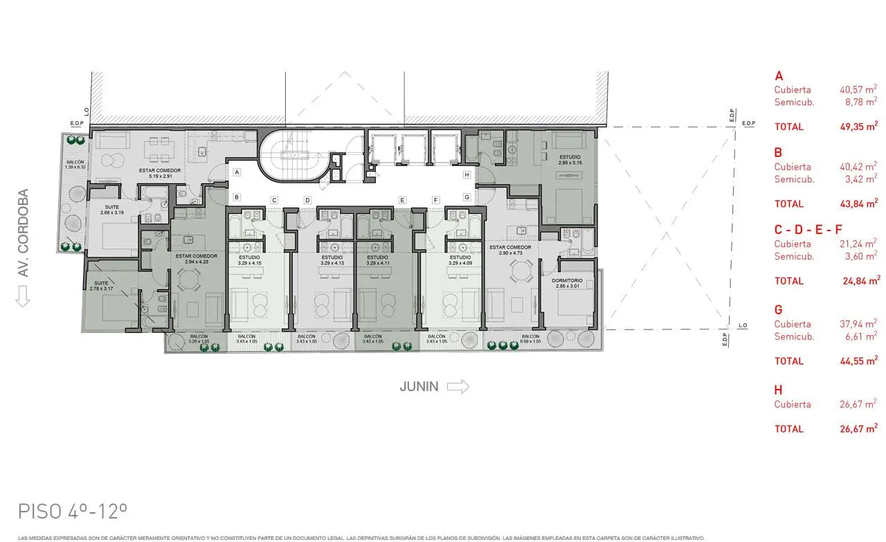
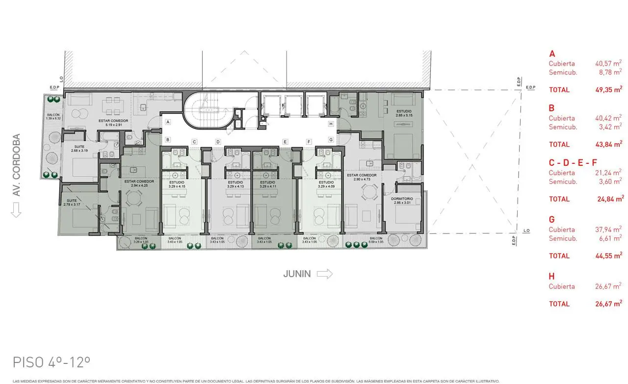
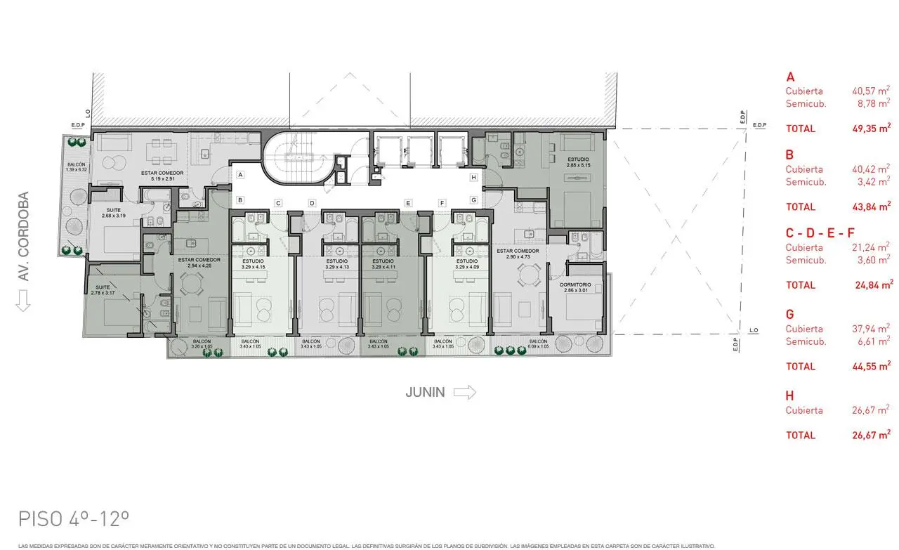
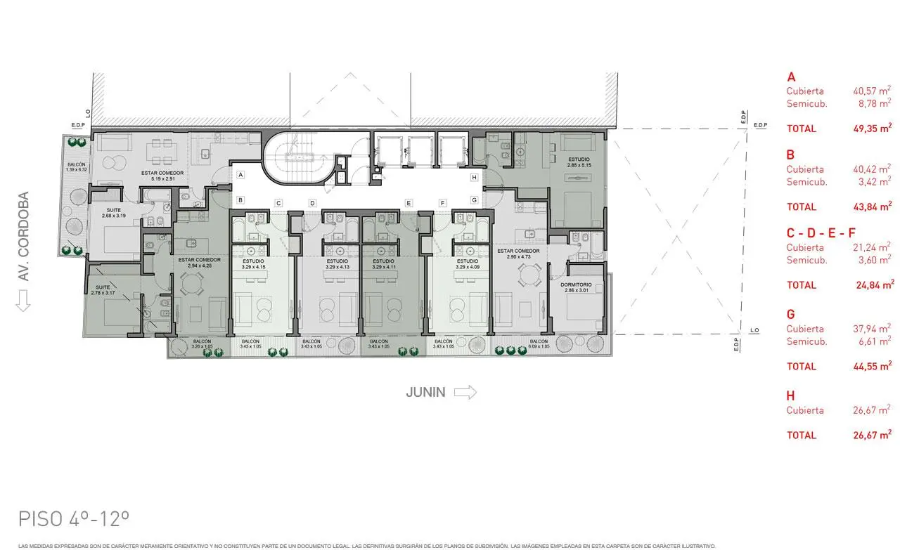
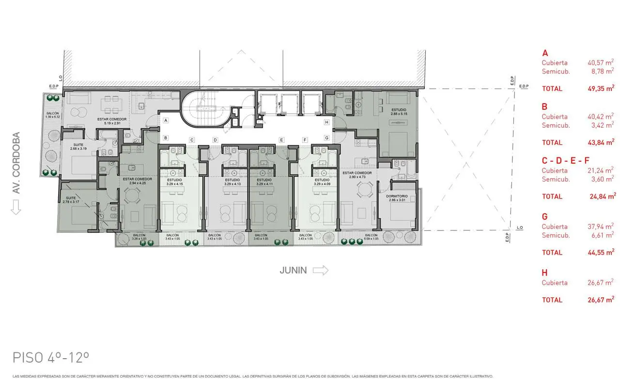
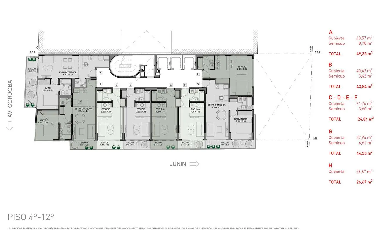
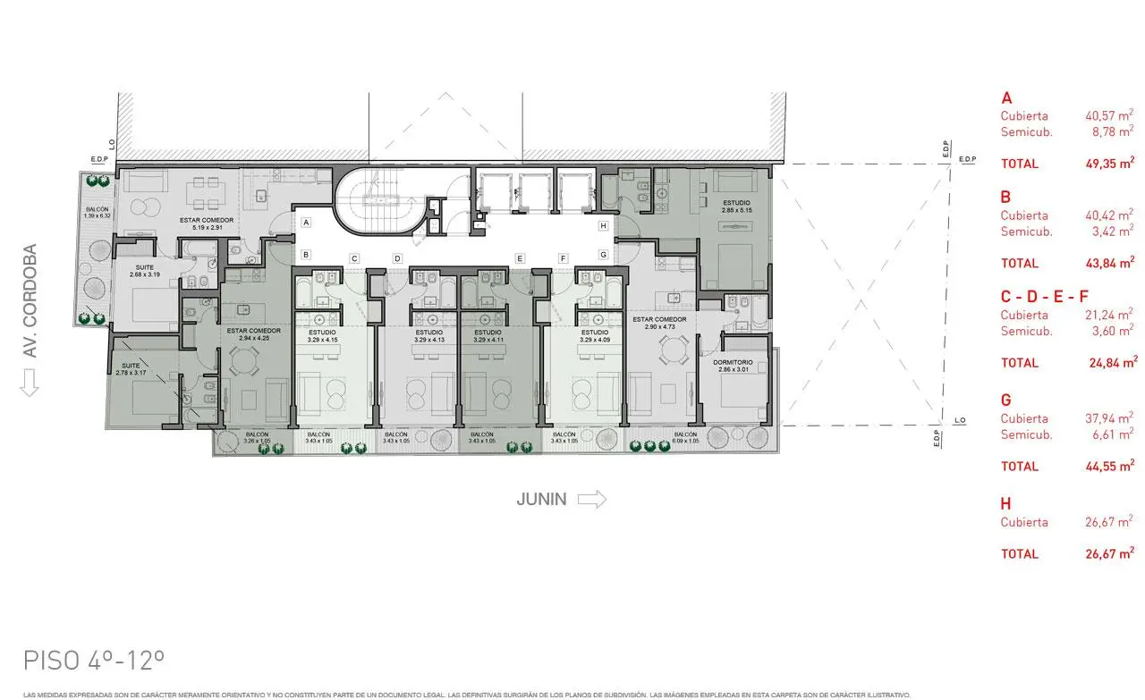
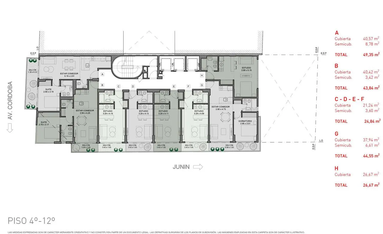
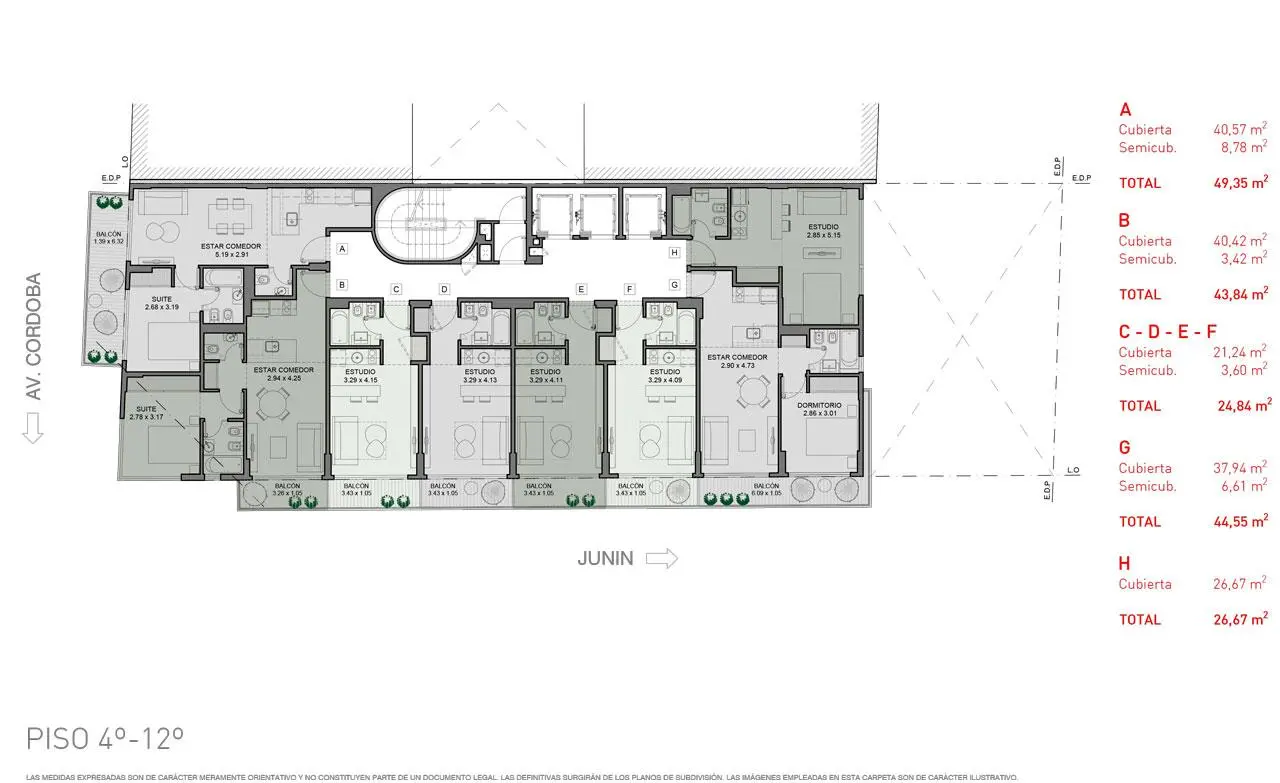
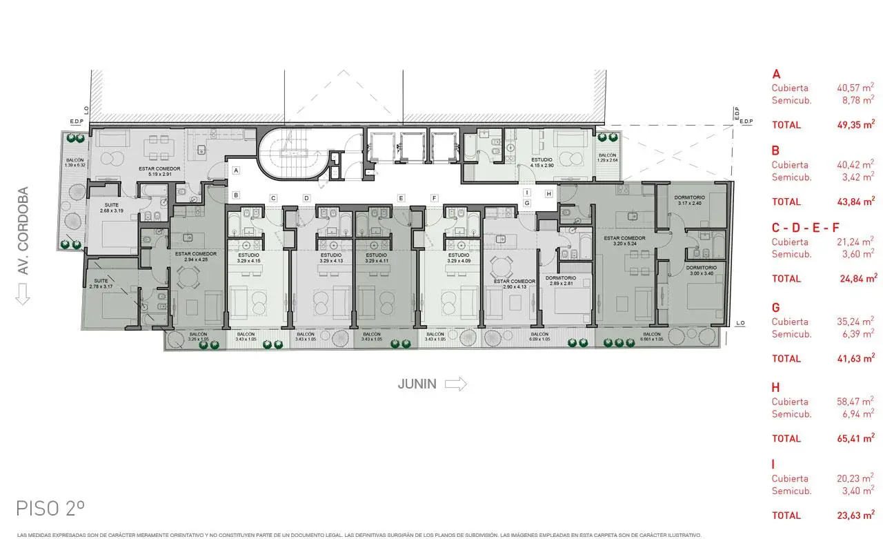
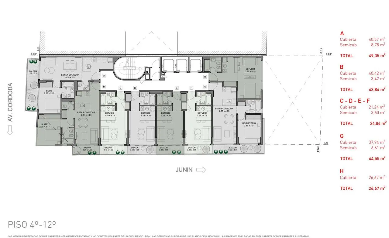
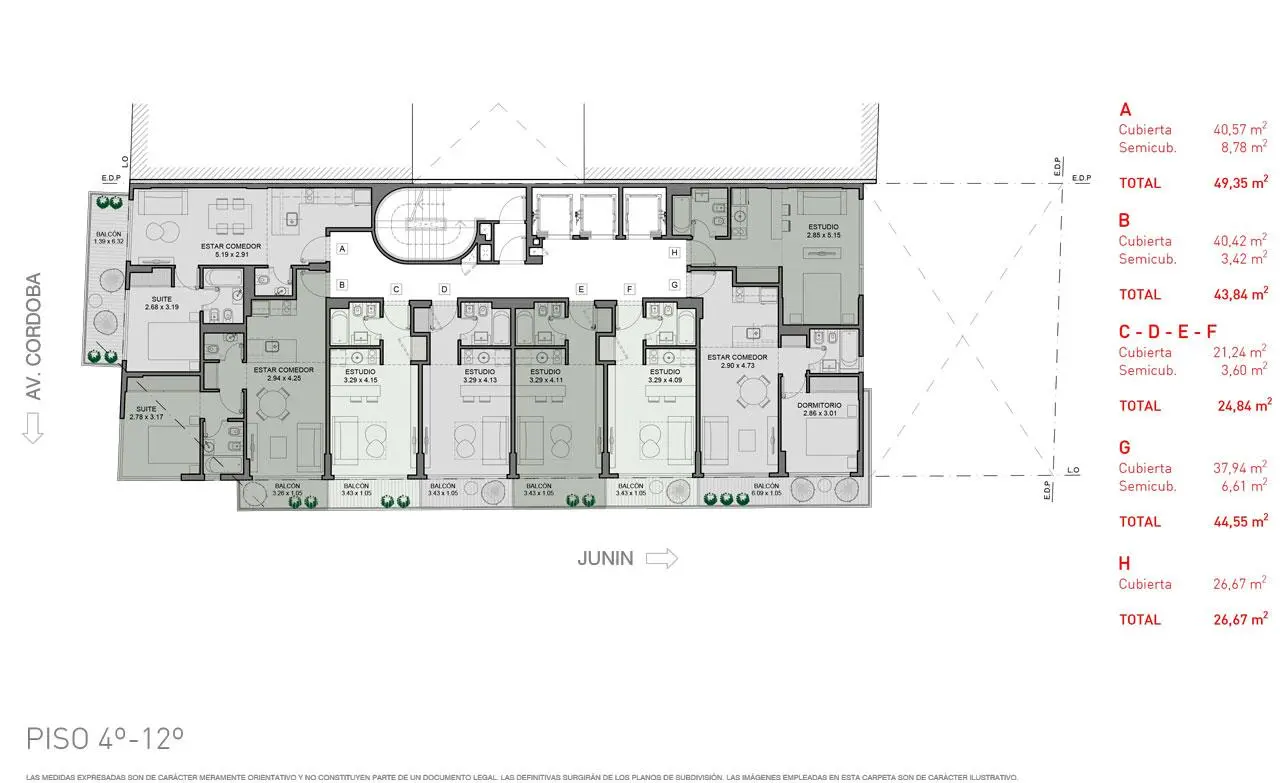
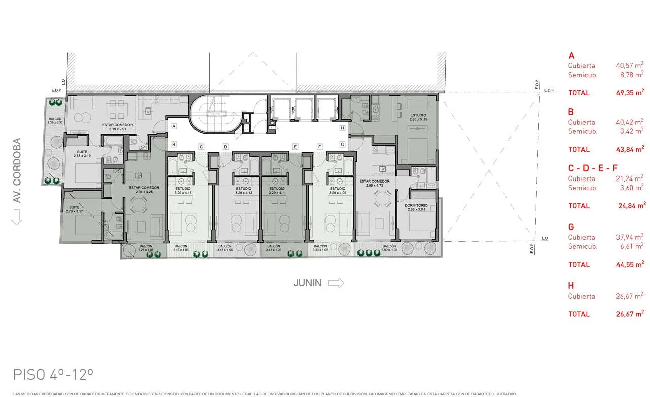
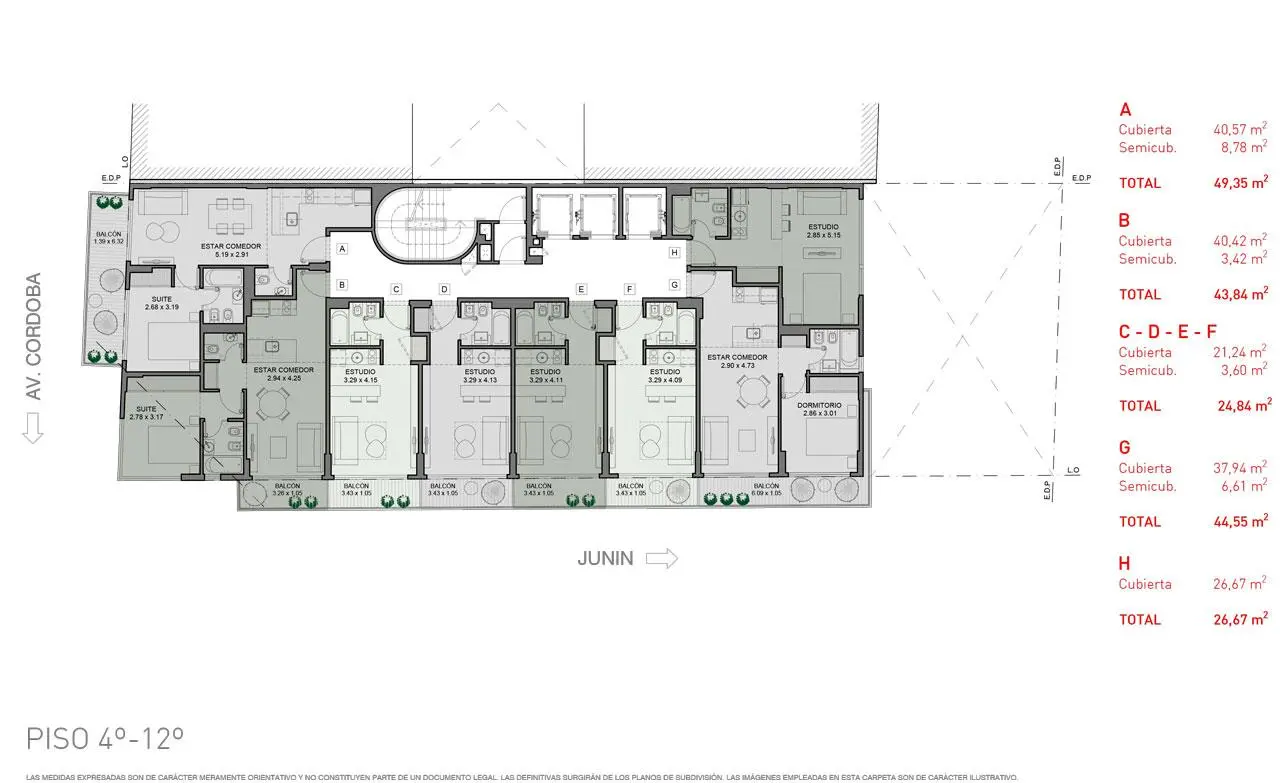
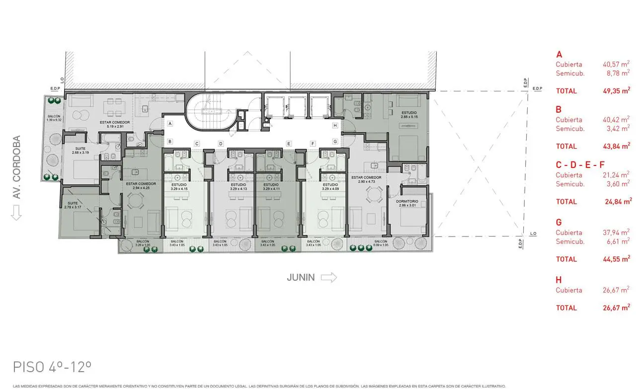
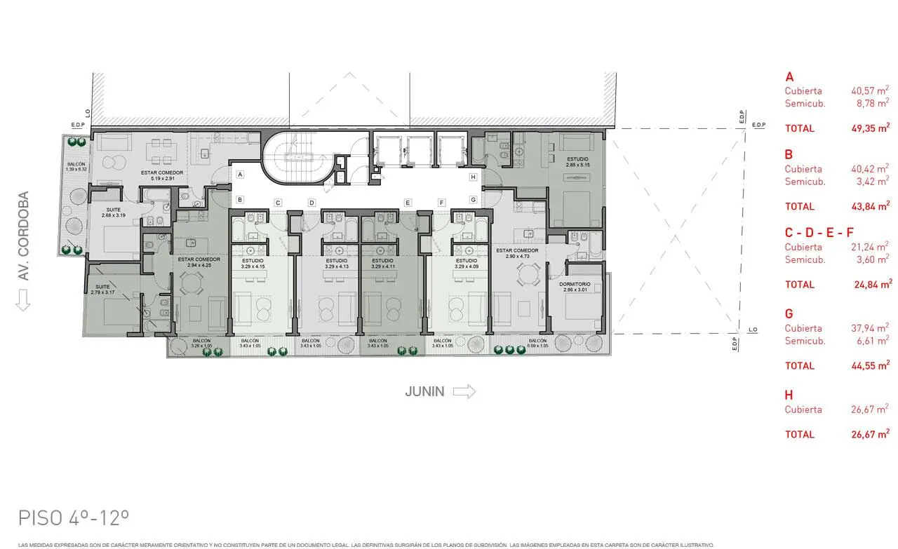
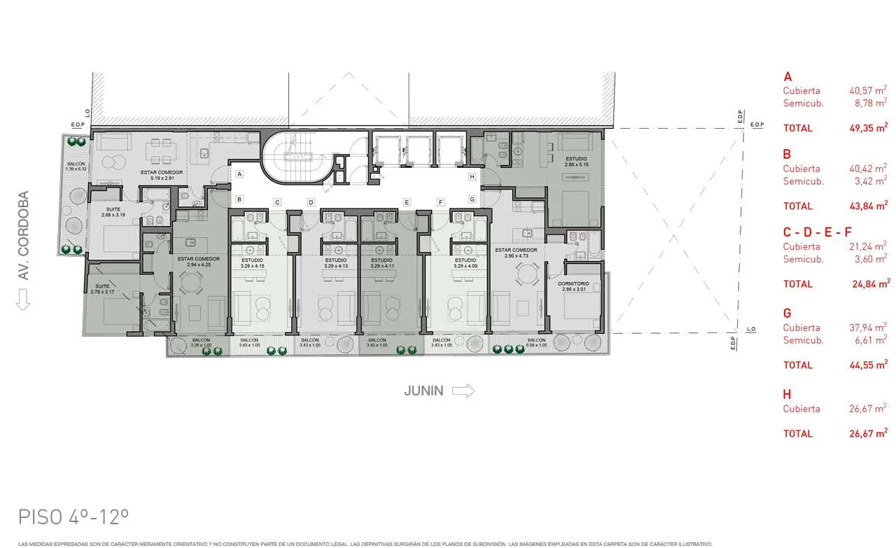
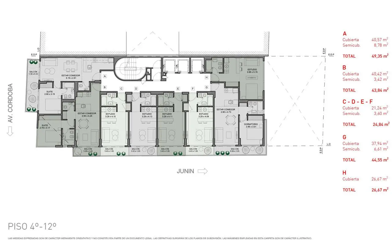
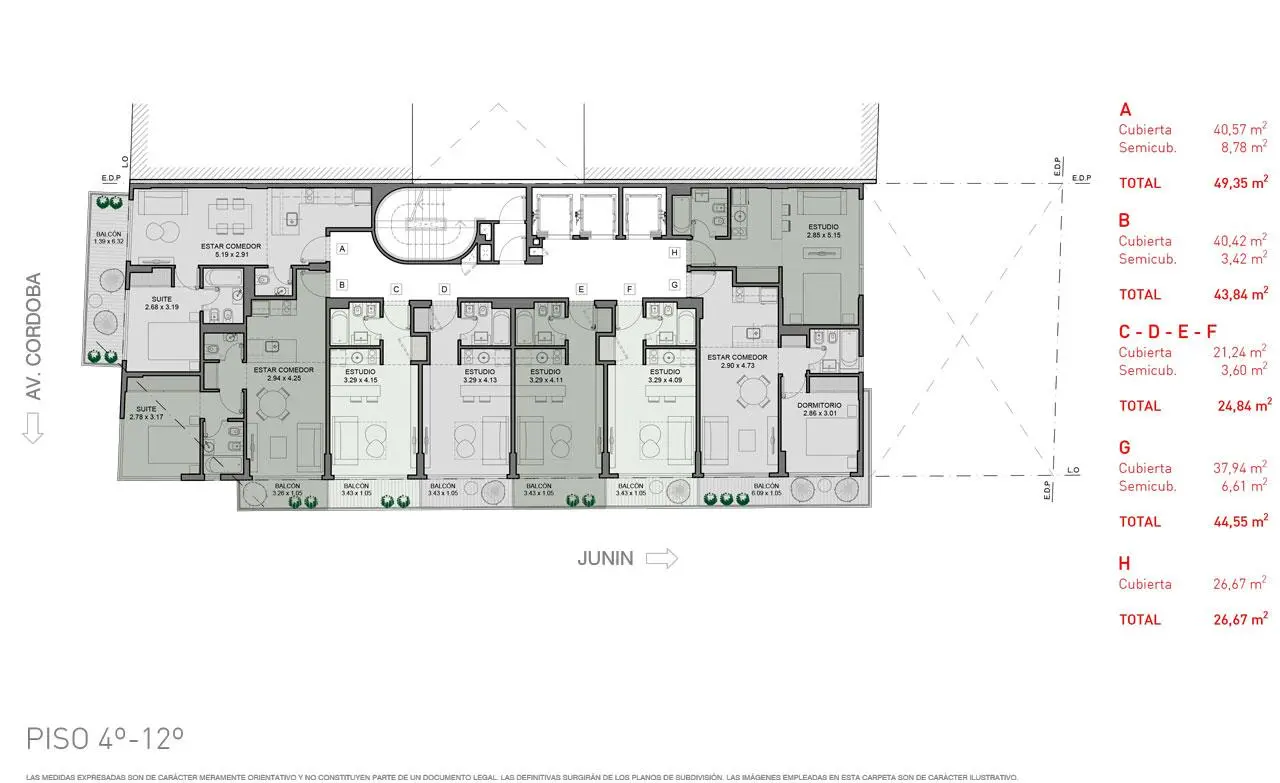
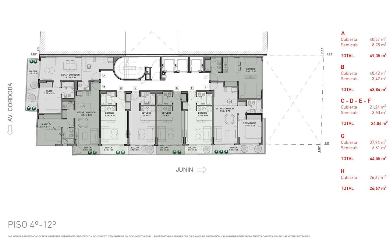
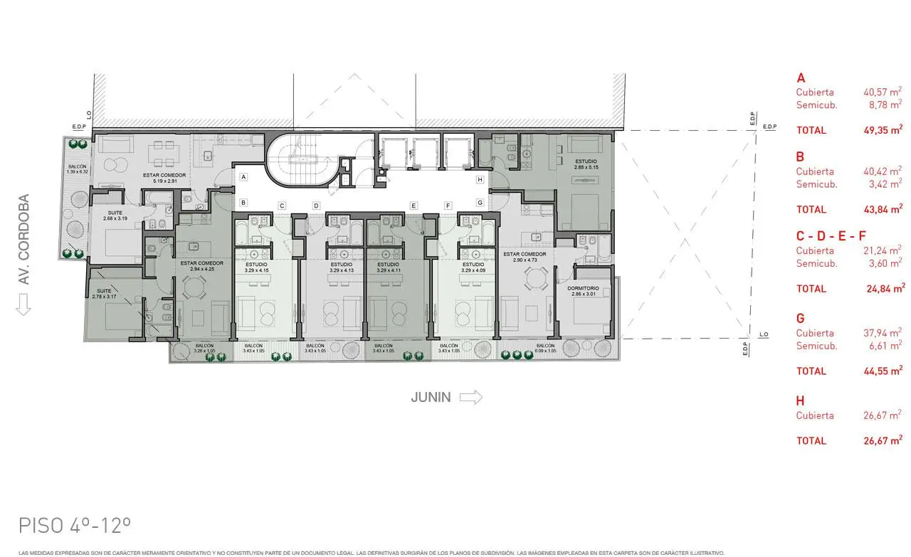
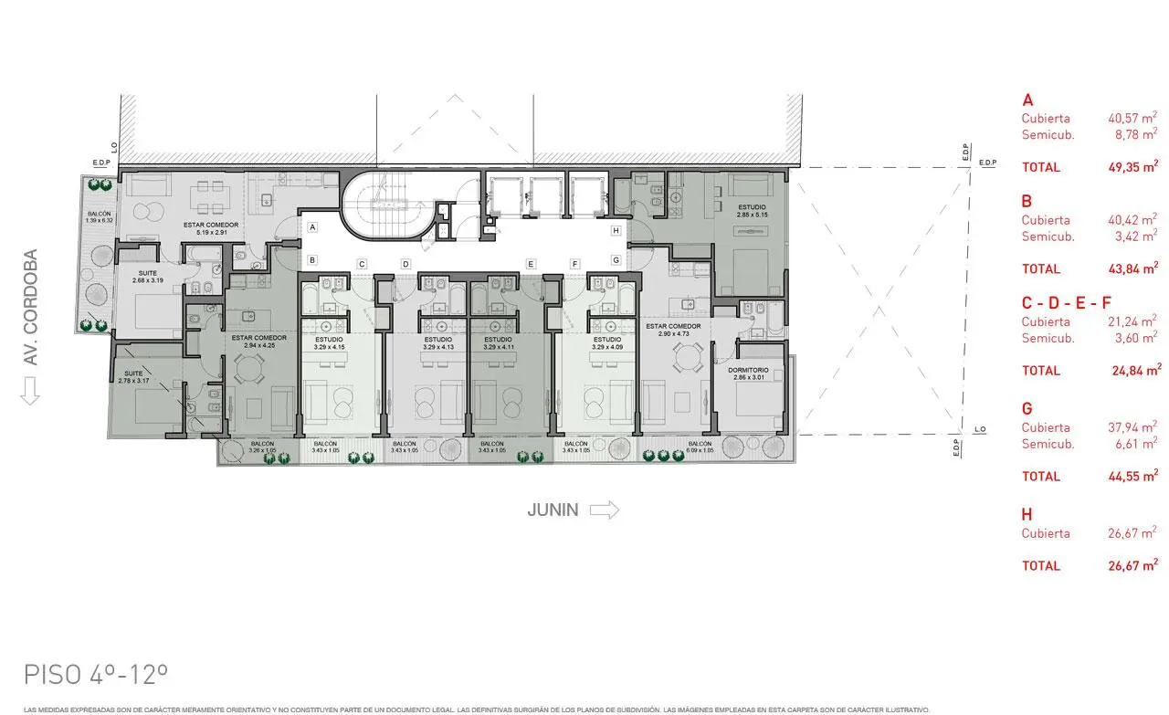
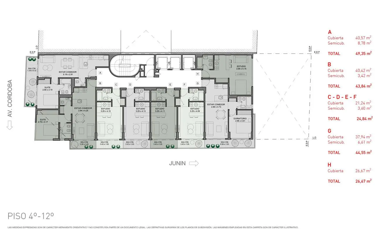
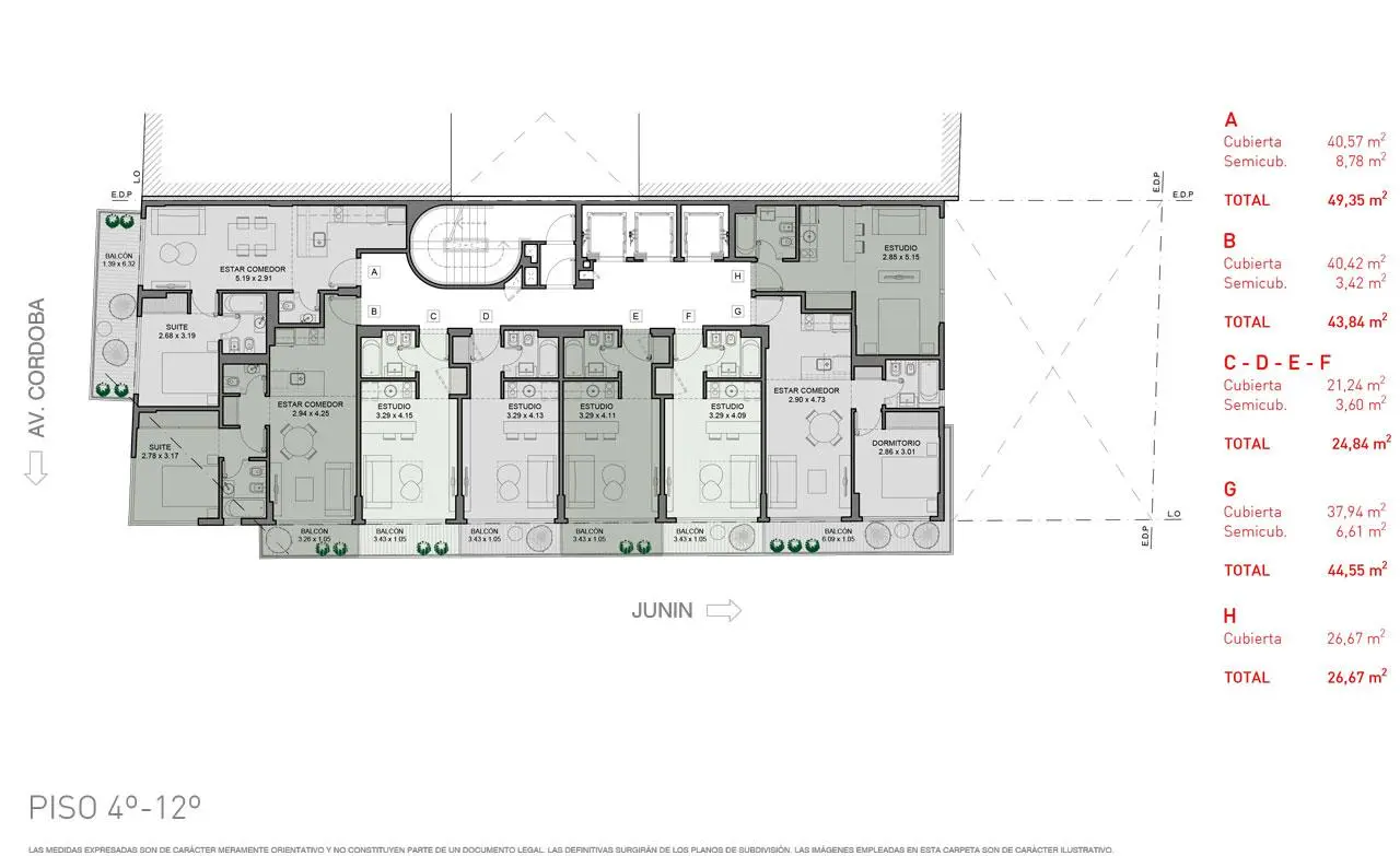
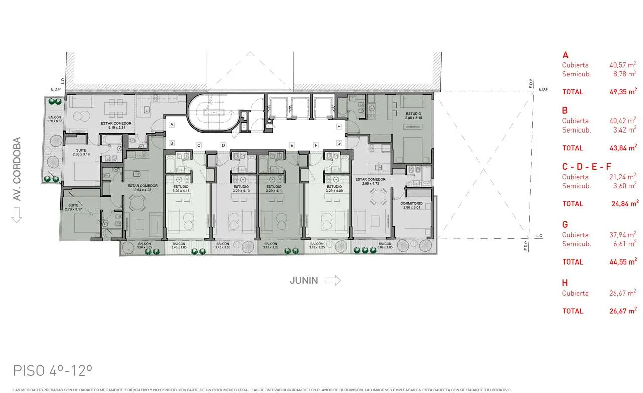
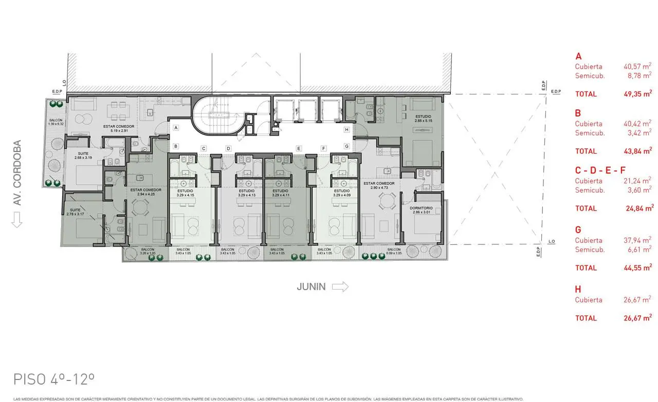
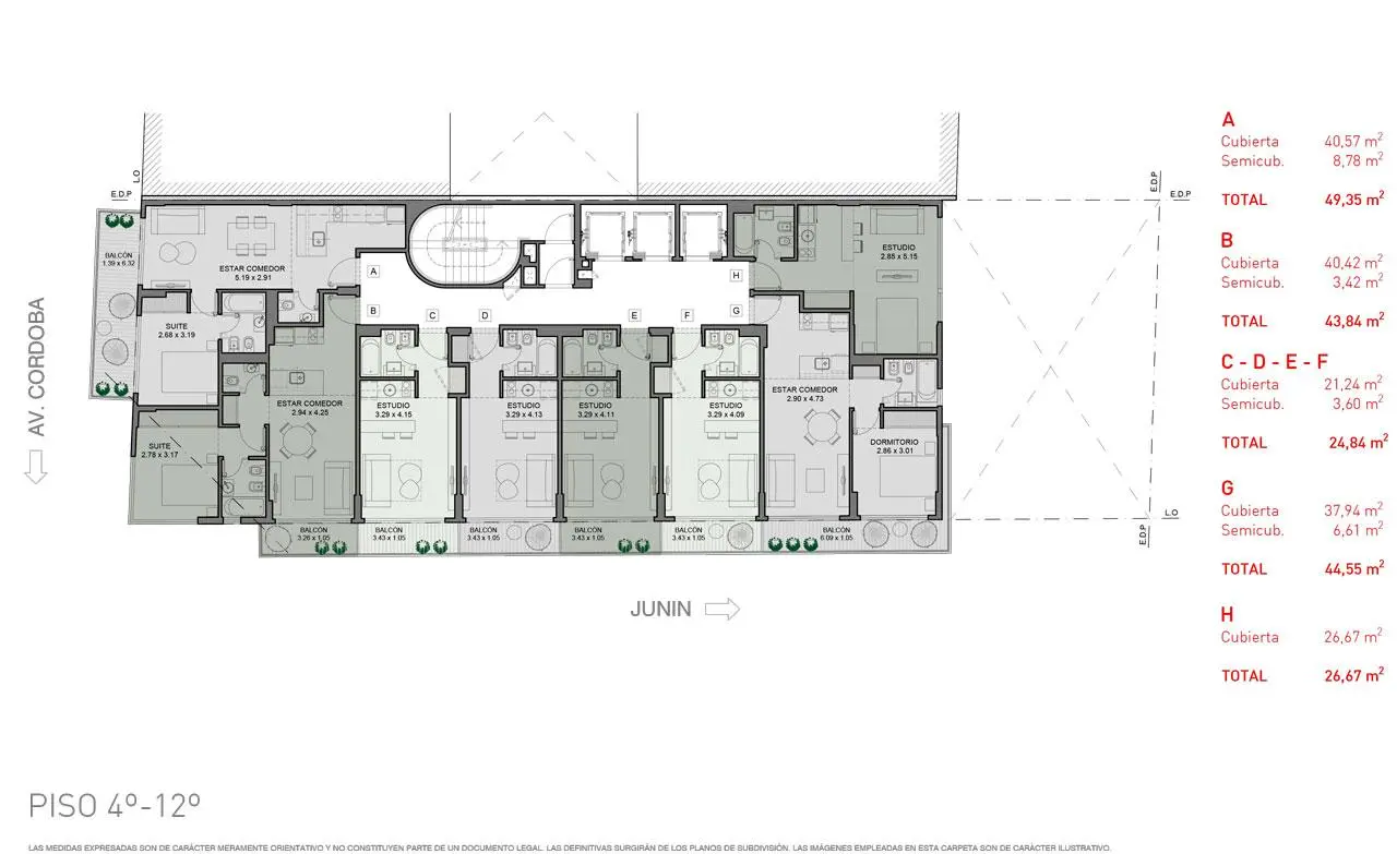
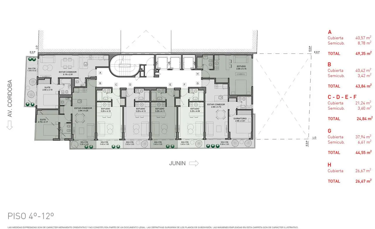
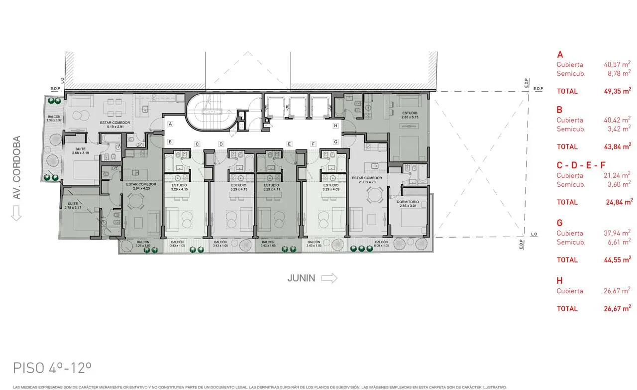
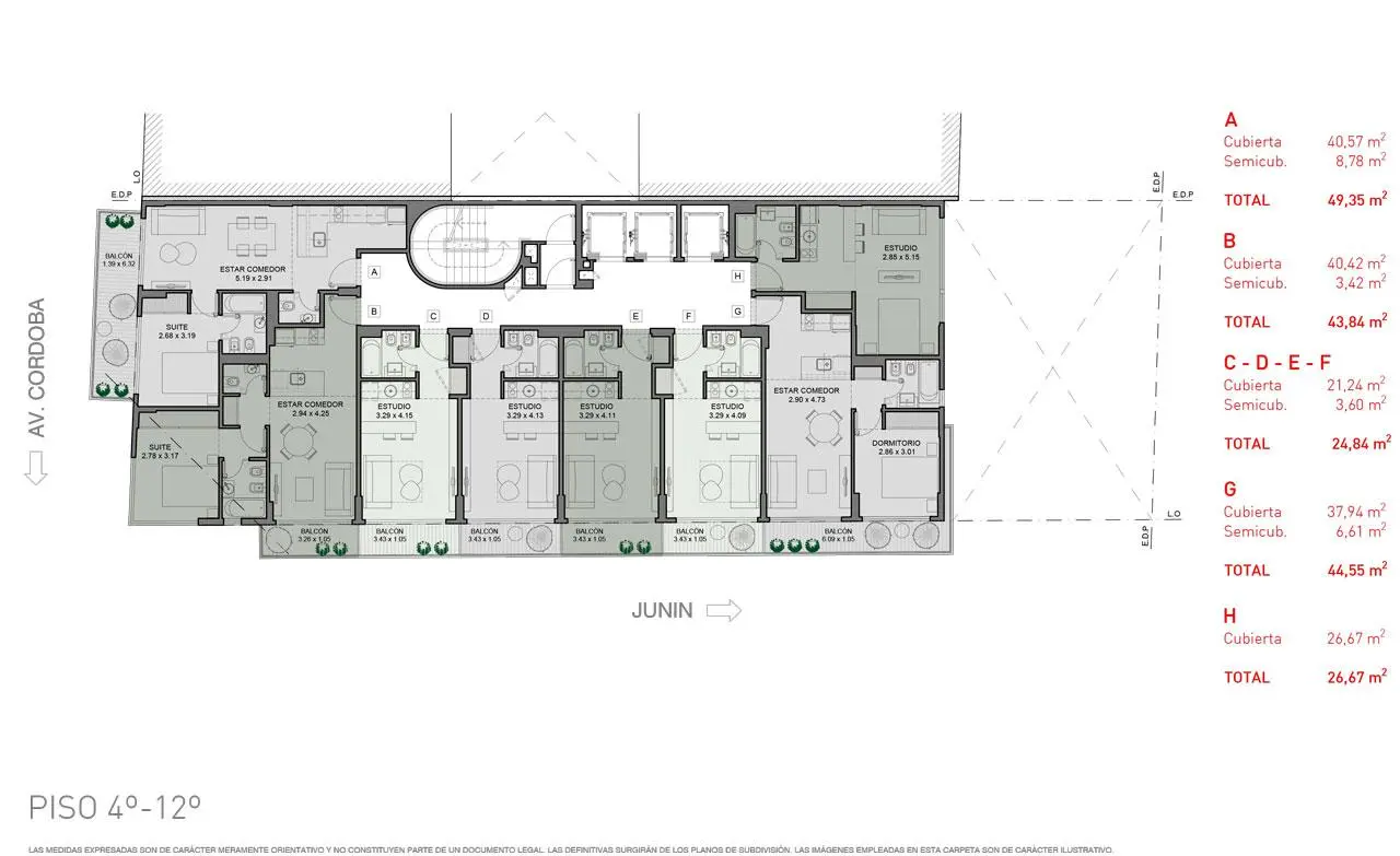
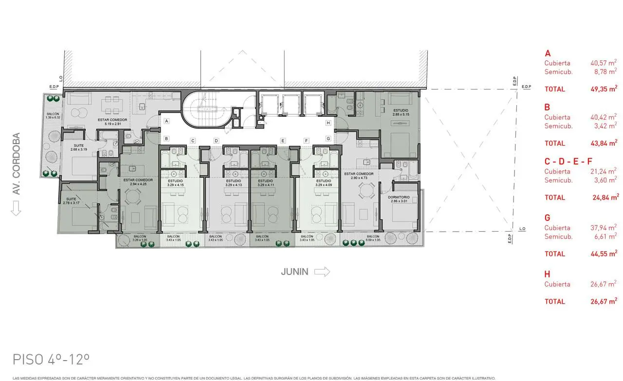
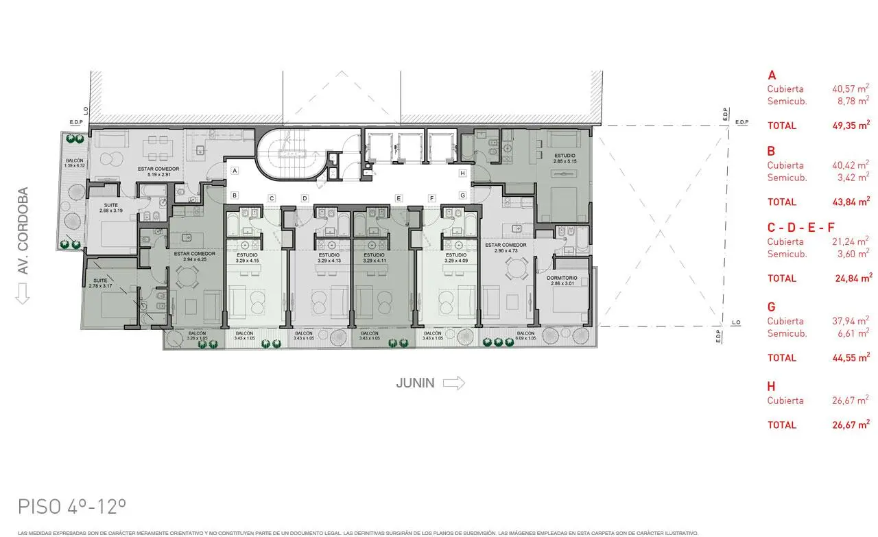
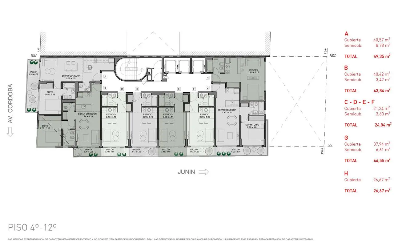
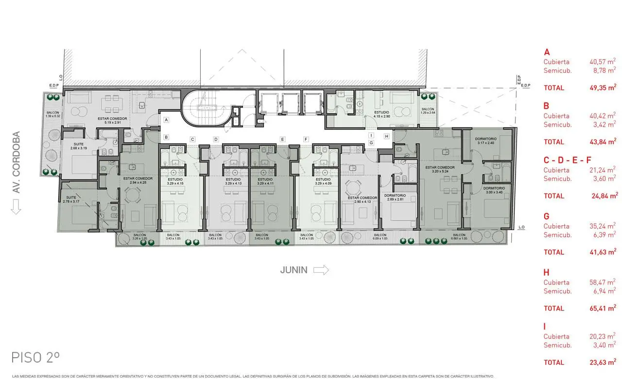
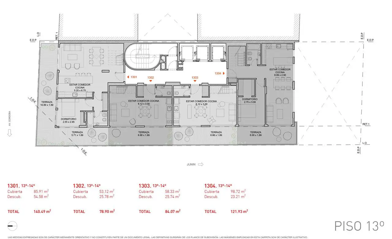
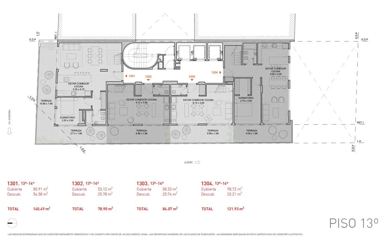
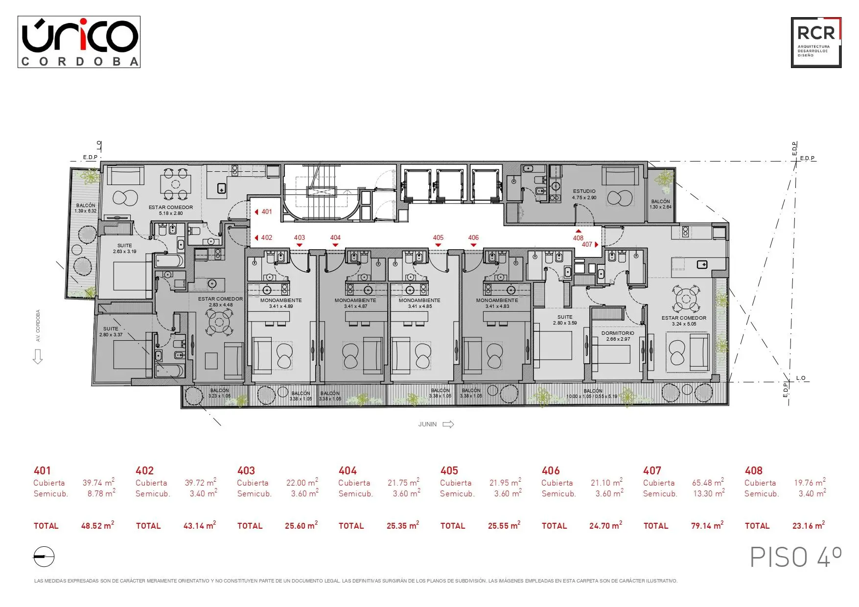
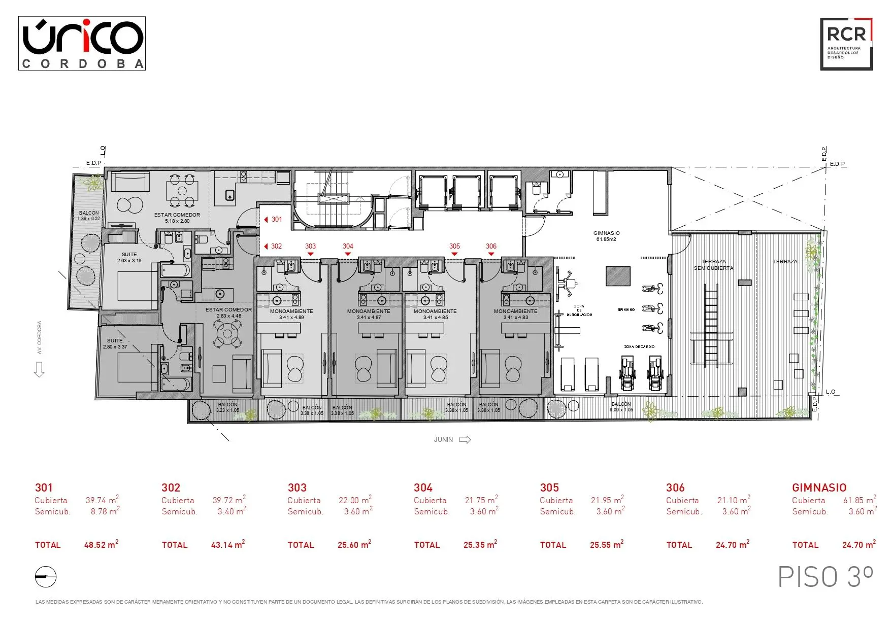
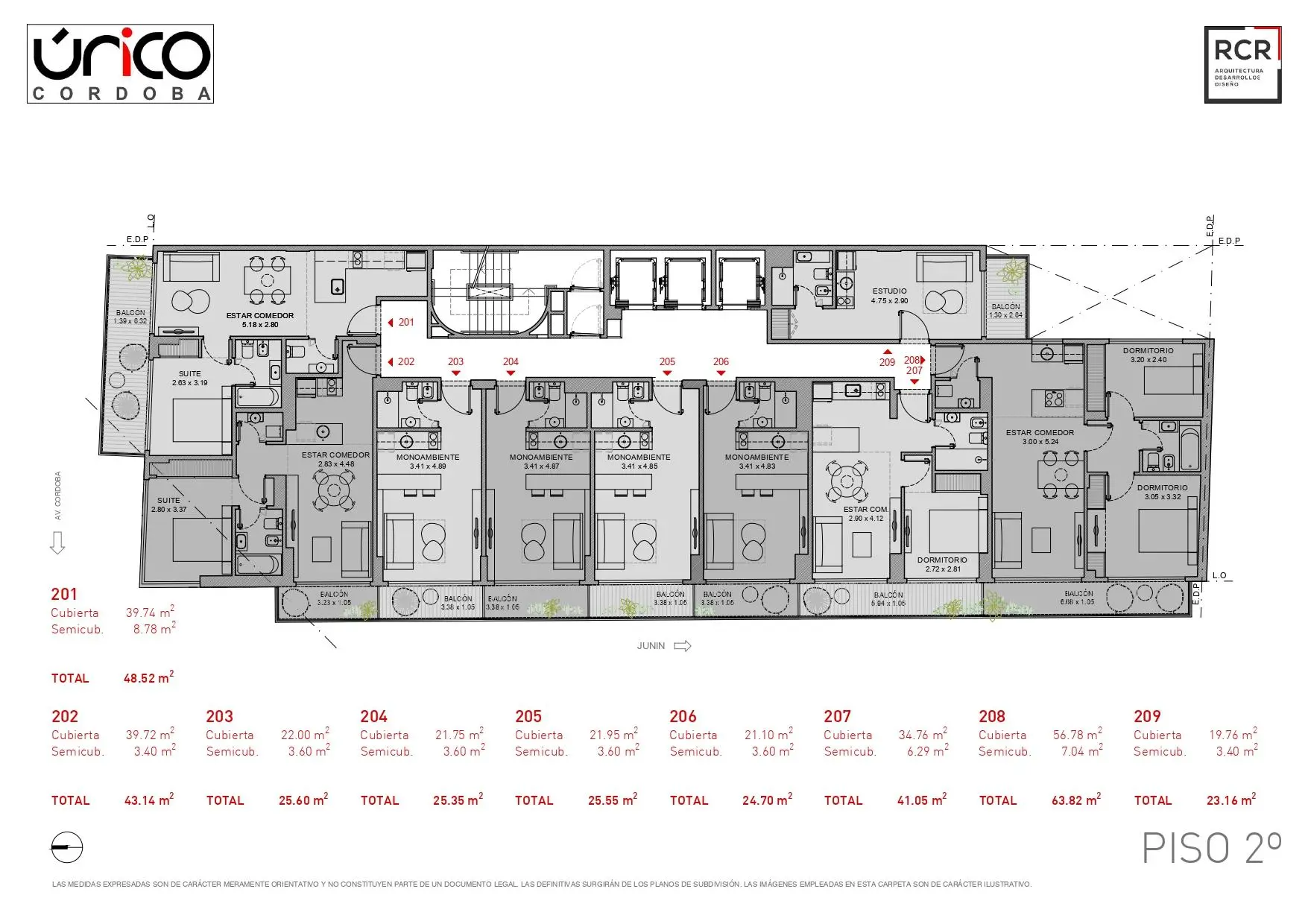
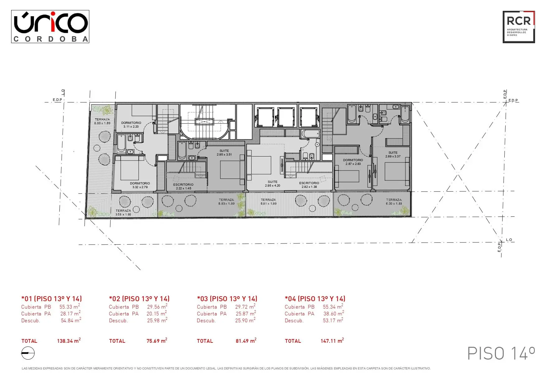
El proyecto combina un diseño contemporáneo con plantas eficientes y un mix de tipologías ideal para renta, uso propio o pied-à-terre. Los pisos se organizan con unidades funcionales pensadas para distintos perfiles de usuarios.
Tipologías:
- Estudios / Monoambientes:
Superficies totales entre 23 y 31 m². Plantas muy eficientes, algunas con balcones semicubiertos. Ideales para estudiantes, primeras viviendas o alquiler temporario.
- 1 ambiente amplio / divisibles (tipos A, B y similares):
Unidades entre 40 y 49 m² totales, con balcones generosos y posibilidad de armar dormitorio + estar. Muy buscadas para renta corporativa o parejas jóvenes.
- 2 ambientes:
Plantas entre 41 y 65 m² según orientación. Con balcones, estar bien proporcionado y suites o dormitorios ventilados. Alternativa clásica para renta estable.
- Unidades especiales y dúplex (en pisos altos):
Superficies desde 78 hasta 140 m² totales, varias con amplias terrazas descubiertas. Ideales para compradores que buscan vistas abiertas, espacio exterior y categoría.
- Locales comerciales en PB y entrepiso:
Dos superficies amplias (203 m² y 136 m²) que potencian la vida urbana del edificio y elevan la valorización del activo.
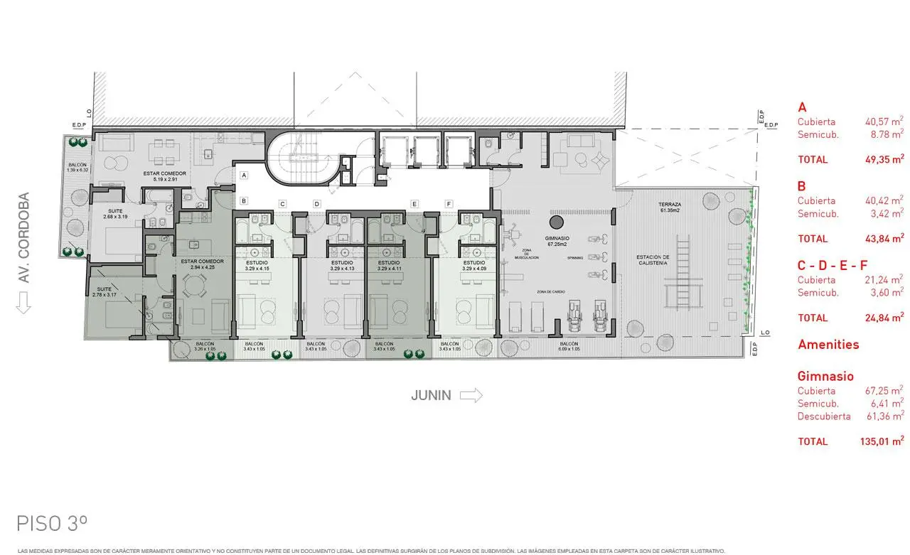
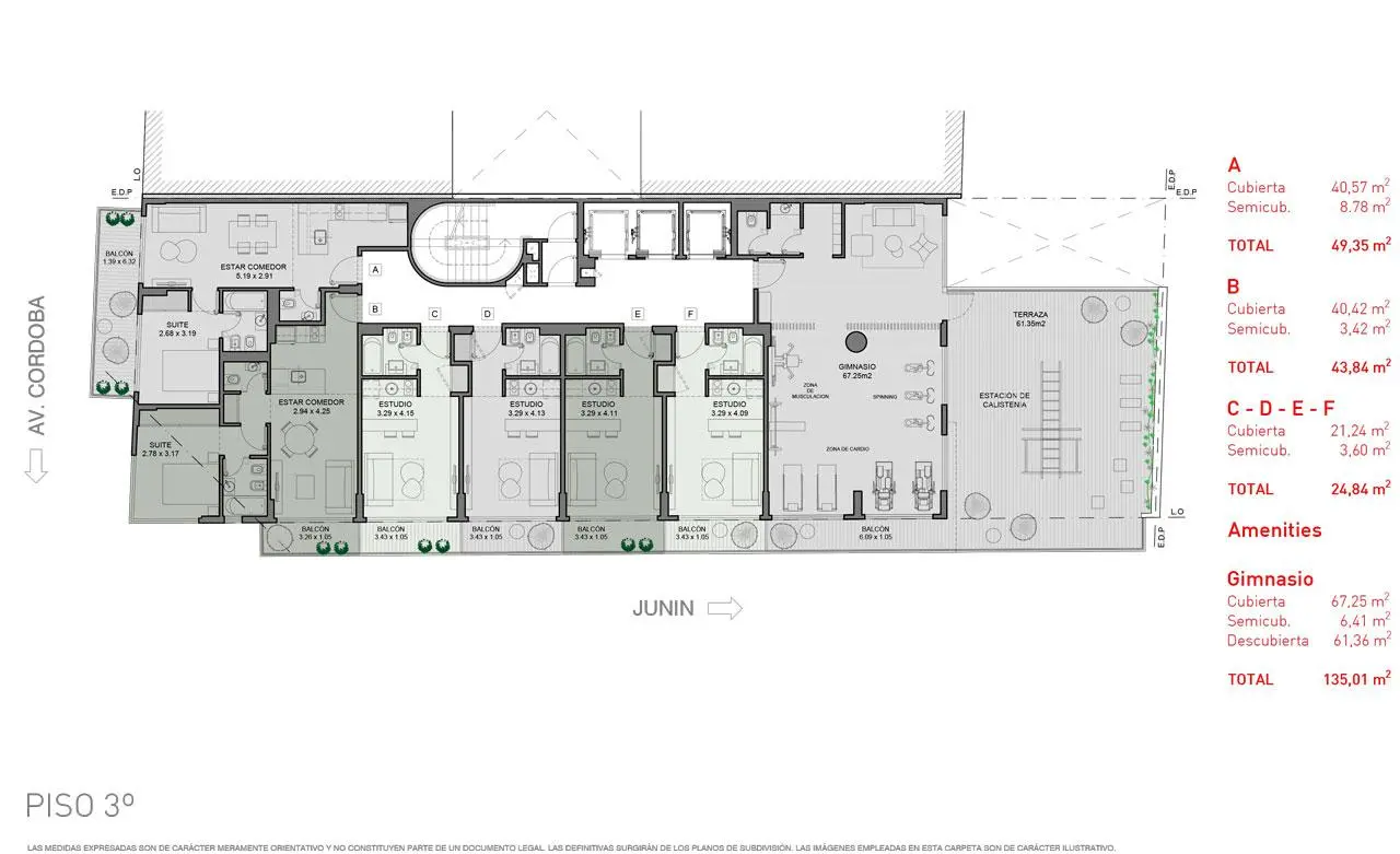
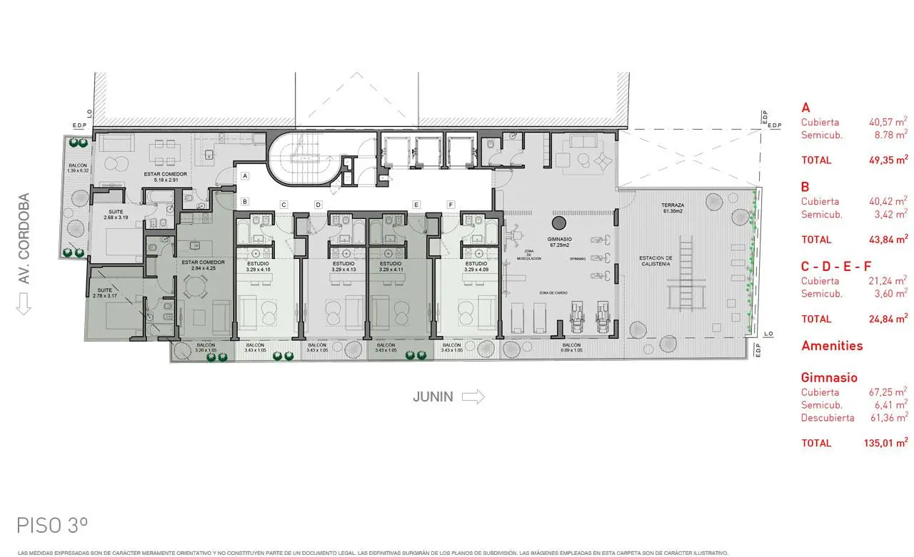
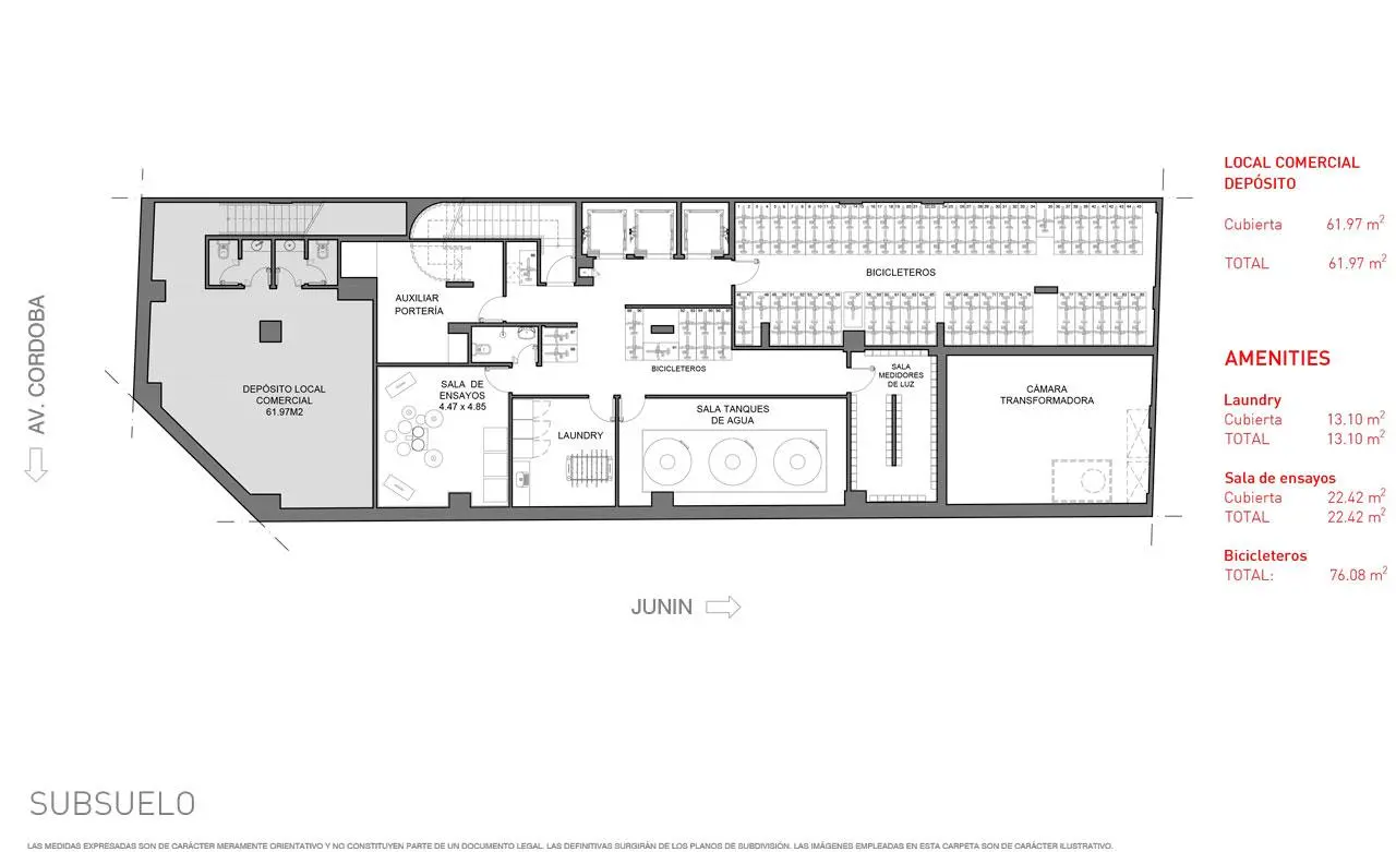
Amenities — FULL DIFERENCIADORES
Un combo de servicios pensado para elevar la experiencia diaria y la rentabilidad del alquiler temporario:
Piscina con solárium en el piso 15: vistas abiertas, excelente asoleamiento.
SUM con expansión propia: espacio amplio para encuentros, eventos y coworking social.
Gimnasio completo (cardio, musculación, spinning) con terraza exterior y áreas de entrenamiento.
Laundry equipado en subsuelo: clave para operación temporaria.
Sala de ensayos / estudio acústico: diferencial único para jóvenes, creadores y estudiantes de arte o música.
Bicicleteros amplios (más de 70 m²).
Portería y áreas técnicas: mejor mantenimiento y organización del edificio.
Azotea accesible y espacios exteriores de uso común.
La combinación de amenities + ubicación es el punto más fuerte del proyecto: agrega valor en renta, mejora la experiencia del usuario final y lo diferencia de competidores de la zona.
Por qué es ideal para cada perfil:
Inversores:
Unidades pequeñas de máxima rotación, amenities premium y ubicación que asegura demanda todo el año. Ideal para short-stay y turismo tradicional o corporativo.
Estudiantes:
Literalmente frente al campus de la UBA. Caminabilidad total, seguridad y servicios al instante.
Profesionales / turismo:
Conectividad perfecta entre Recoleta, Santa Fe, centros médicos y universidades.
Compradores del interior / pied-à-terre:
Práctico, accesible, seguro y con transporte inmediato. Excelente para estancias periódicas.
Aclaración
Todas las imágenes, planos, descripciones, y características indicadas son meramente referenciales e ilustrativas y podrán ser modificadas sin previo aviso.Las superficies indicadas son estimadas. Las superficies y medidas definitivas surgirán del plano de mensura final aprobado oportunamente por las autoridades pertinentes.Las fechas de inicio de obra o posesión son estimadas, podrán ser reprogramadas por la Dirección de obra y dependerán a su vez de un proceso de aprobaciones municipales u otros organismos intervinientes.Los precios indicados podrán modificarse sin previo aviso. El interesado deberá realizar las verificaciones respectivas previamente a la realización de cualquier operación, requiriendo por sí o sus profesionales las copias necesarias de la documentación que corresponda.






























































































