Departamento

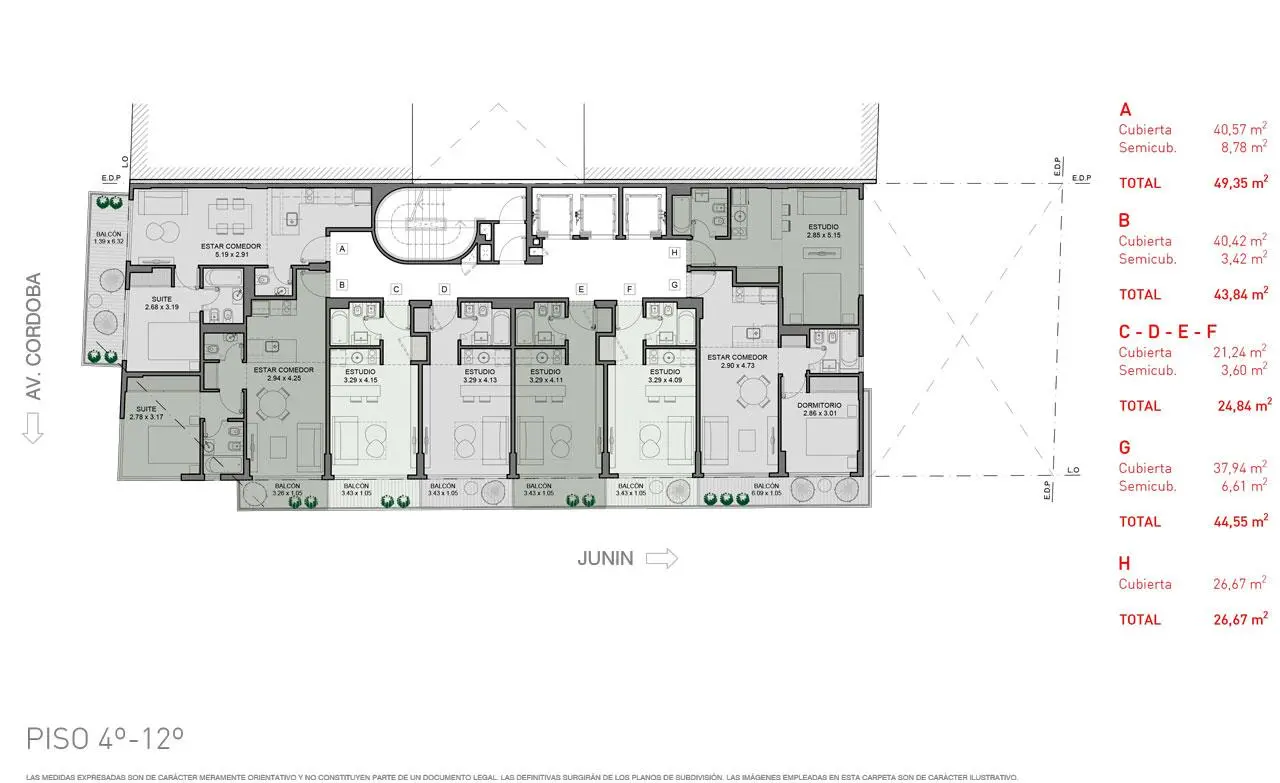
Junín 777 - 8D

24.84 1 ambiente1 baños
Junín 777, C1026ABO Cdad. Autónoma de Buenos Aires, Argentina
Estado
En Construcción

Posesión Aproximada ennoviembre de 2028

Precio
USD 86.861

Ambientes

(1)
Baño
  • Baño Completo
Espacio Cubierto
  • Living
Superficie total (24.84 m²)
Cubierta
21.24 m²
Semicubierta
3.6 m²

Detalles del emprendimiento

Emprendimiento

Edificio

Ubicación

Mapa estatico

Amenities

  • Gimnasio
  • Laundry
  • Piscina
  • Solarium
  • SUM

Planos

Plano de la propiedad
Plano del emprendimiento
Plano del emprendimiento
Plano del emprendimiento
Plano del emprendimiento
Plano del emprendimiento
Plano del emprendimiento
Plano del emprendimiento
Plano del emprendimiento
Plano del emprendimiento
Propiedad1 / 10

Servicios

  • Electricidad
  • Pavimento
  • Alcantarillado
  • Agua corriente
Descripción

Unidad de 1 ambiente/ estudio al frente con balcón hacia calle Junín. El mismo cuanta con cocina integrada a living comedor/ dormitorio, espacio de guardado y baño completo.




CONSULTE POR OTRAS UNIDADES DE ESTE EMPRENDIMIENTO ( EN OTRO PISO, OTRA UBICACION Y OTRAS TIPOLOGIAS)


Última actualización: 14/12/2025
Aclaración
Todas las imágenes, planos, descripciones, y características indicadas son meramente referenciales e ilustrativas y podrán ser modificadas sin previo aviso.Las superficies indicadas son estimadas. Las superficies y medidas definitivas surgirán del plano de mensura final aprobado oportunamente por las autoridades pertinentes.Las fechas de inicio de obra o posesión son estimadas, podrán ser reprogramadas por la Dirección de obra y dependerán a su vez de un proceso de aprobaciones municipales u otros organismos intervinientes.Los precios indicados podrán modificarse sin previo aviso. El interesado deberá realizar las verificaciones respectivas previamente a la realización de cualquier operación, requiriendo por sí o sus profesionales las copias necesarias de la documentación que corresponda.
Precio de la unidad
USD 86.861