+13
- Home
- Emprendimientos
- BLEAU UGARTE - Ugarte 1640
Emprendimiento
BLEAU UGARTE - Ugarte 1640
Manuel Ugarte 1640, C1428 Cdad. Autónoma de Buenos Aires, Argentina
EstadoEn Construcción
Posesión Aproximada enfebrero de 2027
Desde
USD162.000
Hasta
USD385.954
Destacado
Silver
Detalles
Proyecto
Doble frente
Emprendimiento
Edificio
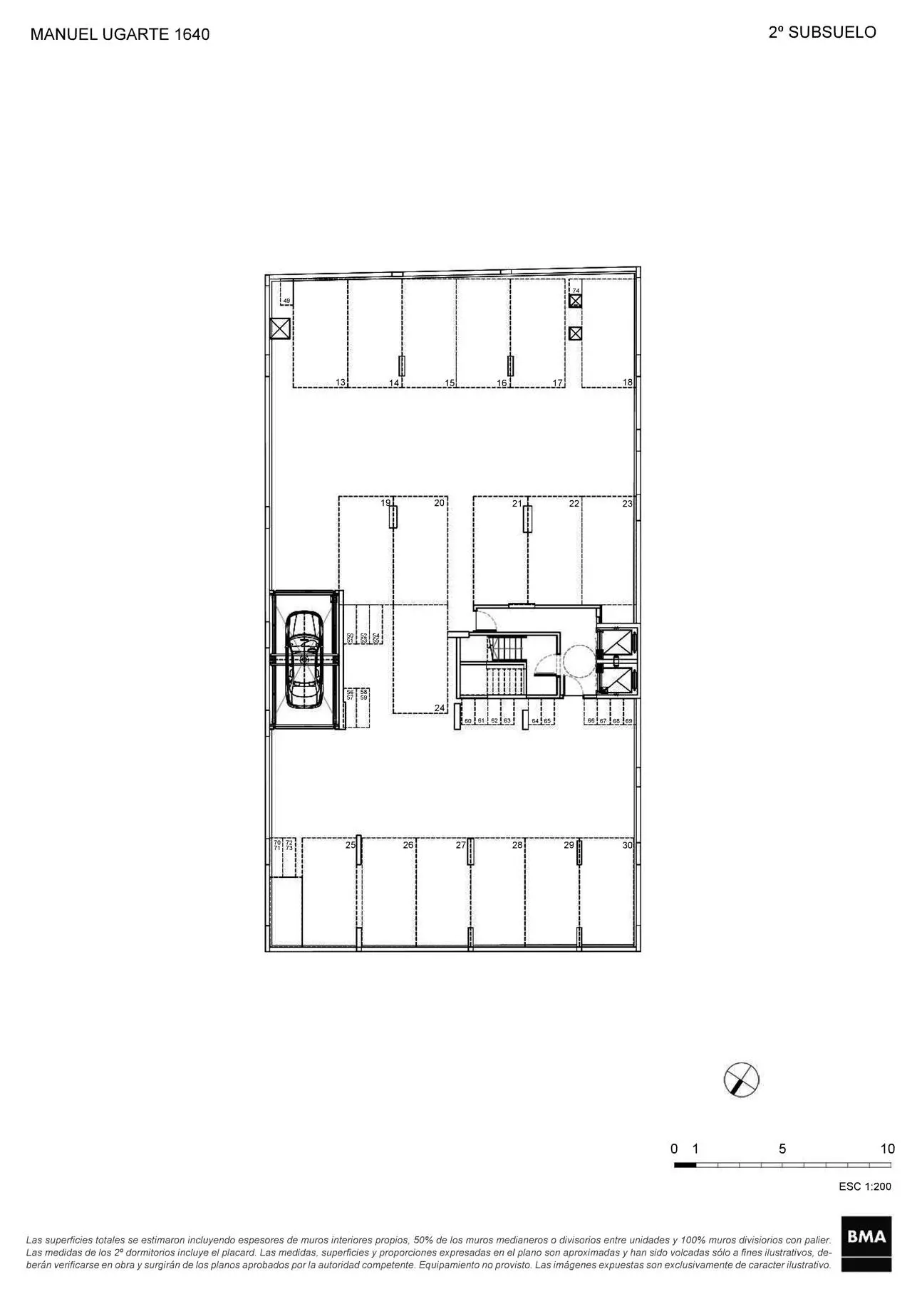
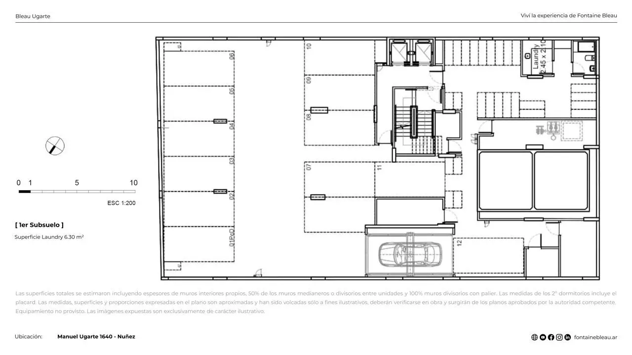
Pisos | Subsuelos
9 piso(s)/1 subsuelo(s)
Cocheras en el Emprendimiento
Si
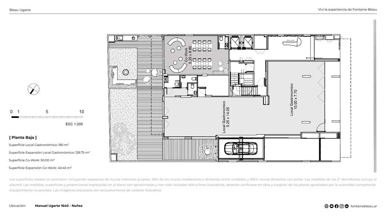
Locales Comerciales
1 en totalApto gastronómico
Ascensores
2
Apto profesional
Si
Renta temporal
Si
Apto Blanqueo
Si
Ubicación
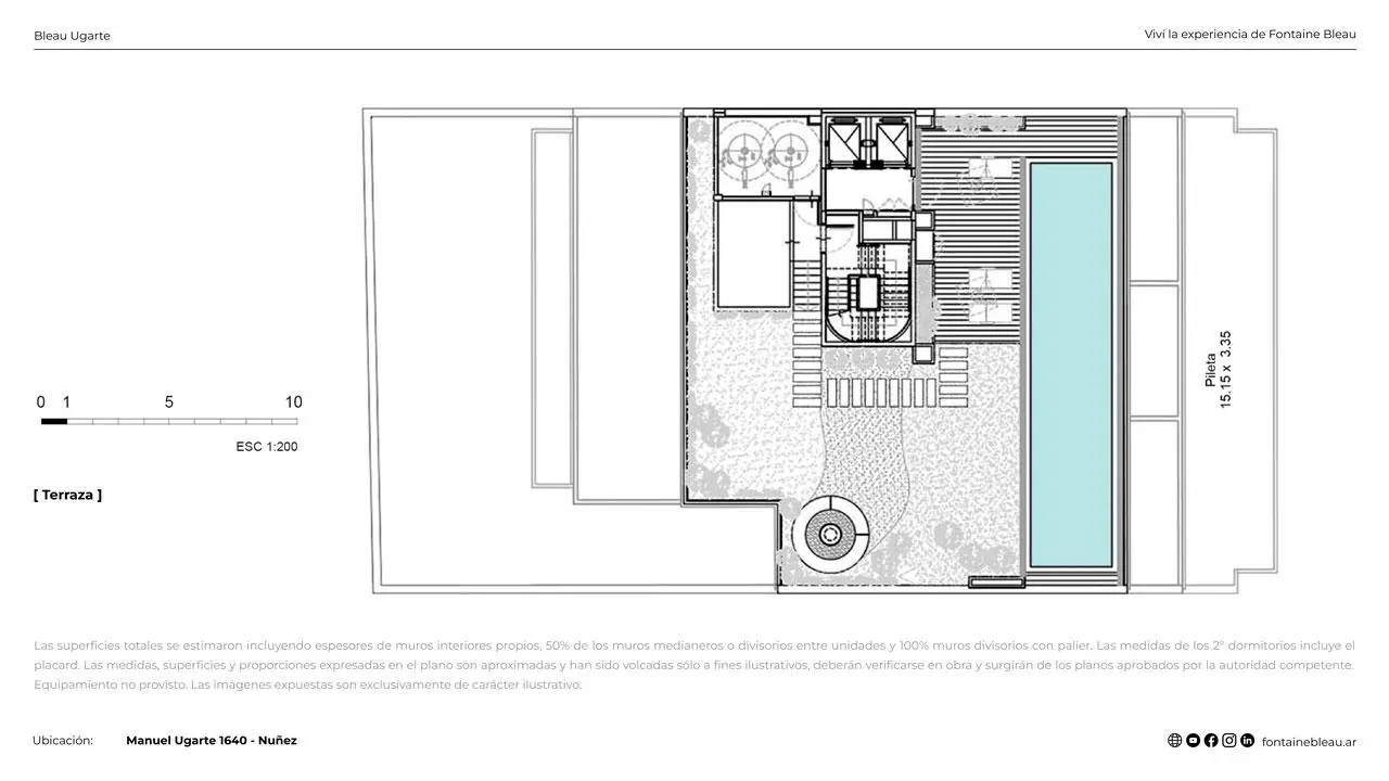
Amenities
- Coworking
- Piscina
- Solarium
Avance de obra
1 / 1
Planos
Emprendimiento1 / 5
Unidades
Servicios
- Electricidad
- Pavimento
- Alcantarillado
- Agua corriente
Espectacular edificio sobre lote doble frente a pasos de Av. del Libertador, próximo al Parque de la Innovación (EX Tiro Federal), Universidades como UBA, Di Tella , escuela ORT entre otros centros educativos, corredor de oficinas del Eje Libertador.
Cuenta con excelente accesibilidad, abundante transporte publico y ágil salida vehicular hacia zona norte y centro de CABA.
El barrio se encuentra en constante crecimiento con nuevos desarrollos de diseño destinado a familias y publico joven lo cual hace de este proyecto una excelente inversión tanto para capitalización o renta.
El emprendimiento constará de 9 pisos con unidades de 1 ambiente y medio, 2 y 3 amb con excelente diseño y terminaciones con hermosas vistas tanto al frente como contrafrente.
Amenities:
COWORKING
PISCINA Y SOLARIUM
LAUNDRY
Aclaración
Todas las imágenes, planos, descripciones, y características indicadas son meramente referenciales e ilustrativas y podrán ser modificadas sin previo aviso.Las superficies indicadas son estimadas. Las superficies y medidas definitivas surgirán del plano de mensura final aprobado oportunamente por las autoridades pertinentes.Las fechas de inicio de obra o posesión son estimadas, podrán ser reprogramadas por la Dirección de obra y dependerán a su vez de un proceso de aprobaciones municipales u otros organismos intervinientes.Los precios indicados podrán modificarse sin previo aviso. El interesado deberá realizar las verificaciones respectivas previamente a la realización de cualquier operación, requiriendo por sí o sus profesionales las copias necesarias de la documentación que corresponda.
































