Departamento

Ugarte 1640 - 6E

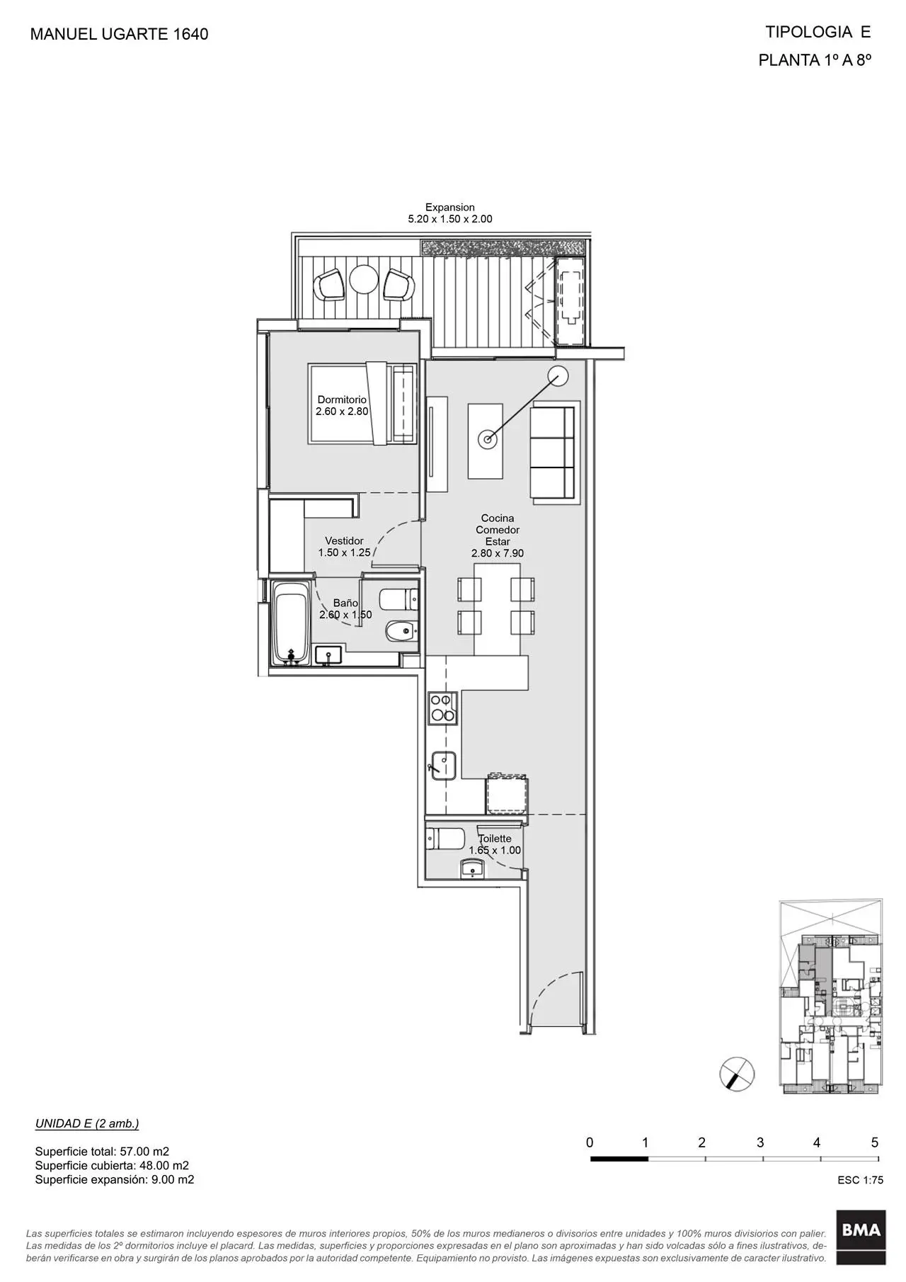
57 2 ambientes2 baños
Manuel Ugarte 1640, C1428 Cdad. Autónoma de Buenos Aires, Argentina
Estado
En Construcción

Posesión Aproximada enfebrero de 2027

Precio
USD 228.000

Detalles de la unidad

Disposición

Contrafrente

Ambientes

(2)
Dormitorio
  • Dormitorio estándar
Baño(2)
  • Baño Completo
  • Toilette
Espacio Cubierto
  • Living
Superficie total (57 m²)
Cubierta
48 m²
Semicubierta
9 m²

Detalles del emprendimiento

Proyecto

Doble frente

Emprendimiento

Edificio

Pisos | Subsuelos

9 piso(s)/1 subsuelo(s)

Cocheras en el Emprendimiento

Si

Locales Comerciales

1 en totalApto gastronómico

Ascensores

2

Apto profesional

Si

Renta temporal

Si

Apto Blanqueo

Si

Ubicación

Mapa estatico

Amenities

  • Coworking
  • Piscina
  • Solarium

Planos

Plano de la propiedad
Plano del emprendimiento
Plano del emprendimiento
Plano del emprendimiento
Plano del emprendimiento
Plano del emprendimiento
Propiedad1 / 6

Servicios

  • Electricidad
  • Pavimento
  • Alcantarillado
  • Agua corriente
Descripción
Muy lindo departamento de 2 ambientes ubicado al contrafrente con balcón, el mismo cuenta con living comedor con cocina integrada, dormitorio en suite con vestidor y toilette de recepción. Todos los ambientes cuentan con salida al balcón.

CONSULTE POR OTRAS UNIDADES DE ESTE EMPRENDIMIENTO (EN OTRO PISO, OTRA UBICACION Y OTRAS TIPOLOGIAS).

Última actualización: 17/04/2026
Aclaración
Todas las imágenes, planos, descripciones, y características indicadas son meramente referenciales e ilustrativas y podrán ser modificadas sin previo aviso.Las superficies indicadas son estimadas. Las superficies y medidas definitivas surgirán del plano de mensura final aprobado oportunamente por las autoridades pertinentes.Las fechas de inicio de obra o posesión son estimadas, podrán ser reprogramadas por la Dirección de obra y dependerán a su vez de un proceso de aprobaciones municipales u otros organismos intervinientes.Los precios indicados podrán modificarse sin previo aviso. El interesado deberá realizar las verificaciones respectivas previamente a la realización de cualquier operación, requiriendo por sí o sus profesionales las copias necesarias de la documentación que corresponda.
Precio de la unidad
USD 228.000