

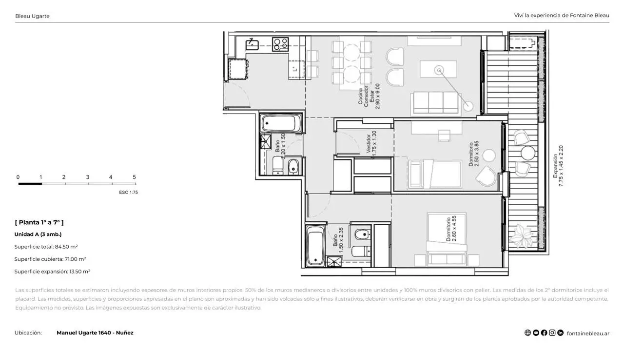
Departamento
Ugarte 1640 - 1A
88.73 m²3 ambientes1 baños
Manuel Ugarte 1640, C1428 Cdad. Autónoma de Buenos Aires, Argentina
Estado
En Construcción
Posesión Aproximada endiciembre de 2026
Precio
USD 273.684


Posesión Aproximada endiciembre de 2026
Disposición
Proyecto
Emprendimiento
Pisos | Subsuelos
Cocheras en el Emprendimiento
Locales Comerciales
Ascensores
Apto profesional
Renta temporal
Apto Blanqueo