+56
- Home
- Emprendimientos
- BOLD - Av. del Libertador y José Hernández
Emprendimiento
BOLD - Av. del Libertador y José Hernández
Av. del Libertador 5608, Belgrano, Capital Federal, Argentina
EstadoEn Construcción
Posesión Aproximada enjulio de 2026
Desde
USD144.418
Hasta
USD771.830
Destacado
Black
Detalles
Proyecto
Esquina
Emprendimiento
Edificio
Pisos | Subsuelos
15 piso(s)/3 subsuelo(s)
Orientación del Frente
Noreste
Cantidad de Unidades
184 en total
Cocheras en el Emprendimiento
Si
Locales Comerciales
3 en totalApto gastronómico
Ascensores
4
Apto profesional
Si
Apto Blanqueo
Si
Ubicación
Amenities
- Piscina
- Piscina Climatizada
- Piscina Cubierta
- Spa
- Sauna Húmedo
- Sauna Seco
- Cocheras de Cortesia
- Coworking
- Gimnasio
- Laundry
- Microcine
- Quincho
- Salón Gorumet
- Sector de Parrilla
- Seguridad 24 hs
- Solarium
- SUM
- Vestuarios
Avance de obra
1 / 9
Planos
Emprendimiento1 / 19
Unidades
Servicios
- Electricidad
- Gas
- Pavimento
- Alcantarillado
- Agua corriente
Se trata de un Mega-Emprendimiento de aproximadamente 13.000 m2 (25000 m2 de obra totales) que constará de 15 pisos con Full amenities y con frente a tres calles: Av. del Libertador, José Hernández y Virrey Vertiz.
El desarrollo tendrá aproximadamente 18 m de frente sobre Libertador, 49 m de frente sobre José Hernández (toda la cuadra) y 27 m de frente sobre V. Vertiz.
A pasos de Golf, zona de clubes, bares y restaurantes de moda de Belgrano Chico, aéreas verdes y lagos y próximo a Barrancas de Belgrano como gran centro de conectividad de rápidas vías de acceso y trasporte público, además de sus tradicionales edificios y sus hermosos parques y plazas.
El acceso al edificio es por Av. del Libertador, ingresando a un inmenso hall de entrada de doble altura de casi 20 m x 10 m aprox. La orientación sobre Av. del Libertador es NE.
Características de cada nivel:
Planta Baja:
-Acceso por Av. del Libertador hacia un importante hall de entrada de doble altura (alrededor de 20 metros por 10 metros).
-Cabina de seguridad.
-Conserjería con espacio para recepción de pedidos de e-commerce.
-SUM In/Out. (con cocina y baño) que se vinculan a un gran patio con espacios verdes.
-Locales comerciales en doble altura sobre Virrey Vertiz y parte de la esquina con José Hernández, que se integrarán al Paseo Gastronómico del Viaducto Mitre.
-3 cocheras de cortesía sobre José Hernández.
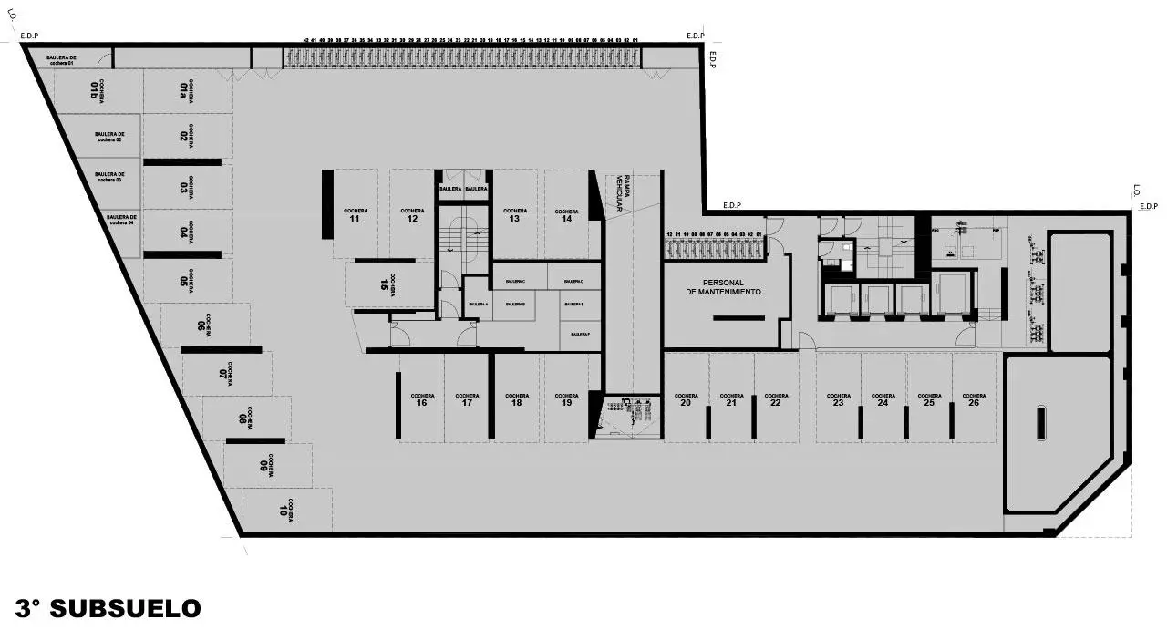
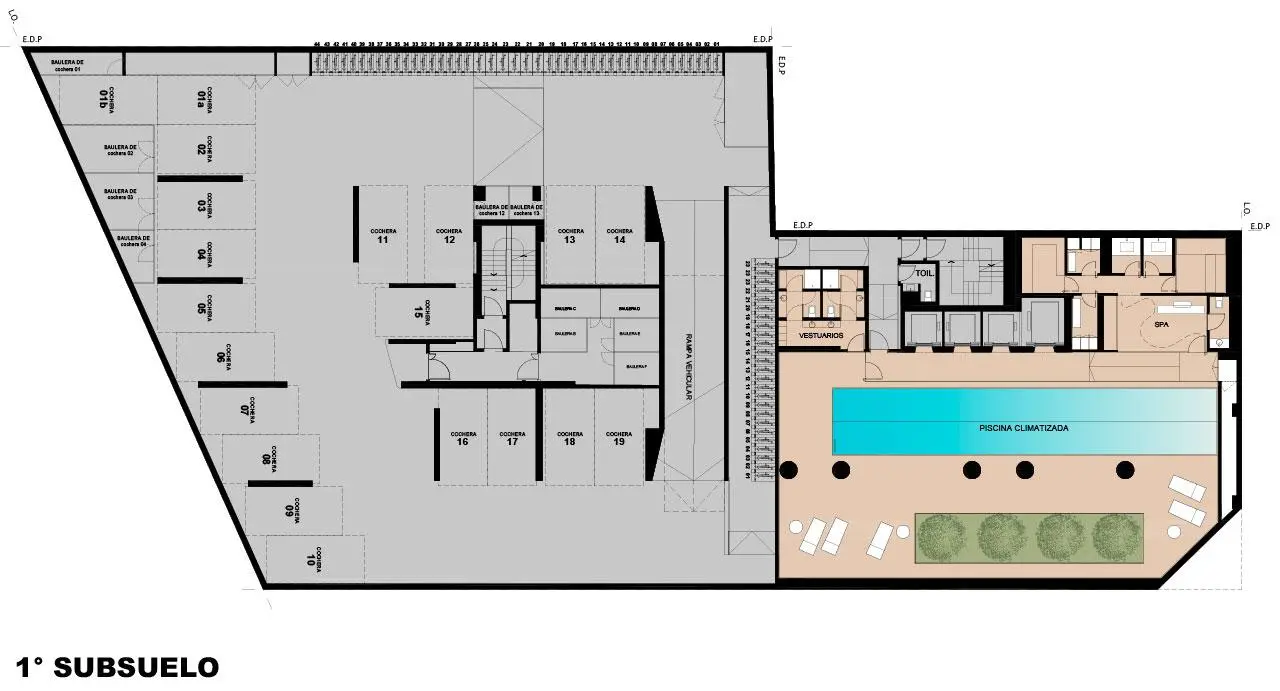
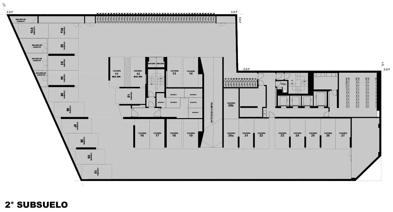
Subsuelos:
-3 subsuelos de cocheras, con acceso por rampa desde José Hernández.
Primer subsuelo:
- Piscina cubierta de nado, climatizada, de 20 metros de largo, con área de relax.
- Área de Spa con Sauna, Vestuarios, Duchas y Sala de Masajes.
- Laundry.
Estos espacios ventilan e iluminan hacia un gran Patio Inglés con vegetación, que puede observarse desde la PB.
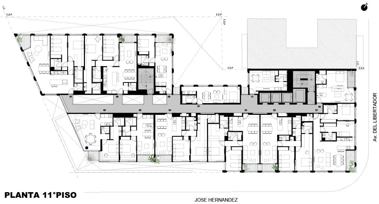
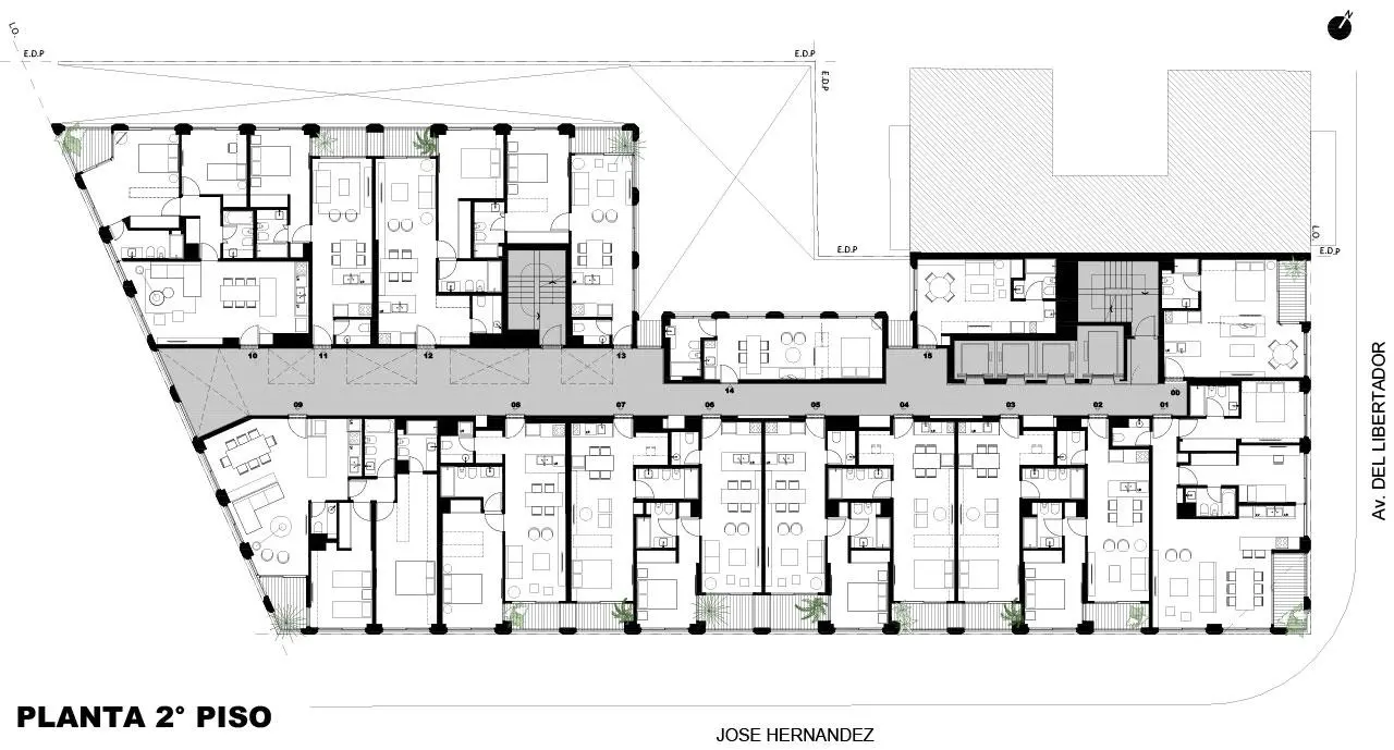
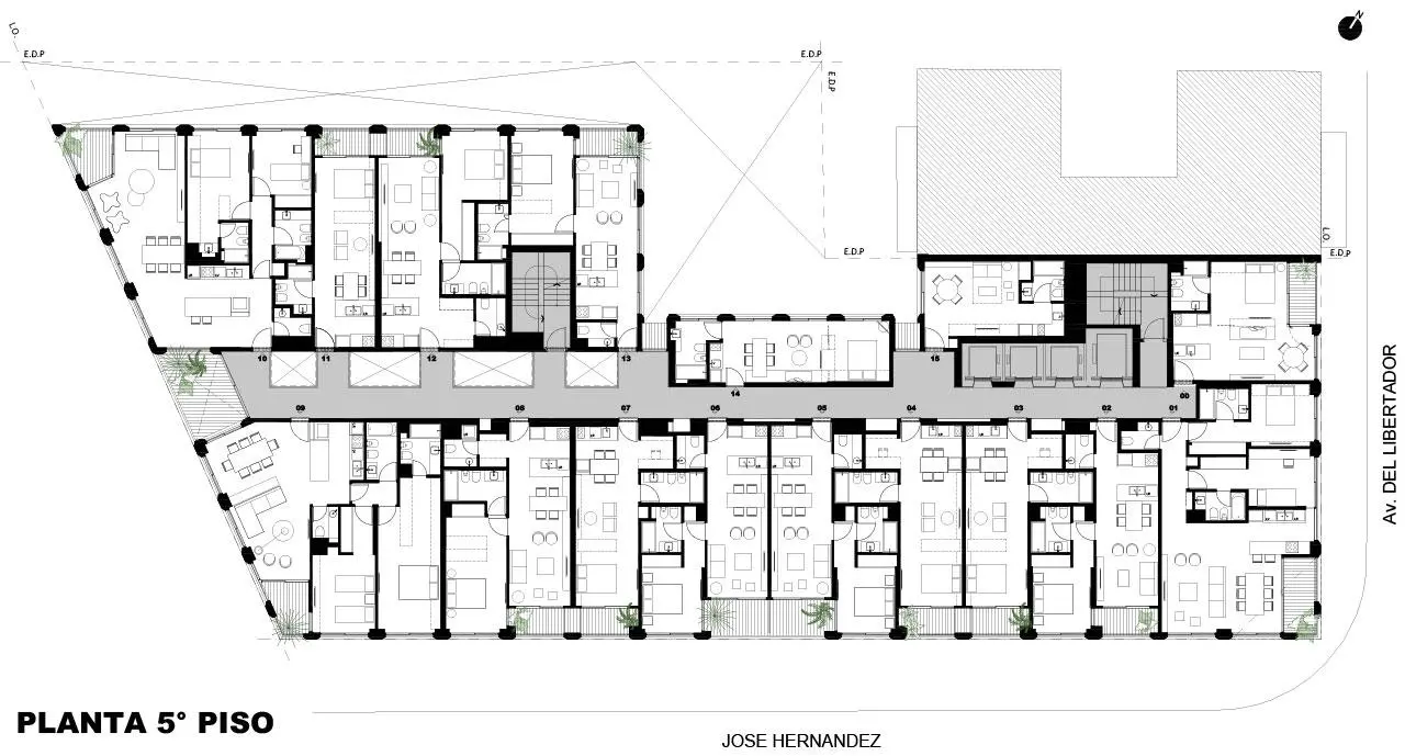
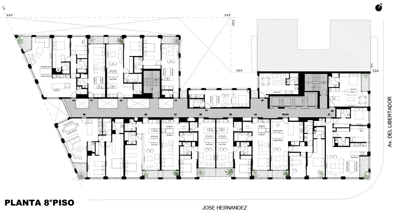
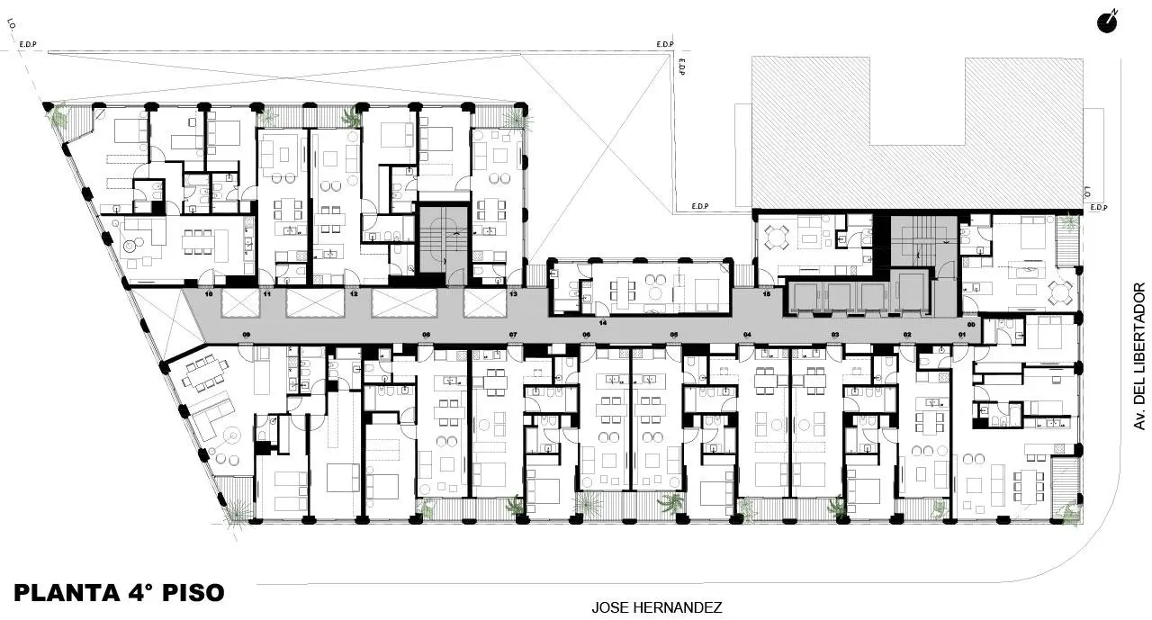
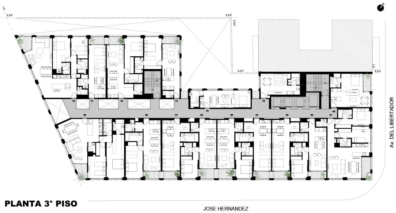
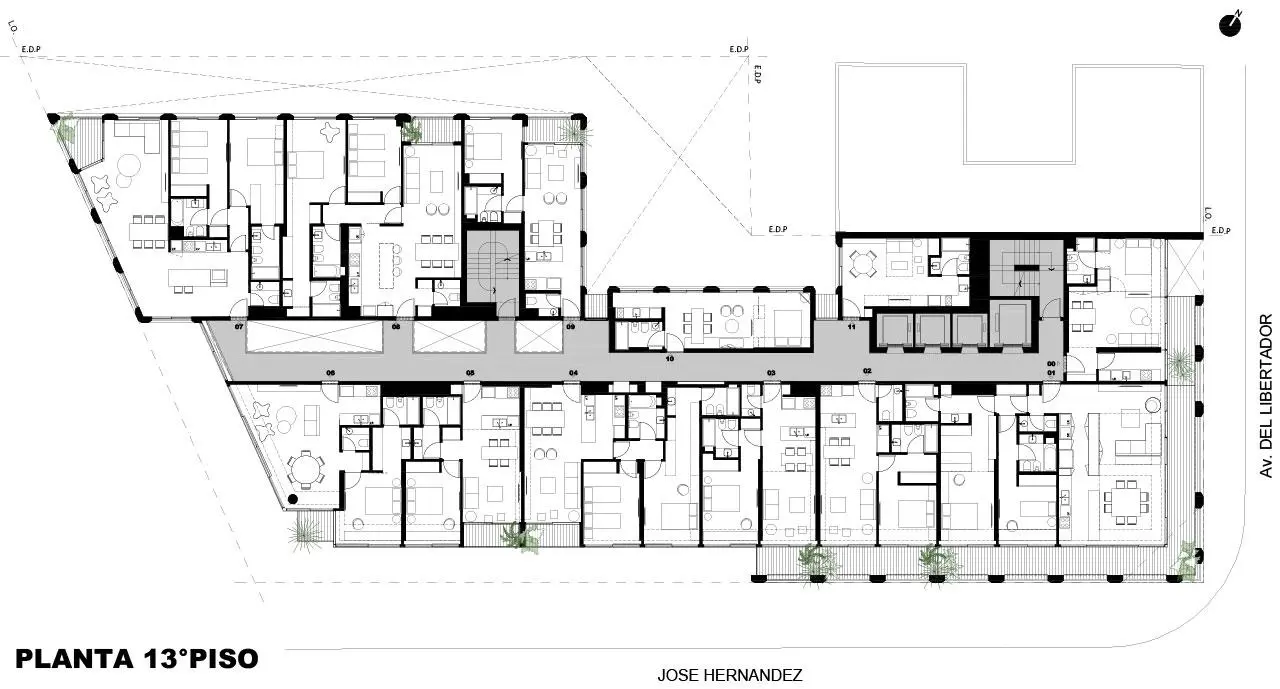
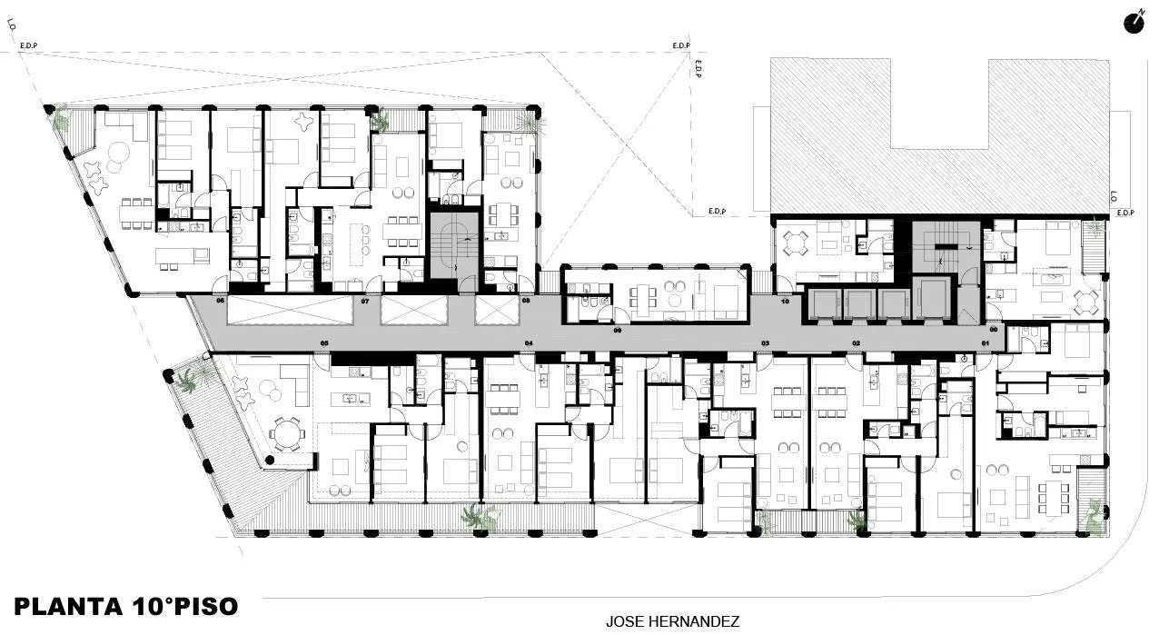
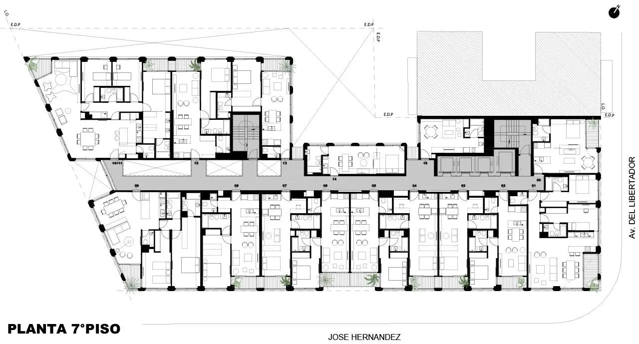
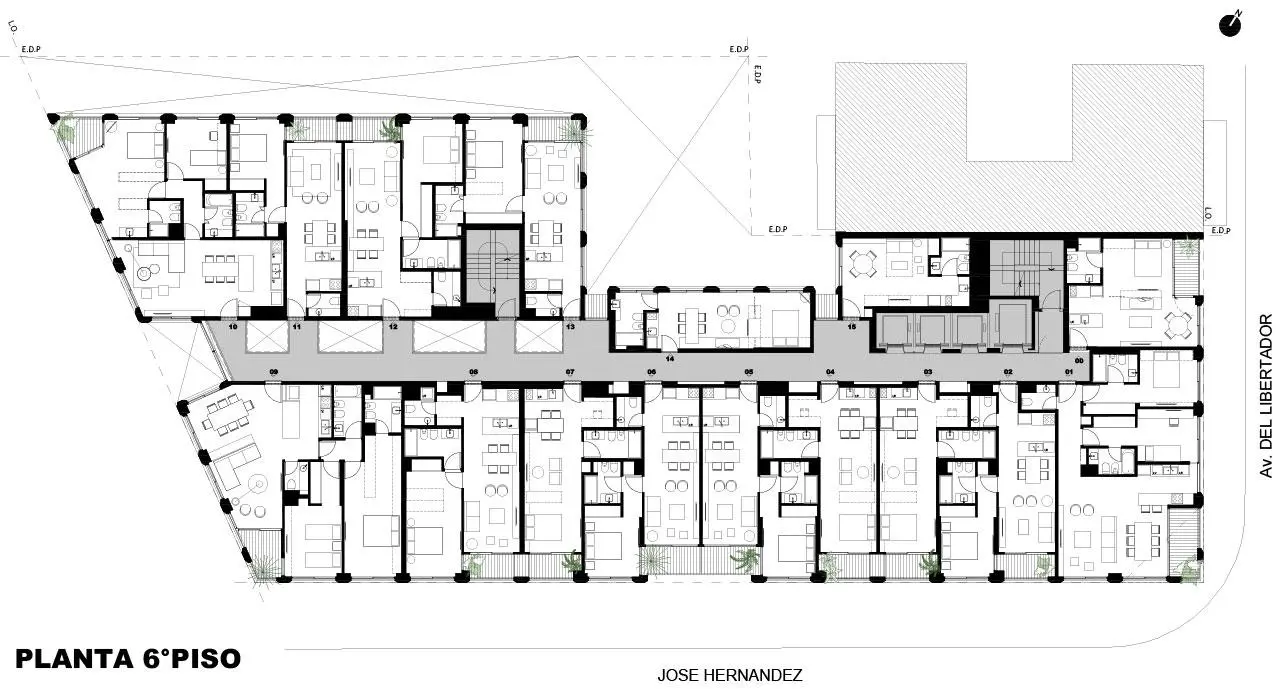
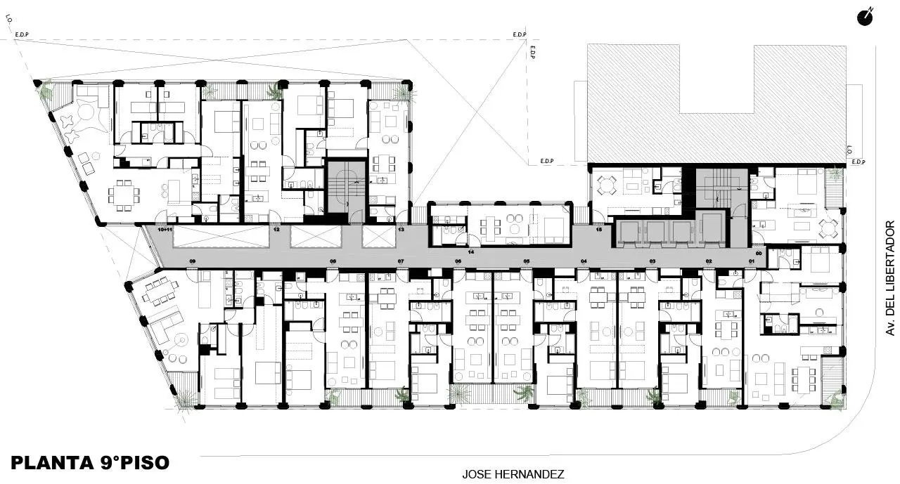
En las plantas de los pisos 2 al 9, cada piso ofrece 16 unidades de 1, 2 y 3 ambientes de planta flexible, que se pueden unificar a 4, 5 o más ambientes de acuerdo a las necesidades de la estructura familiar.
Las unidades se conectan a través de amplias galerías de 2 a 4 metros de ancho, en una trama que intercala vacíos y balcones y, que genera, en algunos casos, “puentes” de acceso a las viviendas. Así, conforman un espacio tridimensional que remata en un gran ventanal sobre Virrey Vertiz.
Los balcones de todas las unidades se disponen hacia adentro de la línea municipal, con la idea de crear espacios semi-cubiertos a la manera de verdaderos livings exteriores.
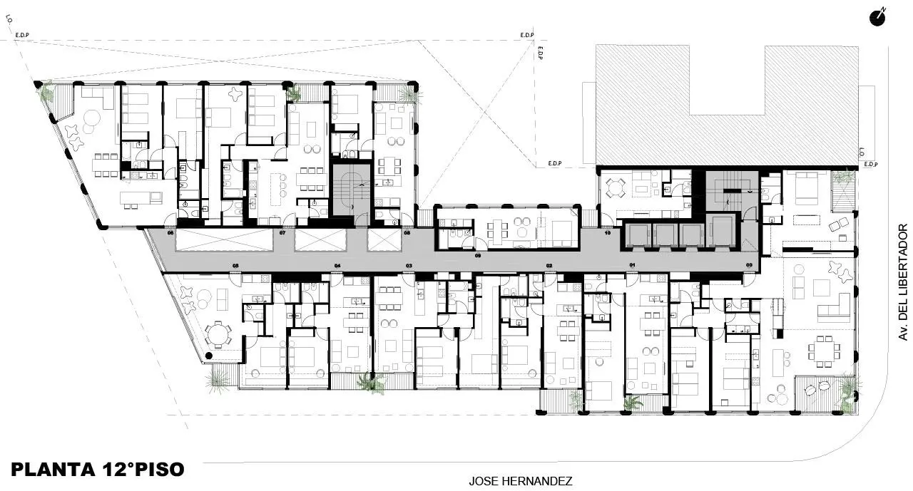
A partir del piso 10, los retiros comienzan a originar amplios balcones aterrazados. Las unidades de los pisos 10 a 15 son de 2 a 4 ambientes unificables. En las plantas 14 y 15 hay Exclusivos penthouses en dúplex, con terraza propia.
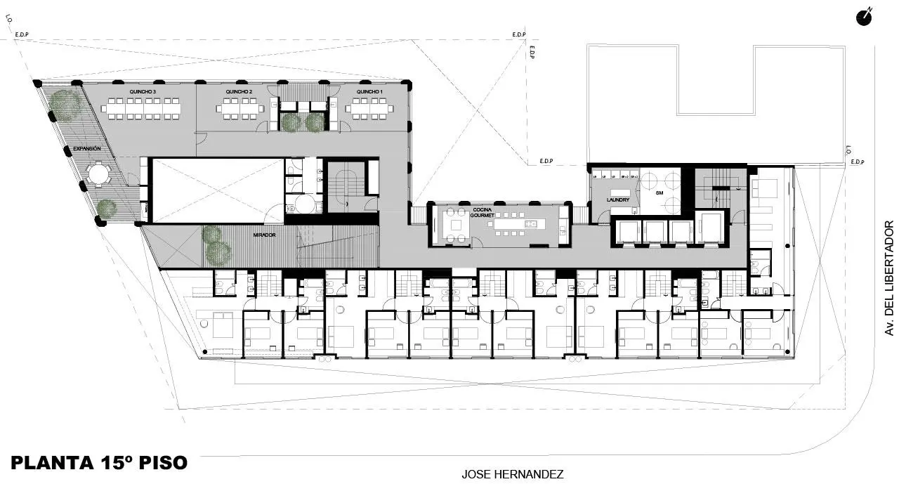
AMENITIES:
El edificio cuenta con áreas de amenities distribuidos en 5 de sus plantas:
-1° SS: Gran pileta cubierta con patio inglés hacia la PB, SPA, Sauna y sala de masajes.
-PB: Salón de usos múltiples, y sala de estar, dando a un hermoso jardín de lectura habitado por jacarandás que dan color y frescura.
-1° PISO: Gimnasio, sala flex, espacio de coworking y sala de proyecciones.
-PISO 15: 3 amplísimos quinchos con terrazas y parrillas y un salón gourmet para cenar mirando el skyline de Belgrano.
-Terraza (Piso 16): Piscina exterior, amplísimos jardín urbano, sectores de estar, miradores con fogones.
Paisajismo: BULLA
Interiorismo: ACF
OTROS DATOS QUE TE VAN A INTERESAR:
-El espacio urbano (que parece un gran patio) al contrafrente tiene las medidas de una calle, aproximadamente 14m x 14m; por lo tanto, las unidades que ventilan e iluminan hacia allí cuentan con orientación Norte y grandes visuales ya que dan a pulmón de manzana y donde no hay construcciones de más de 2 pisos casi por los próximos 20m desde la medianera.
-El único lindero más alto está sobre Libertador y tiene 13 pisos.
-En la vereda de enfrente de Libertador hacia el río el edificio tiene 6 pisos, por lo cual desde el piso 7 en adelante la visual es aun más abierta y despejada.
-Todo el edificio es apto profesional.
Aclaración
Todas las imágenes, planos, descripciones, y características indicadas son meramente referenciales e ilustrativas y podrán ser modificadas sin previo aviso.Las superficies indicadas son estimadas. Las superficies y medidas definitivas surgirán del plano de mensura final aprobado oportunamente por las autoridades pertinentes.Las fechas de inicio de obra o posesión son estimadas, podrán ser reprogramadas por la Dirección de obra y dependerán a su vez de un proceso de aprobaciones municipales u otros organismos intervinientes.Los precios indicados podrán modificarse sin previo aviso. El interesado deberá realizar las verificaciones respectivas previamente a la realización de cualquier operación, requiriendo por sí o sus profesionales las copias necesarias de la documentación que corresponda.





































