Departamento

Viamonte 1657 - 1101

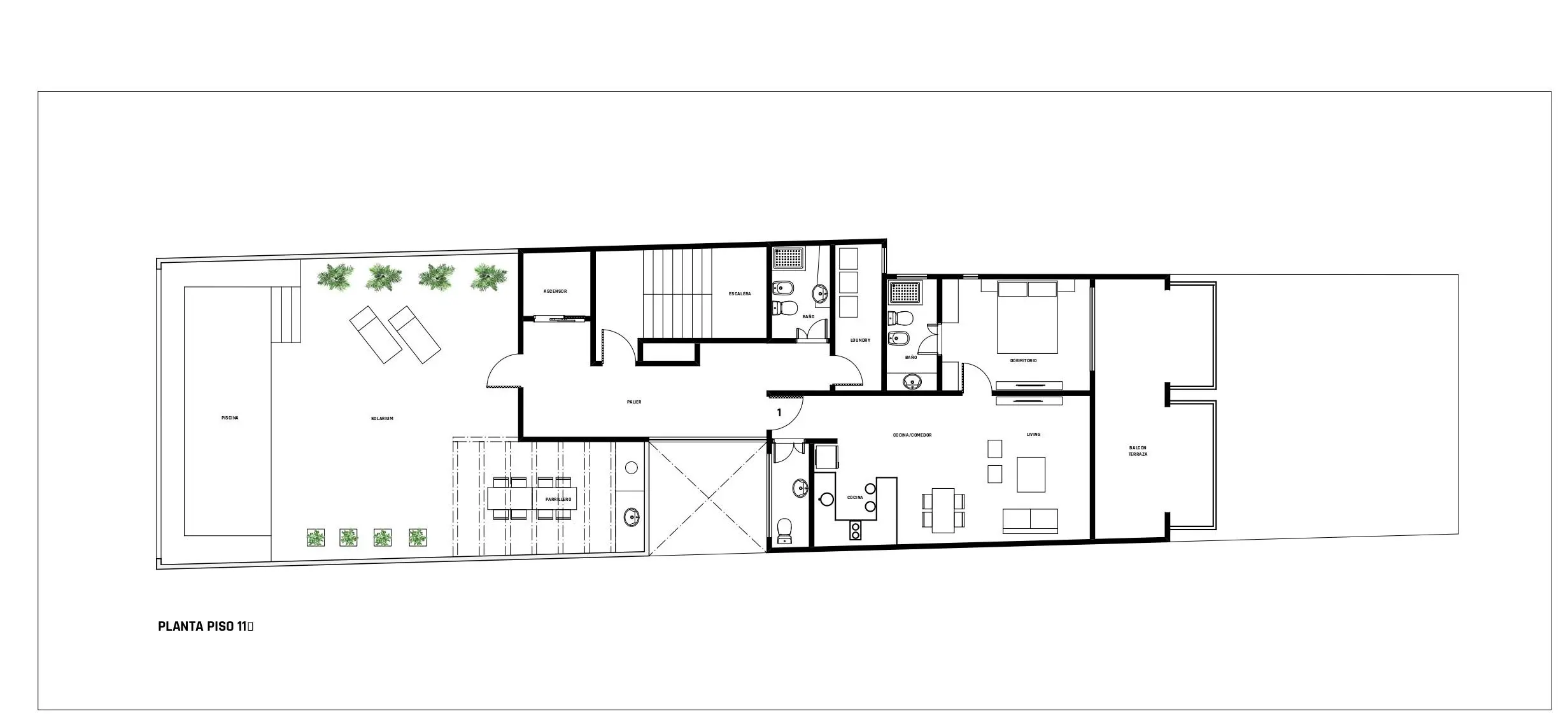
77.9 2 ambientes1 baños
Viamonte 1657, Barrio Norte, Capital Federal, Argentina
Estado
Obra Terminada

Entrega inmediata

Precio
USD 220.110

Ambientes

(2)
Dormitorio
  • Dormitorio estándar
Baño
  • Baño Completo
Espacio Cubierto
  • Living
Superficie total (77.9 m²)
Cubierta
55.5 m²
Descubierta
22.4 m²

Detalles del emprendimiento

Proyecto

Frente Simple

Emprendimiento

Edificio

Pisos

11 piso(s)

Orientación del Frente

Sur

Cantidad de Unidades

41 en total

Locales Comerciales

1 en total

Ascensores

1

Apto profesional

Si

Ubicación

Mapa estatico

Amenities

  • Piscina
    • Piscina en Terraza
  • Bicicleteros
  • Laundry
  • Sector de Parrilla
  • Seguridad 24 hs
  • Solarium

Planos

Plano de la propiedad
Plano del emprendimiento
Plano del emprendimiento
Plano del emprendimiento
Plano del emprendimiento
Plano del emprendimiento
Propiedad1 / 6

Servicios

  • Electricidad
  • Gas
  • Pavimento
  • Alcantarillado
  • Agua corriente
Descripción

Última actualización: 14/12/2025
Aclaración
Todas las imágenes, planos, descripciones, y características indicadas son meramente referenciales e ilustrativas y podrán ser modificadas sin previo aviso.Las superficies indicadas son estimadas. Las superficies y medidas definitivas surgirán del plano de mensura final aprobado oportunamente por las autoridades pertinentes.Las fechas de inicio de obra o posesión son estimadas, podrán ser reprogramadas por la Dirección de obra y dependerán a su vez de un proceso de aprobaciones municipales u otros organismos intervinientes.Los precios indicados podrán modificarse sin previo aviso. El interesado deberá realizar las verificaciones respectivas previamente a la realización de cualquier operación, requiriendo por sí o sus profesionales las copias necesarias de la documentación que corresponda.
Precio de la unidad
USD 220.110
Viamonte 1657 - 1101 - AEstrenar