Departamento

Olazábal 2790 - 501

133.5 4 ambientes4 baños
Olazábal 2790, Belgrano, Capital Federal, Argentina
Estado
Obra Terminada

Entrega inmediata

Precio
USD 530.000

Ambientes

(4)
Dormitorio(3)
  • Dormitorio estándar x3
Baño(4)
  • Baño Completo x3
  • Toilette
Espacio Cubierto
  • Living
Superficie total (133.5 m²)
Cubierta
115.8 m²
Semicubierta
17.7 m²

Detalles del emprendimiento

Proyecto

Esquina

Emprendimiento

Edificio

Pisos | Subsuelos

10 piso(s)/1 subsuelo(s)

Orientación del Frente

Noreste

Cantidad de Unidades

40 en total

Cocheras en el Emprendimiento

Si

Ascensores

2

Ubicación

Mapa estatico

Amenities

  • Piscina
    • Piscina Climatizada
    • Piscina Cubierta
  • Coworking
  • Gimnasio
  • Quincho
  • Sector de Parrilla
  • Seguridad 24 hs
  • Solarium
  • SUM

Planos

Plano de la propiedad
Plano de la propiedad
Plano del emprendimiento
Plano del emprendimiento
Plano del emprendimiento
Plano del emprendimiento
Plano del emprendimiento
Plano del emprendimiento
Plano del emprendimiento
Propiedad1 / 9

Servicios

  • Internet
  • Electricidad
  • Gas
  • Pavimento
  • Alcantarillado
  • Agua corriente
Descripción
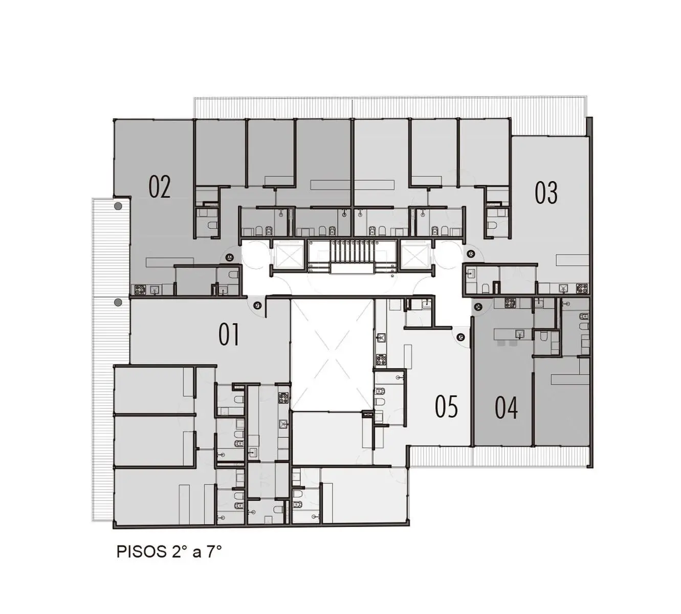
Espectacular 4 ambientes con dependencia al frente sobre Vidal. 3 dormitorios con balcón corrido al frente, dormitorio principal en suite con vestidor, baño completo y toilette de recepción. Living comedor con salida a balcón, cocina separada y dependencia de servicio.

Esta unidad posee una cochera incluida en el valor publicado.





Imponente edificio sobre un triple lote, en la esquina de Olazábal y Vidal con 45 metros lineales de fachada.

Consta de 8 pisos con unidades de 2, 3 y 4 ambientes. En el piso 8 unidades con hermosos balcones aterrazados.
El acceso a un gran hall de entrada por la esquina de la Calle Olazábal.
En el Subsuelo se encuentran amplias cocheras a las que se accede por rampa.

Mas de 300 m2 de Amenities en piso 9:
-Seguridad 24 hs con control de acceso
-Solárium
-Piscina climatizada de nado adultos
-GYM
-Pileta climatizada para niños
-Parrilla y quincho descubierto
-SUM/LIVING
-Espacio coworking
-Áreas verdes/jardines
-Bauleras (8) en piso 10

Excelentes terminaciones y detalles de diseño:
- Pisos de porcelanato
- Muebles bajo mesada y alacenas completos
- Frente e interiores de placar completos
- Calefacción por piso radiante eléctrico con termostato individual
- Preinstalación para equipos de aire acondicionado
- Anafes y horno eléctrico
- Agua caliente central con termotanques de alta recuperación






CONSULTE POR OTRAS UNIDADES DE ESTE EMPRENDIMIENTO (EN OTRO PISO, OTRA UBICACION Y OTRAS TIPOLOGIAS)


Última actualización: 17/12/2025
Aclaración
Todas las imágenes, planos, descripciones, y características indicadas son meramente referenciales e ilustrativas y podrán ser modificadas sin previo aviso.Las superficies indicadas son estimadas. Las superficies y medidas definitivas surgirán del plano de mensura final aprobado oportunamente por las autoridades pertinentes.Las fechas de inicio de obra o posesión son estimadas, podrán ser reprogramadas por la Dirección de obra y dependerán a su vez de un proceso de aprobaciones municipales u otros organismos intervinientes.Los precios indicados podrán modificarse sin previo aviso. El interesado deberá realizar las verificaciones respectivas previamente a la realización de cualquier operación, requiriendo por sí o sus profesionales las copias necesarias de la documentación que corresponda.
Precio de la unidad
USD 530.000