+21
- Home
- Emprendimientos
- TEMPORA - Montañeses 2342
Emprendimiento
TEMPORA - Montañeses 2342
Montañeses 2342, Belgrano, Capital Federal, Argentina
EstadoObra Terminada
Entrega inmediata
Desde
USD119.000
Hasta
USD233.000
Destacado
Gold
Detalles
Proyecto
Quíntuple Frente
Emprendimiento
Edificio
Pisos | Subsuelos
5 piso(s)/4 subsuelo(s)
Orientación del Frente
Noreste
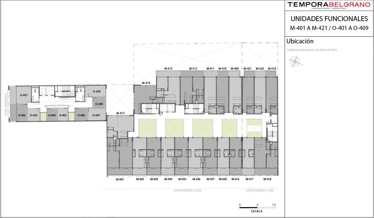
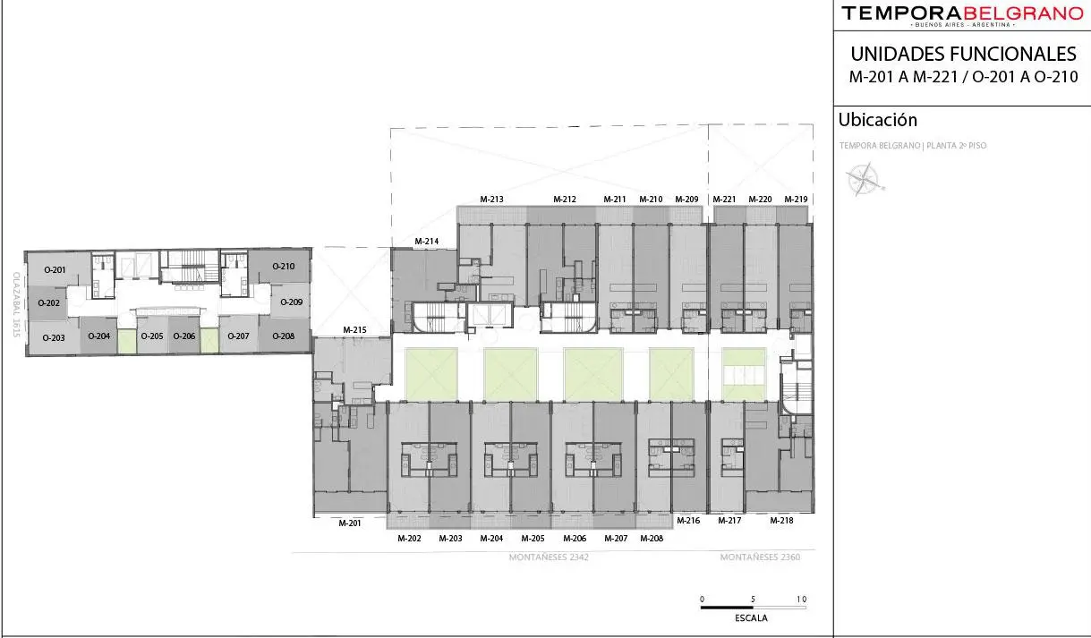
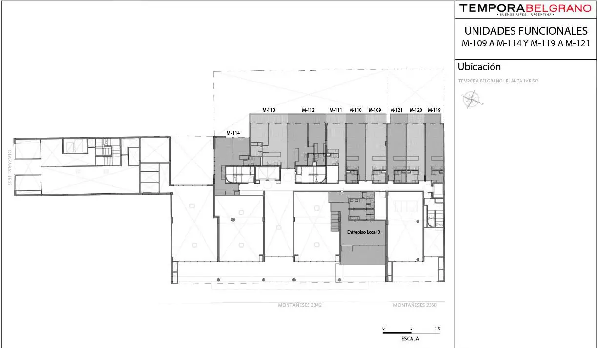
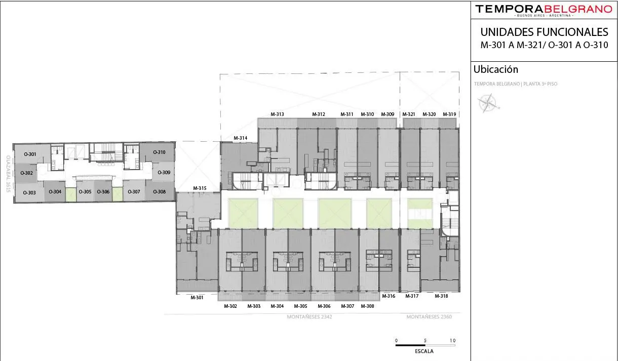
Cantidad de Unidades
101 en total
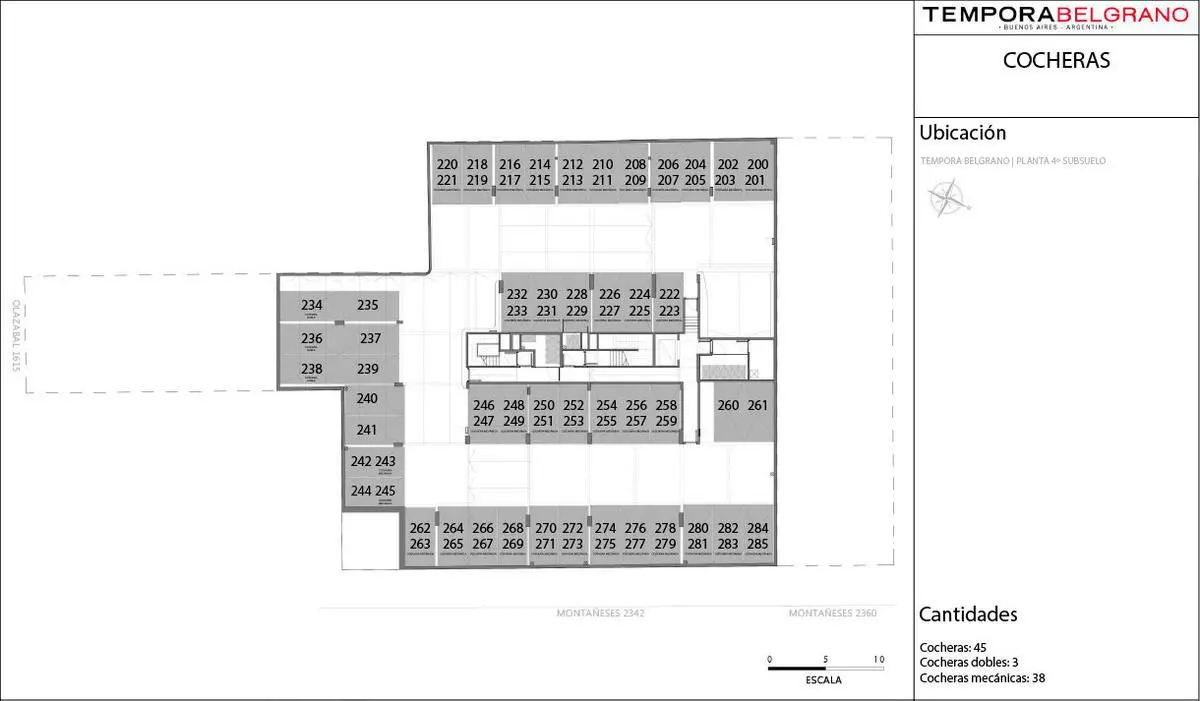
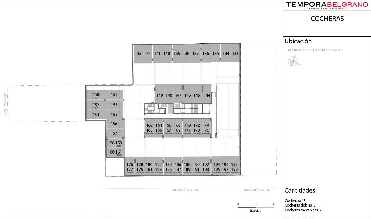
Cocheras en el Emprendimiento
Si
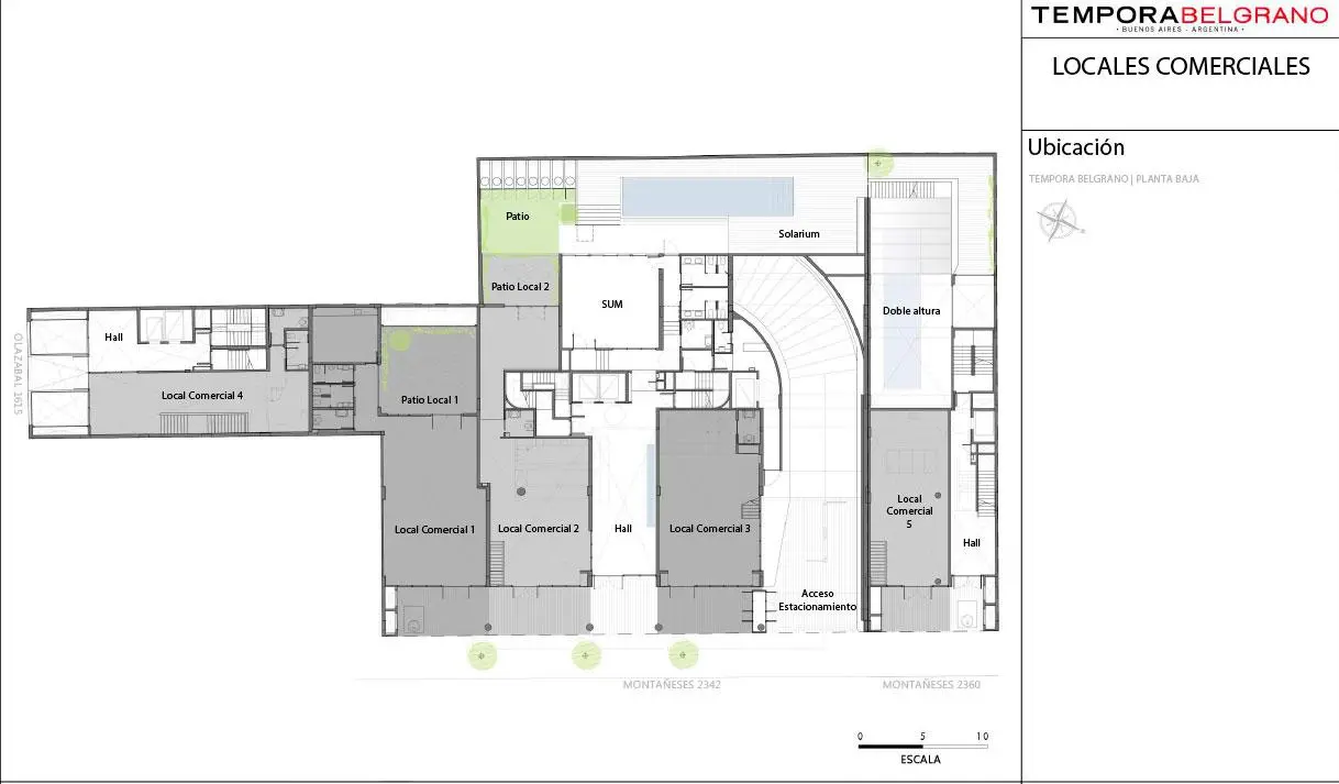
Locales Comerciales
5 en totalApto gastronómico
Ascensores
5
Apto profesional
Si
Renta temporal
Si
Ubicación
Amenities
- Piscina
- Piscina en PB
- Sector de Parrilla
- Seguridad 24 hs
- Solarium
- SUM
Planos
Emprendimiento1 / 9
Unidades
Servicios
- Electricidad
- Pavimento
- Alcantarillado
- Agua corriente
Importante edificio desarrollado sobre lote de 46 mts de frente con unidades de 1, y 2 ambientes de 30 a 63 m2. Apto para vivienda y uso profesional. Ideal inversion de renta temporaria tipo Airbnb, para turismo hospitalario (FLENI e Instituto Cardiológico de Bs As), turismo empresarial (corredor de oficinas corporativas eje Libertador) y turismo deportivo (zona de clubes: River, Obras, Ciudad, etc.).
Cuenta con parking, importantes locales en planta baja y full amenities: Piscina, Solarium, SUM, Parrillas, Patio y Cocheras en parking.
Este concepto de edificio ya funciona en otros países en forma muy simple y beneficiosa para sus propietarios y la comunidad. Desde el año 2012 TEMPORARENT opera frente al Hospital Italiano (un concepto similar y también relacionado al turismo medico) en forma exitosa.
Cada propietario o inversor puede firmar un acuerdo de comercialización con la Inmobiliaria TEMPORARENT para aportarlo a la explotación (tanto en parking como en departamento para alquiler temporal) o disponer del bien para vivir o alquilarlo por sus medios, o venderlo como en un edificio de propiedad horizontal tradicional.
Dispone de un impactante Hall de acceso, ascensores automáticos, locales comerciales en Planta Baja, destinados a buena gastronomía, así como también servicio de parking y vigilancia 24 hs.
Dado el carácter del edificio los copropietarios gozan de amenities y espacios comunes más amplios que en los tradicionales, a saber: Piscina, SUM, pasillos y halls hoteleros (mas amplios que los tradicionales). Por lo tanto, al comprar un m2 de este complejo está comprando mucho más que un m2 tradicional.
El proyecto cuenta con el sello de calidad del Estudio Aisenson.
DETALLE DE TERMINACIONES DE LOS DEPARTAMENTOS DE MONTAÑESES
- CIELORRASOS APLICADOS DE YESO
- CIELORRASOS BAJOS ARMADOS EN PLACA DE ROCA DE YESO Y/O ARMADO DE YESO.
- DIVISIONES INTERIORES, PAREDES DE NÚCLEO SÓLIDO SISTEMA MUROSECO Y/O MAMPOSTERÍA TRADICIONAL.
- AGUA CALIENTES CENTRAL
- CALEFACCIÓN CENTRAL POR PISO CON REGULACIÓN INDIVIDUAL DE CADA UNIDAD.
- PREINSTALACIÓN PARA EQUIPOS DE AIRE ACONDICIONADO (SIN LOS EQUIPOS)
- PISOS DE PORCELANATO
- EN BAÑOS PISOS DE PORCELANATO Y REVESTIMIENTO EN CERÁMICA Y/O PORCELANATO.
- CARPÍNTERIAS DE ALUMINIO ANODIZADO DOBLE VIDRIO CON DVH
- ARTEFACTOS SANITARIOS ROCA O SIMILAR
- GRÍFERIA FV O SIMILAR
- MUEBLES DE COCINA BAJO MESADA Y ALACENA
- FRENTE INTEGRAL CON INTERIORES DE PLACARD
- MESADAS DE GRANITO Y/O MÁRMOL
- EN LAS UNIDADES FUNCIONALES M-202, M-203, M-204, M-205, M-206, M-207, M-208, M-216, M-302, M-303, M-304, M-305, M-306, M-307, M-308
Y M-316 ANAFE ELÉCTRICO
- EN LAS DEMÁS UNIDADES FUNCIONALES HORNOS Y ANAFES ELÉCTRICOS
- INSTALACIÓN PARA CABLE Y TELEFONÍA
Aclaración
Todas las imágenes, planos, descripciones, y características indicadas son meramente referenciales e ilustrativas y podrán ser modificadas sin previo aviso.Las superficies indicadas son estimadas. Las superficies y medidas definitivas surgirán del plano de mensura final aprobado oportunamente por las autoridades pertinentes.Las fechas de inicio de obra o posesión son estimadas, podrán ser reprogramadas por la Dirección de obra y dependerán a su vez de un proceso de aprobaciones municipales u otros organismos intervinientes.Los precios indicados podrán modificarse sin previo aviso. El interesado deberá realizar las verificaciones respectivas previamente a la realización de cualquier operación, requiriendo por sí o sus profesionales las copias necesarias de la documentación que corresponda.












