+15
- Home
- Emprendimientos
- SOLAR CAVIA - Cavia 3094
Emprendimiento
SOLAR CAVIA - Cavia 3094
Cavia 3094, Palermo Chico, Palermo, Capital Federal, Argentina
EstadoEn Construcción
Posesión Aproximada ennoviembre de 2027
Desde
USD321.763
Hasta
USD1.070.313
Destacado
Gold
Detalles
Proyecto
EsquinaTriple frente
Emprendimiento
Edificio
Pisos | Subsuelos
13 piso(s)/3 subsuelo(s)
Orientación del Frente
Noreste
Cantidad de Unidades
40 en total
Cocheras en el Emprendimiento
Si
Locales Comerciales
1 en totalApto gastronómico
Ascensores
3
Apto profesional
Si
Ubicación
Amenities
- Gimnasio
- Piscina
- Sector de Parrilla
- Seguridad 24 hs
- Solarium
- Spa
- SUM
Avance de obra
1 / 1
Planos
Emprendimiento1 / 11
Unidades
Servicios
- Electricidad
- Pavimento
- Alcantarillado
- Agua corriente
- Agua Caliente Central
Solar Cavia está ubicado en la esquina de Cavia y Gelly, en pleno Palermo Chico, uno de los barrios más elegantes y prestigiosos de la ciudad. Se trata de un desarrollo residencial de máxima categoría, sobre tres lotes que conforman más de 40 metros lineales de frente.
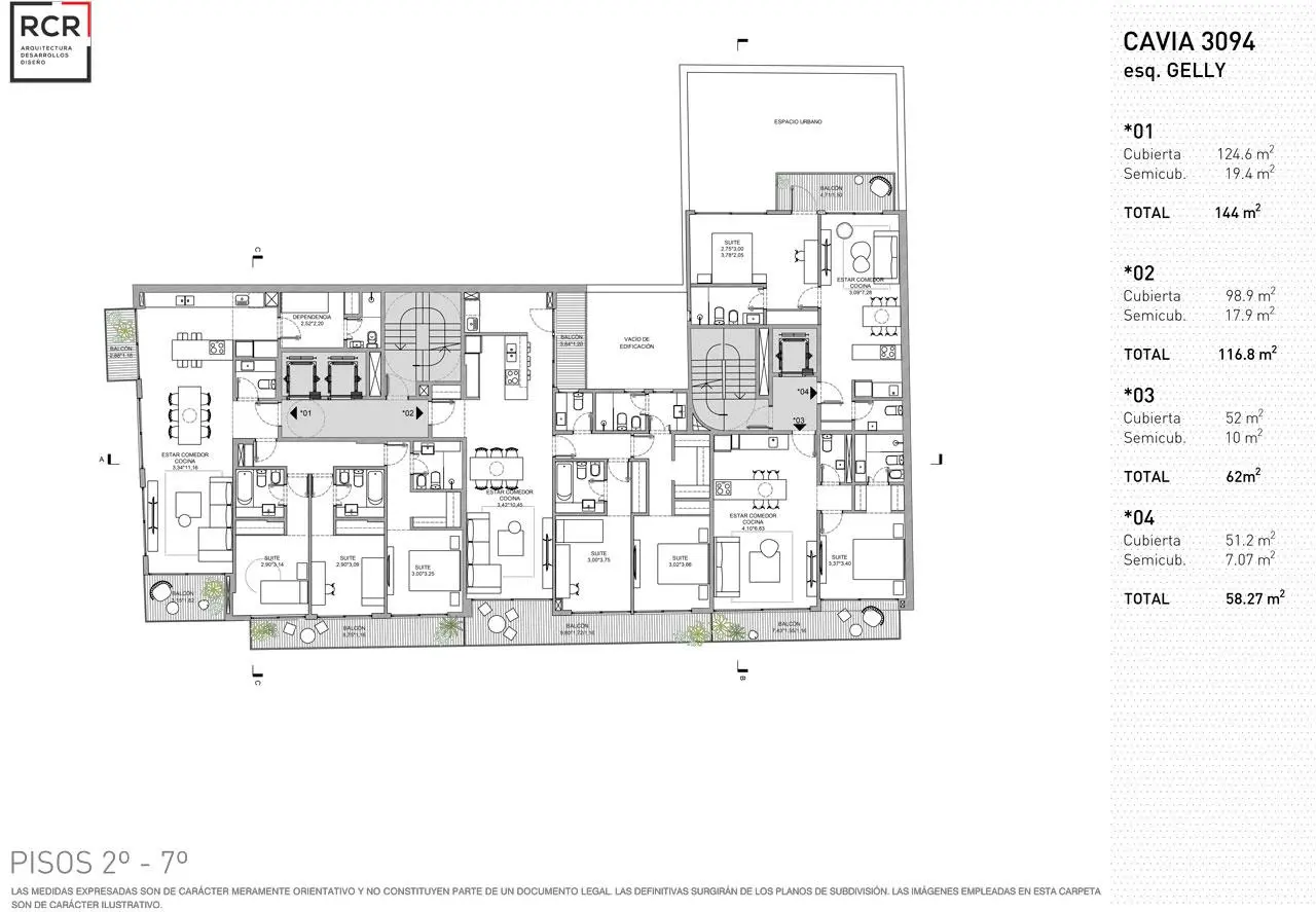
El proyecto consta de 13 pisos que distribuyen amplios y exclusivos semipisos de 1, 2 y 3 dormitorios con y sin dependencias. En los pisos 11, 12 y 13 habrá exclusivos Pent Houses de 2 y 3 dormitorios con dependencias y terrazas propias, parrillas y piscinas privadas de 8,40 x 2,50 mts.
Todas las unidades - con superficies que van desde los 100 a 320 m2 - cuentan con ambientes luminosos, extensos balcones y excelentes vistas abiertas.
Se desarrollarán 3 subsuelos de cocheras, espacio de guardado de bicicletas y bauleras.
A pasos de Av. Figueroa Alcorta, Plaza Alemania, el Malba, y Alcorta Shopping, su excelente conectividad, garantiza fácil comunicación desde y hacia cualquier punto de la ciudad.
AMENITIES:
- Salón de Usos Múltiples
- Gimnasio
- Parrillas
- Spa
- Piscina
- Solarium
Aclaración
Todas las imágenes, planos, descripciones, y características indicadas son meramente referenciales e ilustrativas y podrán ser modificadas sin previo aviso.Las superficies indicadas son estimadas. Las superficies y medidas definitivas surgirán del plano de mensura final aprobado oportunamente por las autoridades pertinentes.Las fechas de inicio de obra o posesión son estimadas, podrán ser reprogramadas por la Dirección de obra y dependerán a su vez de un proceso de aprobaciones municipales u otros organismos intervinientes.Los precios indicados podrán modificarse sin previo aviso. El interesado deberá realizar las verificaciones respectivas previamente a la realización de cualquier operación, requiriendo por sí o sus profesionales las copias necesarias de la documentación que corresponda.



























