+13
- Home
- Emprendimientos
- SKY CRAMER - Av. Cramer 2725
Emprendimiento
SKY CRAMER - Av. Cramer 2725
Av. Crámer 2725, C1428CTS Cdad. Autónoma de Buenos Aires, Argentina
EstadoPozo
Posesión Aproximada endiciembre de 2028
Desde
USD132.616
Hasta
USD141.658
Destacado
Gold
Detalles
Emprendimiento
Edificio
Ubicación
Amenities
- Gimnasio
- Piscina
- Solarium
- SUM
Planos
Emprendimiento1 / 9
Unidades
Servicios
- Electricidad
- Pavimento
- Alcantarillado
- Agua corriente
SKY CRAMER, descubrí confort y diseño en este desarrollo inmobiliario.
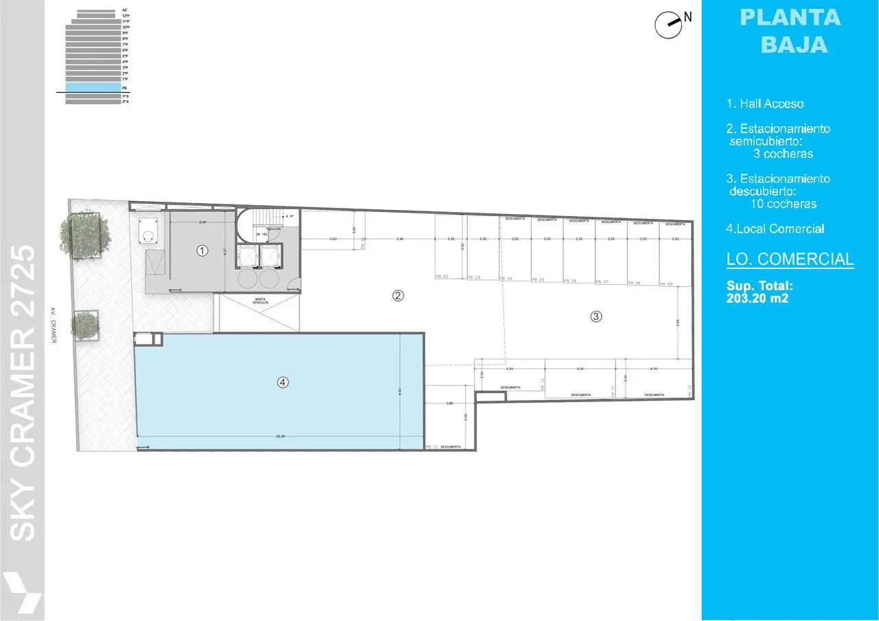
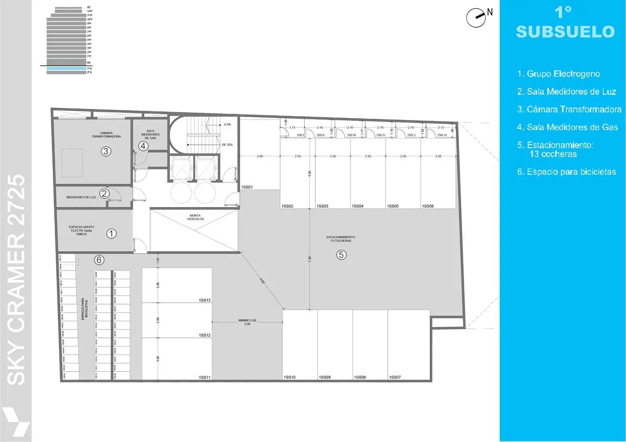
Ubicado en un terreno de doble frente, próximo a la esquina de Cramer y Roosevelt. Consta de 12 pisos + 2 retiros. En planta baja cuenta con un amplio local comercial, acceso a cocheras y hall principal, con 2 niveles de subsuelos y cocheras que se encuentran distribuidas en 3 niveles.
Disfrutá de una oferta gastronómica variada a pocos pasos. La cercanía con Av. Cabildo te conecta con todo, y tenés fácil acceso a la Av. General Paz, Subte Línea D y Metrobus.
El proyecto presenta departamentos de 2 ambientes, con amplios livings comedor con cocina integrada, cada unidad cuenta con acceso a un balcón con la orientación más codiciada, con espacios bien iluminados. La habitación principal en suite y un toilette de recepción.
El edificio ofrece amenities: un amplio SUM y un gimnasio equipado. En el piso 12, una pileta con solárium con vistas increíbles.
¡No dejes pasar esta gran oportunidad!
Aclaración
Todas las imágenes, planos, descripciones, y características indicadas son meramente referenciales e ilustrativas y podrán ser modificadas sin previo aviso.Las superficies indicadas son estimadas. Las superficies y medidas definitivas surgirán del plano de mensura final aprobado oportunamente por las autoridades pertinentes.Las fechas de inicio de obra o posesión son estimadas, podrán ser reprogramadas por la Dirección de obra y dependerán a su vez de un proceso de aprobaciones municipales u otros organismos intervinientes.Los precios indicados podrán modificarse sin previo aviso. El interesado deberá realizar las verificaciones respectivas previamente a la realización de cualquier operación, requiriendo por sí o sus profesionales las copias necesarias de la documentación que corresponda.










