

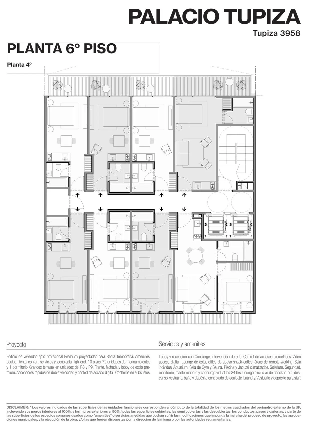
Departamento
Pje. Tupiza 3958 - 607
27.16 m²1 ambiente1 baños
Pje. Tupiza 3958, C1425AFB Cdad. Autónoma de Buenos Aires, Argentina
Estado
En Construcción
Posesión Aproximada enjulio de 2027
Precio
USD 143.526


Posesión Aproximada enjulio de 2027
Disposición
Muy lindo departamento monoambiente ubicado al contrafrente, cuenta con living comedor / dormitorio con salida a balcón, cocina integrada y baño completo.
Emprendimiento