

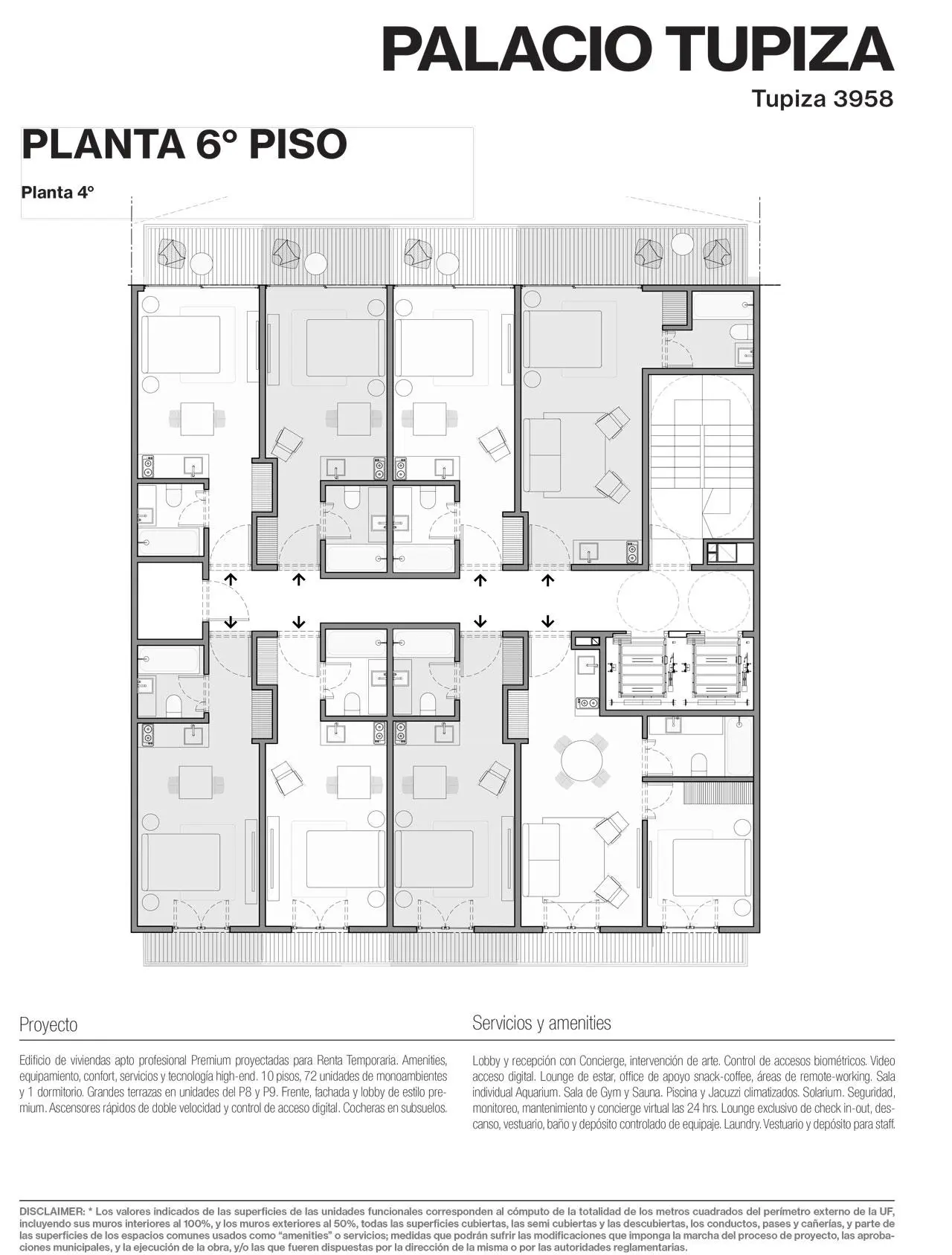
Departamento
Pje. Tupiza 3958 - 603
25.94 m²1 ambiente1 baños
Pje. Tupiza 3958, C1425AFB Cdad. Autónoma de Buenos Aires, Argentina
Estado
En Construcción
Posesión Aproximada enjulio de 2027
Precio
USD 145.526


Posesión Aproximada enjulio de 2027
Disposición
Hermoso departamento monoambiente ubicado al frente con balcón sobre Pasaje Tupiza, cuenta con living comedor / dormitorio con salida a balcón aterrazado, cocina integrada y baño completo.
Emprendimiento