

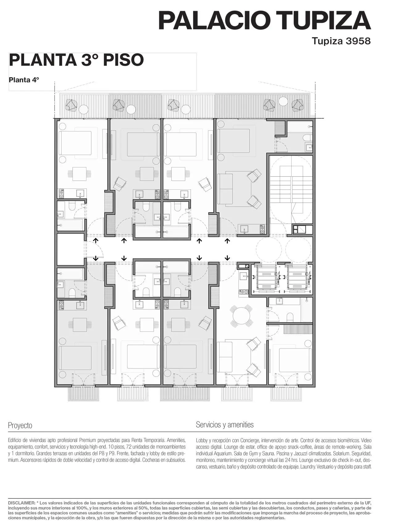
Departamento
Pje. Tupiza 3958 - 308
36.62 m²1 ambiente1 baños
Pje. Tupiza 3958, C1425AFB Cdad. Autónoma de Buenos Aires, Argentina
Estado
En Construcción
Posesión Aproximada enjulio de 2027
Precio
USD 146.503


Posesión Aproximada enjulio de 2027
Disposición
Muy lindo departamento monoambiente con balcón terraza ubicado al contrafrente, cuenta con living comedor / dormitorio con salida a balcón, cocina integrada y baño completo.
Emprendimiento