

Departamento
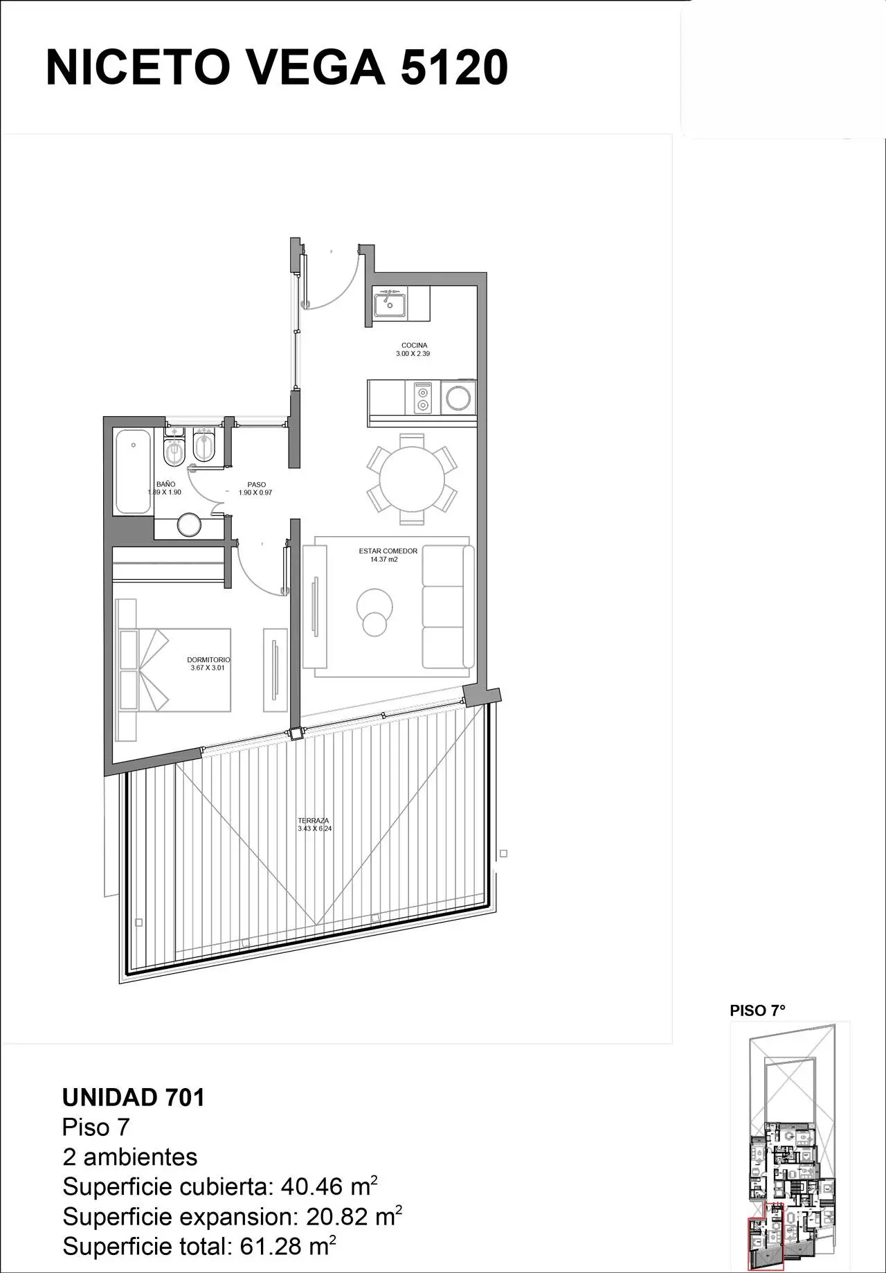
Niceto Vega 5120 - 701
63.73 m²2 ambientes1 baños
Cnel. Niceto Vega 5120, C1414 BEL, Cdad. Autónoma de Buenos Aires, Argentina
Estado
En Construcción
Posesión Aproximada enmarzo de 2026
Precio
USD 240.603


Posesión Aproximada enmarzo de 2026
Disposición
Muy lindo 2 ambientes al frente con gran balcón aterrazado, el mismo cuenta con living comedor con cocina integrada, dormitorio y baño completo. Tanto el living como el dormitorio cuentan con salida al balcón.
CONSULTE POR OTRAS UNIDADES DE ESTE EMPRENDIMIENTO (EN OTRO PISO, OTRA UBICACION Y OTRAS TIPOLOGIAS).
Proyecto
Emprendimiento
Pisos | Subsuelos
Cocheras en el Emprendimiento
Locales Comerciales
Ascensores
Apto profesional
Renta temporal