Departamento

Jorge Newbery 3525 - 4B

70.6 3 ambientes3 baños
Av. Jorge Newbery 3525, C1427EGB Cdad. Autónoma de Buenos Aires, Argentina
Estado
En Construcción

Posesión Aproximada endiciembre de 2027

Precio
USD 198.000

Detalles de la unidad

Disposición

Contrafrente

Ambientes

(3)
Dormitorio(2)
  • Dormitorio estándar x2
Baño(3)
  • Baño Completo x2
  • Toilette
Espacio Cubierto
  • Living
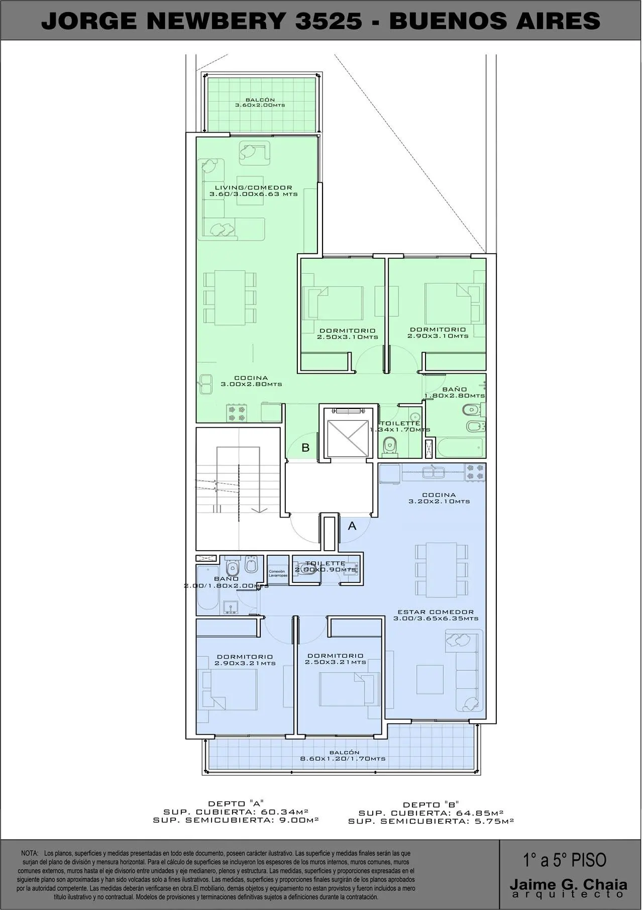
Superficie total (70.6 m²)
Cubierta
64.85 m²
Semicubierta
5.75 m²

Detalles del emprendimiento

Emprendimiento

Edificio

Ubicación

Mapa estatico

Planos

Plano de la propiedad
Plano del emprendimiento
Plano del emprendimiento
Plano del emprendimiento
Plano del emprendimiento
Propiedad1 / 5

Servicios

  • Electricidad
  • Pavimento
  • Alcantarillado
  • Agua corriente
Descripción
Departamento de 3 ambientes ubicado sobre la calle Jorge Newbery 3525, en Chacarita, un barrio en pleno proceso de transformación que combina un perfil residencial con una destacada propuesta gastronómica y cultural, además de excelente conectividad.

La unidad cuenta con living comedor con salida a balcón, generando un espacio luminoso y confortable. La cocina se integra de manera funcional, acompañando una distribución cómoda y bien aprovechada.

Dispone de dos dormitorios de buenas dimensiones, junto a un baño completo y toilette, aportando practicidad y comodidad para la vida diaria.

Consulte por disponibilidad en otros pisos, orientaciones y tipologías dentro del mismo emprendimiento.
Última actualización: 21/04/2026
Aclaración
Todas las imágenes, planos, descripciones, y características indicadas son meramente referenciales e ilustrativas y podrán ser modificadas sin previo aviso.Las superficies indicadas son estimadas. Las superficies y medidas definitivas surgirán del plano de mensura final aprobado oportunamente por las autoridades pertinentes.Las fechas de inicio de obra o posesión son estimadas, podrán ser reprogramadas por la Dirección de obra y dependerán a su vez de un proceso de aprobaciones municipales u otros organismos intervinientes.Los precios indicados podrán modificarse sin previo aviso. El interesado deberá realizar las verificaciones respectivas previamente a la realización de cualquier operación, requiriendo por sí o sus profesionales las copias necesarias de la documentación que corresponda.
Precio de la unidad
USD 198.000