+16
- Home
- Emprendimientos
- INNOVA PARK - Scalabrini Ortiz 3541
Emprendimiento
INNOVA PARK - Scalabrini Ortiz 3541
Scalabrini Ortiz 3541, Palermo Chico, Palermo, Capital Federal, Argentina
EstadoObra Terminada
Entrega inmediata
Desde
USD251.793
Hasta
USD470.000
Destacado
Gold
Detalles
Proyecto
Semitorre
Emprendimiento
Edificio
Pisos | Subsuelos
14 piso(s)/2 subsuelo(s)
Orientación del Frente
Norte
Cantidad de Unidades
23 en total
Cocheras en el Emprendimiento
Si
Ascensores
1
Ubicación
Amenities
- Bicicleteros
- Piscina
- Sector de Parrilla
- Solarium
- SUM
Planos
Emprendimiento1 / 11
Unidades
Servicios
- Electricidad
- Gas
- Pavimento
- Alcantarillado
- Agua corriente
PALERMO CHICO, LA ZONA MAS CHIC DE LA CIUDAD
SCALABRINI ORTIZ Y CASTEX
ENTRE FAV. FIGUEROA ALCORTA Y PLAZA ALEMANIA
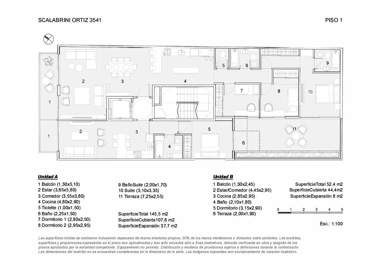
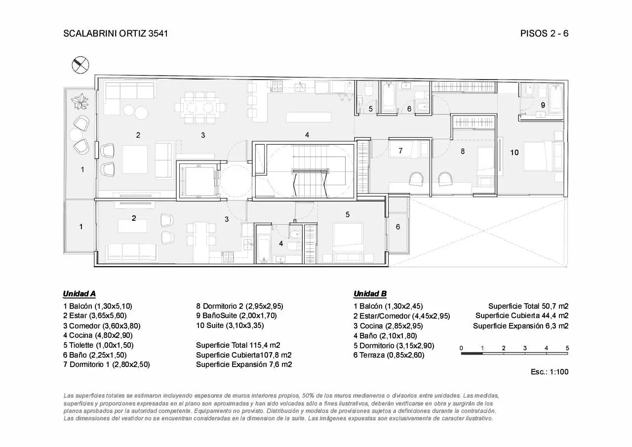
A 100 mts del Jardín Japones, Plaza Alemania y a pasos del Alcorta Shopping, se está desarrollando un emprendimiento boutique de 14 pisos con semipisos de 2 y 4 ambientes.
Todas las unidades dan al frente con balcón cuya orientación en N/NE.
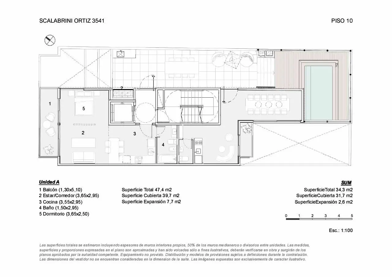
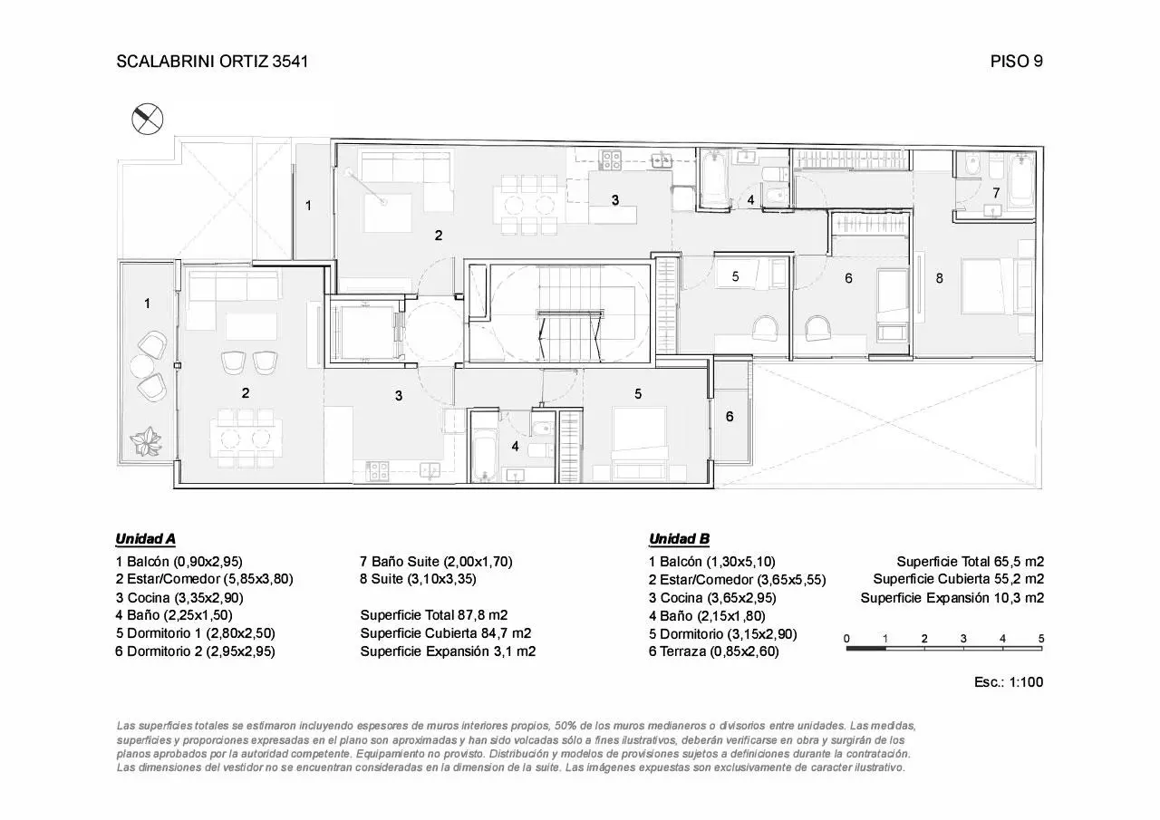
En el piso 10, se encuentran las amenities: piscina con solárium, SUM y sector de parrillas y es donde el edificio se transforma en una semi torre abriendo sus vistas laterales hacia Av. Figueroa Alcorta.
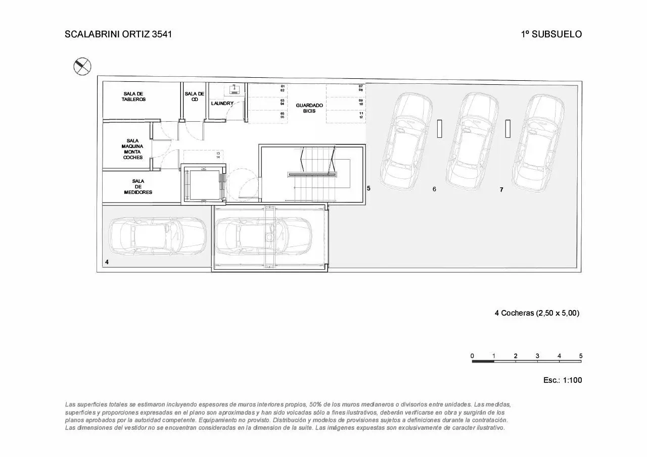
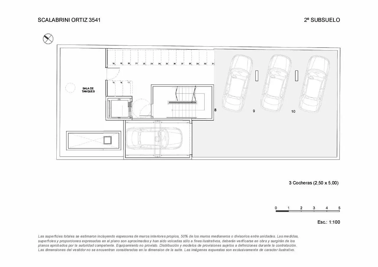
Cuenta también con 2 subsuelos de cocheras y parking de bicicletas.
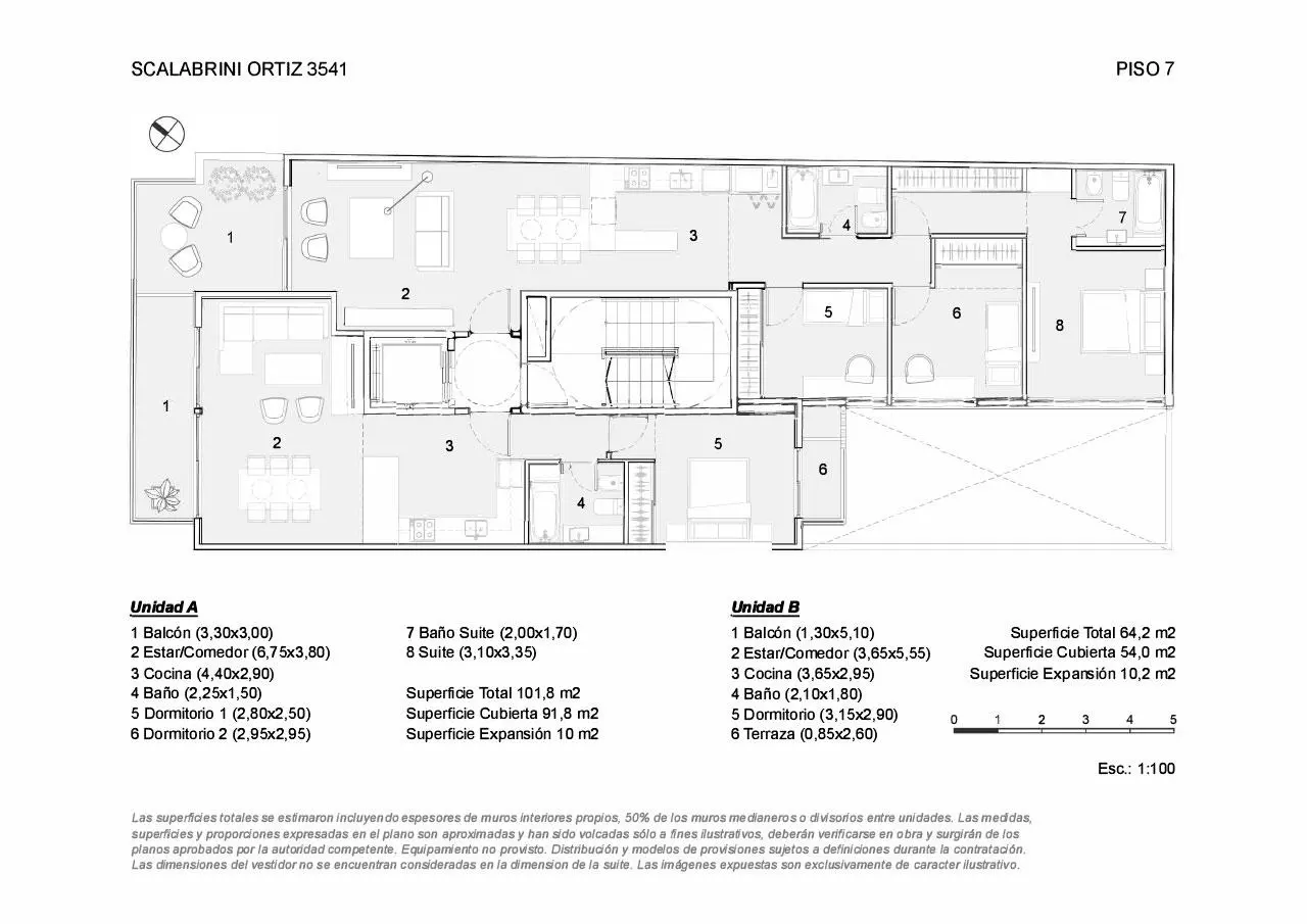
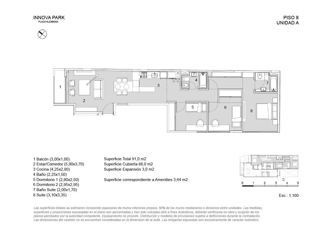
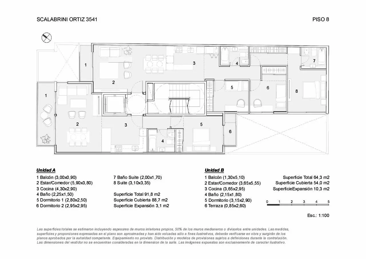
UNIDAD A: Los 4 ambientes cuentan con una importante recepción con salida a balcon, toilette de recepción, amplia cocina con barra y tres dormitorios, el ppal. en suite con vestidor más otro baño completo para segundo y tercer dormitorio
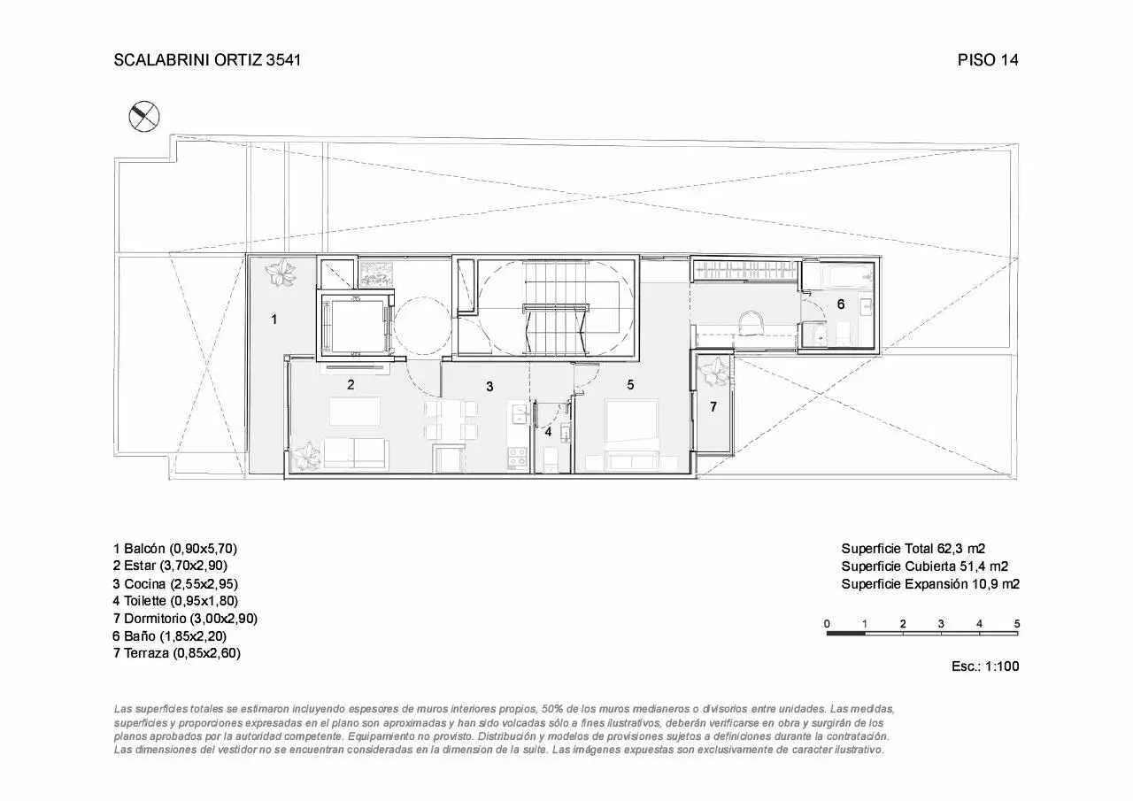
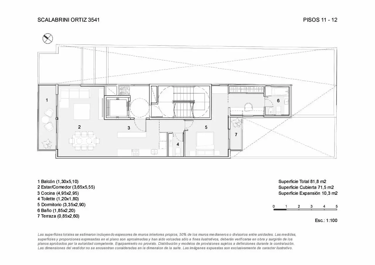
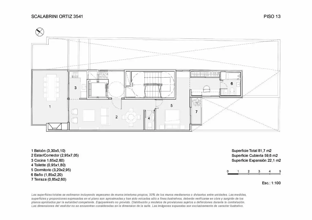
A partir del piso 11 las unidades se transforman en pisitos de 2 AMBIENTES de 62 a 80 m2 aproximado con balcones tanto al frente como al contrafrente. toilette de recepción, dormitorio en suite con vestidor y espacio para escritorio.
ALGUNOS DETALLES:
Carpinterías de aluminio con DVH
Calefacción y aire acondicionado individual por ductos. (no Split)
Agua caliente central
Pisos de porcelanato símil mármol calacatta
Frentes e interiores de placar completos
Mesadas de cocina de siles toné.
Aclaración
Todas las imágenes, planos, descripciones, y características indicadas son meramente referenciales e ilustrativas y podrán ser modificadas sin previo aviso.Las superficies indicadas son estimadas. Las superficies y medidas definitivas surgirán del plano de mensura final aprobado oportunamente por las autoridades pertinentes.Las fechas de inicio de obra o posesión son estimadas, podrán ser reprogramadas por la Dirección de obra y dependerán a su vez de un proceso de aprobaciones municipales u otros organismos intervinientes.Los precios indicados podrán modificarse sin previo aviso. El interesado deberá realizar las verificaciones respectivas previamente a la realización de cualquier operación, requiriendo por sí o sus profesionales las copias necesarias de la documentación que corresponda.












