

INFINITY TOWER | Unidad 10H Rio
Entrega inmediata


Entrega inmediata
Disposición
TORRE EAST O RIO
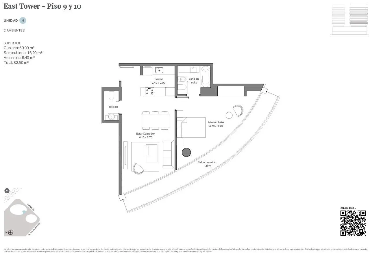
Exclusivo departamento de 1 dormitorio en suite y toilette de recepción. Espectacular vista a libertador y a ciudad. Balcón corrido en living y dormitorio con carpintería curva con dvh. altura de entrepiso de 3 metros.
CONSULTE POR OTRAS UNIDADES DE ESTE EMPRENDIMIENTO (EN OTRO PISO, OTRA UBICACION Y OTRAS TIPOLOGIAS).
DESCRIPCION DEL EDIFICIO
Infinity Towers es una experiencia de altura. Son dos torres que se elevan entre la Avenida del Libertador y la magnífica costanera, ascendiendo 21 plantas por encima del Río de la Plata. El innovador diseño y la disposición elíptica de las torres hace posible que todas las unidades a partir del noveno piso, fueran pensadas para que cada residencia tenga una vista panorámica única y exclusiva, ya sea al río o a la ciudad de Buenos Aires. Una interesante propuesta de “Concept Amenities”, hace de Infinity Towers un proyecto distinto a todos los demás.
UBICACIÓN
Las imponentes torres se elevan sobre la Avenida del Libertador al 1613 esquina Arenales, en la zona más dinámica de Vicente López. Una ubicación estratégica con un pulso fresco y único.
Un lugar en donde se conjugan a la perfección los accesos más directos a la Ciudad de Buenos Aires y todas sus posibilidades de transporte: terrestres (cercanía a autopistas), fluviales (puertos) y aéreas (aeropuertos Jorge Newbery, San Fernando, Ezeiza) junto a lo más destacado de la gastronomía, las actividades al aire libre, el verde y la cercanía del río.
La presencia cada vez mayor de edificios de oficinas, establecimientos educativos, centros de salud, bancos e instituciones financieras; junto a bares, clubes, restaurants e infinitos espacios de recreación, están cambiando para siempre la fisonomía de una zona en pleno auge, convirtiéndola en una de las alternativas más buscadas y valorizadas de los últimos 20 años.
PROYECTO
Concebido en los tableros del prestigioso estudio de arquitectura MRA+A, Infinity Towers propone un nuevo concepto arquitectónico sobre la Av. del Libertador.
El innovador diseño de ambas torres, con sus singulares formas elípticas, fue pensado para lograr las más excepcionales vistas al río y a la ciudad.
Los exteriores vidriados de las torres llenan de vida su interior, proyectando los distintos colores de la luz en cada rincón de sus amplios espacios. El delicado balance natural entre el cielo y el río se percibe desde sus amplios ventanales y balcones corridos, tanto en las residencias como en los Penthouses de lujo, ubicado en los remates del edificio.
Todo esto es posible por el ordenamiento en altura que se pensó para el conjunto: los dos primeros niveles de las torres presentan un exclusivo paseo gastronómico y de retail con estacionamiento en los subsuelos, 4 pisos de cocheras privadas y un piso de doble altura dedicado enteramente al catálogo de concept amenities, que a modo de copa, envuelve a ambas torres mediante una doble altura, lo cual genera que el primer piso de ambos edificios se encuentre en un equivalente a un noveno piso.
El Proyecto ofrece una variedad de propuestas pensadas para los múltiples estilos de vida actuales: desde unidades que van de 1 a 4 dormitorios, hasta residencias de tres pisos (penthouses), incluyendo en todos los casos una extensa propuesta de “concept amenities” y estacionamiento privado.
AMENITIES
El nuevo estándar de calidad y sofisticación de Infinity Towers no sólo está dado por las extraordinarias características edilicias de las torres, sino también por el amplio abanico de Amenities y comodidades que se pueden disfrutar.
-Piscina cubierta
-Gym
-Vestuarios
-Sauna
-SUM
-Piscina descubierta
-Parrillero
-Sala de reuniones
LIFESTYLE
Las torres Infinity Towers fueron concebidas para reflejar la esencia de una vida en equilibrio: un estilo propio, una vida extraordinaria.
Arquitectura, diseño y naturaleza se unen de manera armónica para crear un espacio único, proponiendo una nueva experiencia que combina la intensidad de la ciudad, la tranquilidad y el estilo de vida tan característico de Zona Norte.
EXCLUSIVIDAD EN EL MÁS ALTO NIVEL
“Las plantas elípticas de nuestro proyecto, como relaciones alto / ancho de sus elevaciones, se encuentran inscriptas en rectángulos áureos que nos aseguran esa proporción universal, la implantación de dos elipses conjugadas que se asemejan a un número ocho y sintetizan el infinito, o Infinity, en el idioma universal.”, comentan desde MRA+A.
Proyecto
Emprendimiento
Pisos | Subsuelos
Orientación del Frente
Cantidad de Unidades
Locales Comerciales
Ascensores