+11
- Home
- Emprendimientos
- GREEN BUILT X - Costa Rica 5460
Emprendimiento
GREEN BUILT X - Costa Rica 5460
Costa Rica 5460, Palermo Hollywood, Palermo, Capital Federal, Argentina
EstadoEn Construcción
Posesión Aproximada enjunio de 2026
Desde
USD249.716
Hasta
USD995.000
Destacado
Gold
Detalles
Proyecto
Doble frente
Emprendimiento
Edificio
Pisos | Subsuelos
9 piso(s)/1 subsuelo(s)
Orientación del Frente
Noreste
Cantidad de Unidades
41 en total
Cocheras en el Emprendimiento
Si
Locales Comerciales
1 en total
Ascensores
2
Apto profesional
Si
Renta temporal
Si
Ubicación
Amenities
- Bicicleteros
- Gimnasio
- Piscina
- Sector de Parrilla
- Solarium
- SUM
Avance de obra
1 / 1
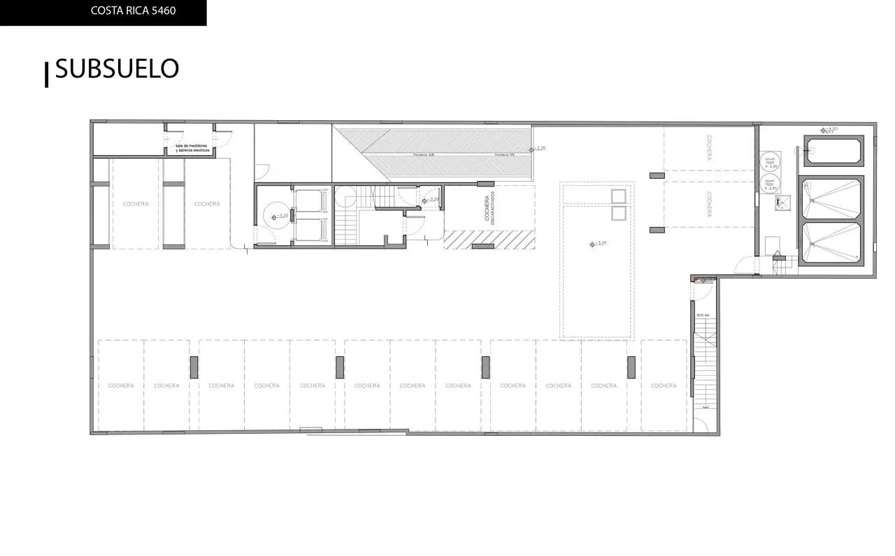
Planos
Emprendimiento1 / 9
Unidades
Servicios
- Electricidad
- Gas
- Pavimento
- Alcantarillado
- Agua corriente
Excelente oportunidad en PALERMO HOLLYWOOD!!
Se trata de un edificio de doble frente de diseño contemporáneo con unidades de 1, 2 y 3 ambientes con posibilidad de unificaciones en esta etapa de obra.
Ubicado cerca de vías de optima accesibilidad como Av Juan B. Justo, subte D, se encuentra a pasos del eje comercial de Av. Santa Fe, Rosedal, Bosques de Palermo, el Hipódromo. Polo Cientifico y el Shopping Los Arcos, zona el pleno desarrollo y nuevas construcciones de primer nivel
Las unidades son cómodas con amplios metrajes, luz u sol por dar tanto al frente como a un contrafrente abierto.
Los pisos altos cuentan con unidades con grandes balcones aterrazados.
Ideal para vivir, como estudios profesionales o renta temporaria por su ubicación privilegiada
Contara con cocheras con acceso por rampa en subsuelo y bicicleteros.
Amenities en Planta Baja:
-Parrilla
-Solárium
-Pileta
-Sum
-Gym
Aclaración
Todas las imágenes, planos, descripciones, y características indicadas son meramente referenciales e ilustrativas y podrán ser modificadas sin previo aviso.Las superficies indicadas son estimadas. Las superficies y medidas definitivas surgirán del plano de mensura final aprobado oportunamente por las autoridades pertinentes.Las fechas de inicio de obra o posesión son estimadas, podrán ser reprogramadas por la Dirección de obra y dependerán a su vez de un proceso de aprobaciones municipales u otros organismos intervinientes.Los precios indicados podrán modificarse sin previo aviso. El interesado deberá realizar las verificaciones respectivas previamente a la realización de cualquier operación, requiriendo por sí o sus profesionales las copias necesarias de la documentación que corresponda.












