Departamento

Jeronimo Salguero 2585 - 1401

146.5 3 ambientes3 baños
Jerónimo Salguero 2585, C1425DEJ Cdad. Autónoma de Buenos Aires, Argentina
Estado
En Construcción

Posesión Aproximada enfebrero de 2026

Precio
USD 973.400

Ambientes

(3)
Dormitorio(2)
  • Dormitorio estándar x2
Baño(3)
  • Baño Completo x2
  • Toilette
Espacio Cubierto
  • Living
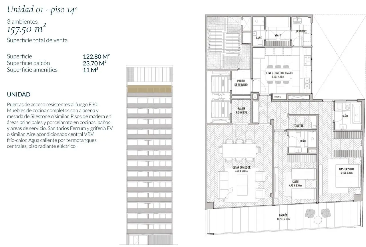
Superficie total (146.5 m²)
Cubierta
122.8 m²
Semicubierta
23.7 m²

Detalles del emprendimiento

Emprendimiento

Edificio

Ubicación

Mapa estatico

Amenities

  • Gimnasio
  • Piscina
  • SUM

Planos

Plano de la propiedad
Plano del emprendimiento
Plano del emprendimiento
Plano del emprendimiento
Plano del emprendimiento
Plano del emprendimiento
Plano del emprendimiento
Plano del emprendimiento
Plano del emprendimiento
Plano del emprendimiento
Propiedad1 / 10

Servicios

  • Electricidad
  • Pavimento
  • Alcantarillado
  • Agua corriente
Descripción
Increíble departamento de 3 ambientes ubicado en la calle Salguero, con balcón aterrazado. Cuenta con palier privado y palier de servicio. Su imponente recepción se abre hacia el living comedor, que dispone de acceso a amplias terrazas. Tiene dos dormitorios en suite, el principal con vestidor. La amplia cocina cuenta con comedor diario, isla central, lavadero independiente, dependencia de servicio y toilette de recepción.

Dicha unidad cuenta con cochera y baulera incluida en el valor publicado.

CONSULTE POR OTRAS UNIDADES DE ESTE EMPRENDIMIENTO ( EN OTRO PISO, OTRA UBICACION Y OTRAS TIPOLOGIAS).
Última actualización: 14/12/2025
Aclaración
Todas las imágenes, planos, descripciones, y características indicadas son meramente referenciales e ilustrativas y podrán ser modificadas sin previo aviso.Las superficies indicadas son estimadas. Las superficies y medidas definitivas surgirán del plano de mensura final aprobado oportunamente por las autoridades pertinentes.Las fechas de inicio de obra o posesión son estimadas, podrán ser reprogramadas por la Dirección de obra y dependerán a su vez de un proceso de aprobaciones municipales u otros organismos intervinientes.Los precios indicados podrán modificarse sin previo aviso. El interesado deberá realizar las verificaciones respectivas previamente a la realización de cualquier operación, requiriendo por sí o sus profesionales las copias necesarias de la documentación que corresponda.
Precio de la unidad
USD 973.400