Departamento

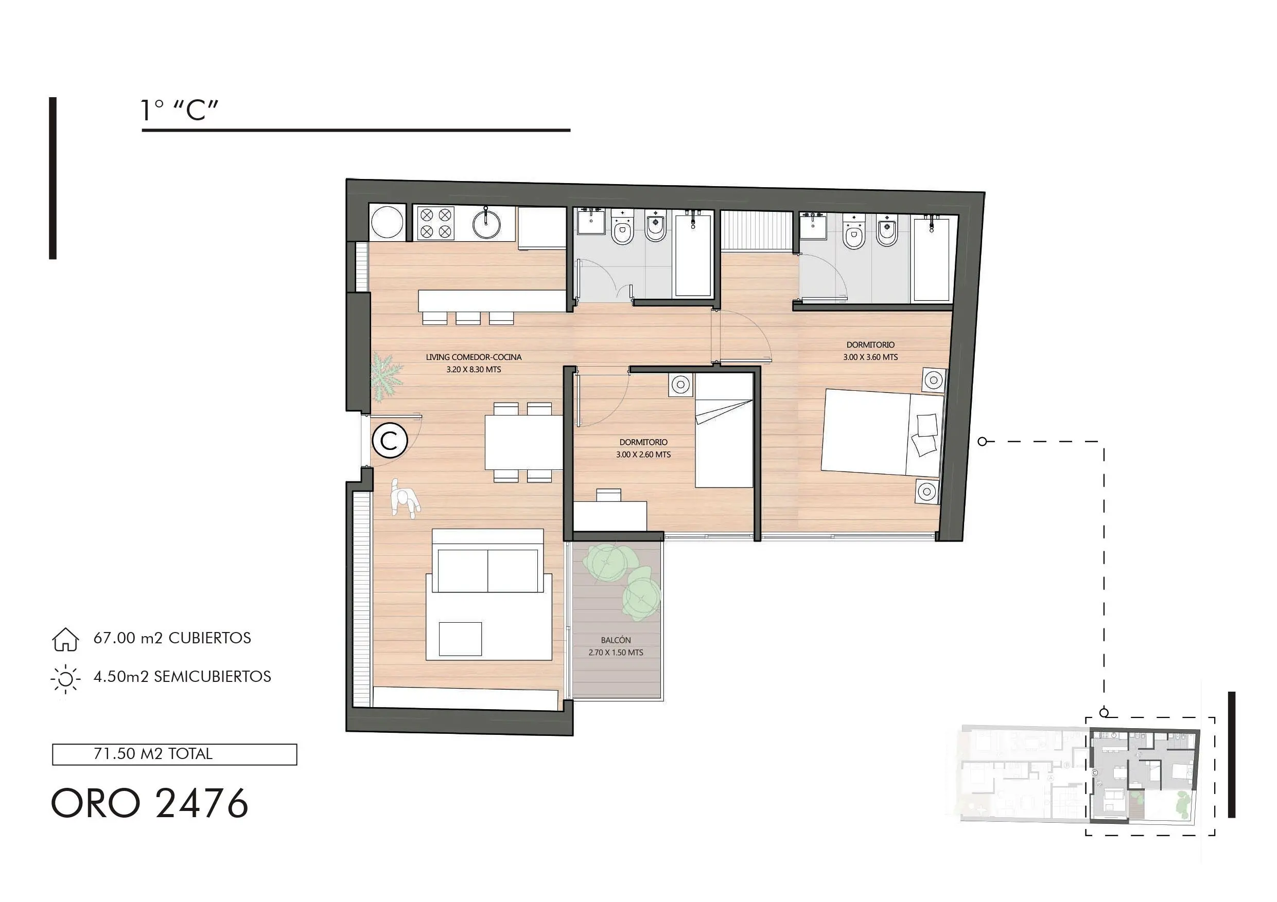
Oro 2476 - 1C

71.5 3 ambientes2 baños
Fray Justo santa maria de oro 2476
Estado
Obra Terminada

Entrega inmediata

Precio
USD 222.210

Detalles de la unidad

Disposición

Contrafrente

Ambientes

(3)
Dormitorio(2)
  • Dormitorio estándar x2
Baño(2)
  • Baño Completo x2
Espacio Cubierto
  • Living
Superficie total (71.5 m²)
Cubierta
67 m²
Semicubierta
4.5 m²

Detalles del emprendimiento

Proyecto

Frente Simple

Emprendimiento

Edificio

Pisos

12 piso(s)

Orientación del Frente

Sureste

Cantidad de Unidades

36 en total

Locales Comerciales

1 en total

Ascensores

1

Apto profesional

Si

Renta temporal

Si

Apto Blanqueo

Si

Ubicación

Mapa estatico

Amenities

  • Laundry
  • Piscina
  • Sector de Parrilla
  • Solarium
  • SUM

Planos

Plano de la propiedad
Plano de la propiedad
Plano del emprendimiento
Plano del emprendimiento
Plano del emprendimiento
Plano del emprendimiento
Plano del emprendimiento
Propiedad1 / 7

Servicios

  • Electricidad
  • Gas
  • Pavimento
  • Alcantarillado
  • Agua corriente
Descripción

Departamento 3 ambientes con balcón, el mismo cuenta con living comedor con cocina integrada, 2 dormitorios, el principal en suite y baño completo.


100% CASH


CONSULTE POR OTRAS UNIDADES DE ESTE EMPRENDIMIENTO ( EN OTRO PISO, OTRA UBICACION Y OTRAS TIPOLOGIAS).

Última actualización: 23/03/2026
Aclaración
Todas las imágenes, planos, descripciones, y características indicadas son meramente referenciales e ilustrativas y podrán ser modificadas sin previo aviso.Las superficies indicadas son estimadas. Las superficies y medidas definitivas surgirán del plano de mensura final aprobado oportunamente por las autoridades pertinentes.Las fechas de inicio de obra o posesión son estimadas, podrán ser reprogramadas por la Dirección de obra y dependerán a su vez de un proceso de aprobaciones municipales u otros organismos intervinientes.Los precios indicados podrán modificarse sin previo aviso. El interesado deberá realizar las verificaciones respectivas previamente a la realización de cualquier operación, requiriendo por sí o sus profesionales las copias necesarias de la documentación que corresponda.
Precio de la unidad
USD 222.210