

Departamento
Arcos 3631 - 14A
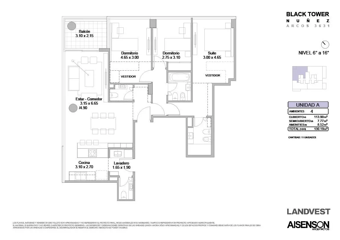
123.16 m²4 ambientes4 baños
Arcos 3631, C1429 Cdad. Autónoma de Buenos Aires, Argentina
Estado
Pozo
Posesión Aproximada enmayo de 2028
Precio
USD 664.335


Posesión Aproximada enmayo de 2028
Disposición
Espectacular 4 ambientes al frente, el mismo cuenta con living comedor con salida a balcón, cocina integrada, lavadero independiente, dispone de 3 habitaciones en suite, la principal con vestidor y toilette de recepción.
Proyecto
Pisos | Subsuelos
Cocheras en el Emprendimiento
Locales Comerciales
Ascensores
Apto profesional
Renta temporal