

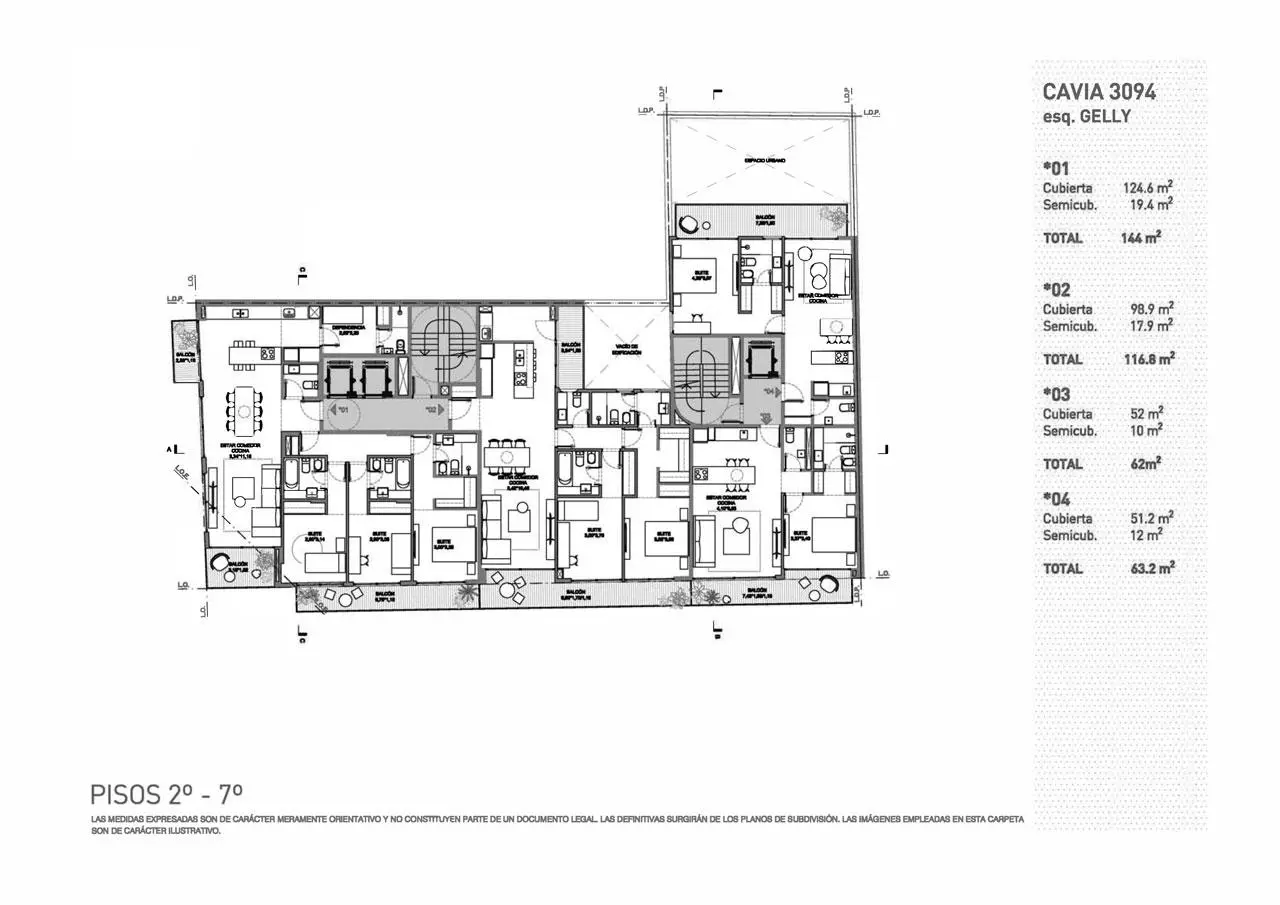
Departamento
SOLAR CAVIA | Unidad 201
156.96 m²4 ambientes5 baños
Cavia 3094, Palermo Chico, Palermo, Capital Federal, Argentina
Estado
En Construcción
Posesión Aproximada ennoviembre de 2027
Precio
USD 880.502


Posesión Aproximada ennoviembre de 2027
Espectacular departamento de 3 dormitorios al frente con dependencia de servicio. Todos los dormitorios son en suite, de los cuales, el principal cuenta con vestidor y se ubican al frente sobre Gelly. La unidad cuenta con amplio living-comedor apaisado sobre cavia con dos balcones aterrazados (sobre Gelly y Cavia), amplia cocina integrada, lavadero independiente y toilette de recepción.
CONSULTE POR OTRAS UNIDADES DE ESTE EMPRENDIMIENTO (EN OTRO PISO, OTRA UBICACION Y OTRAS TIPOLOGIAS).
Proyecto
Emprendimiento
Pisos | Subsuelos
Orientación del Frente
Cantidad de Unidades
Cocheras en el Emprendimiento
Locales Comerciales
Ascensores
Apto profesional