Departamento

AURA NUÑEZ | Unidad 333

71.06 2 ambientes2 baños
Cuba 4501, Nuñez, Capital Federal, Argentina
Estado
En Construcción

Posesión Aproximada enmarzo de 2029

Precio
USD 271.068

Detalles de la unidad

Disposición

Contrafrente

Ambientes

(2)
Dormitorio
  • Dormitorio en Suite con Vestidor
Baño(2)
  • Toilette
  • Baño en Suite
Espacio Cubierto(2)
  • Living-Comedor
  • Cocina Integrada
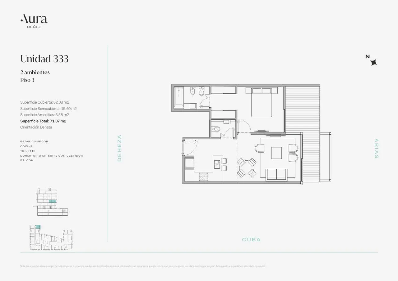
Superficie total (71.06 m²)
Cubierta
52.08 m²
Semicubierta
15.6 m²
Amenities
3.38 m²

Detalles del emprendimiento

Proyecto

Esquina

Emprendimiento

Edificio

Pisos | Subsuelos

5 piso(s)/2 subsuelo(s)

Orientación del Frente

Suroeste

Cantidad de Unidades

154 en total

Cocheras en el Emprendimiento

Si

Locales Comerciales

2 en total

Ascensores

8

Ubicación

Mapa estatico

Amenities

  • Piscina
    • Piscina Cubierta
  • Spa
    • Sauna Seco
  • Coworking
  • Gimnasio
  • Laundry
  • Microcine
  • Sala de Juego de Niños
  • Sector de Parrilla
  • Seguridad 24 hs
  • Solarium
  • SUM

Planos

Plano de la propiedad
Plano de la propiedad
Plano del emprendimiento
Plano del emprendimiento
Plano del emprendimiento
Plano del emprendimiento
Plano del emprendimiento
Plano del emprendimiento
Plano del emprendimiento
Plano del emprendimiento
Plano del emprendimiento
Propiedad1 / 11

Servicios

  • Electricidad
  • Gas
  • Pavimento
  • Alcantarillado
  • Agua corriente
Descripción

Dos ambientes con balcón aterrazado al contrafrente, dormitorio en suite con vestidor, cocina integrada, living comedor, y toilette de recepción.


El precio publicado incluye solo terminaciones base/ económica.


Solicitar Memoria descriptiva.


Consultar alternativa con:


-Terminaciones Estándar


-Terminaciones Full


CONSULTE POR OTRAS UNIDADES DE ESTE EMPRENDIMIENTO (EN OTRO PISO, OTRA UBICACION Y OTRAS TIPOLOGIAS).

Última actualización: 14/04/2026
Aclaración
Todas las imágenes, planos, descripciones, y características indicadas son meramente referenciales e ilustrativas y podrán ser modificadas sin previo aviso.Las superficies indicadas son estimadas. Las superficies y medidas definitivas surgirán del plano de mensura final aprobado oportunamente por las autoridades pertinentes.Las fechas de inicio de obra o posesión son estimadas, podrán ser reprogramadas por la Dirección de obra y dependerán a su vez de un proceso de aprobaciones municipales u otros organismos intervinientes.Los precios indicados podrán modificarse sin previo aviso. El interesado deberá realizar las verificaciones respectivas previamente a la realización de cualquier operación, requiriendo por sí o sus profesionales las copias necesarias de la documentación que corresponda.
Precio de la unidad
USD 271.068