

Departamento
Amenábar 892 - 901
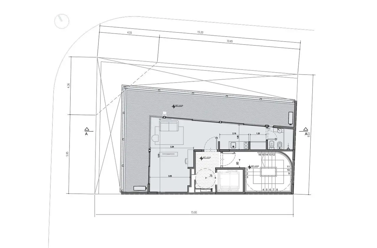
73.81 m²1 ambiente1 baños
Amenábar 892, C1426AJN Cdad. Autónoma de Buenos Aires, Argentina
Estado
En Construcción
Posesión Aproximada enmayo de 2028
Precio
USD 198.883


Posesión Aproximada enmayo de 2028
Disposición
Muy lindo monoambiente con balcón terraza, ubicado al frente. El mismo cuenta con dormitorio/ living comedor, cocina y baño completo.
Emprendimiento