

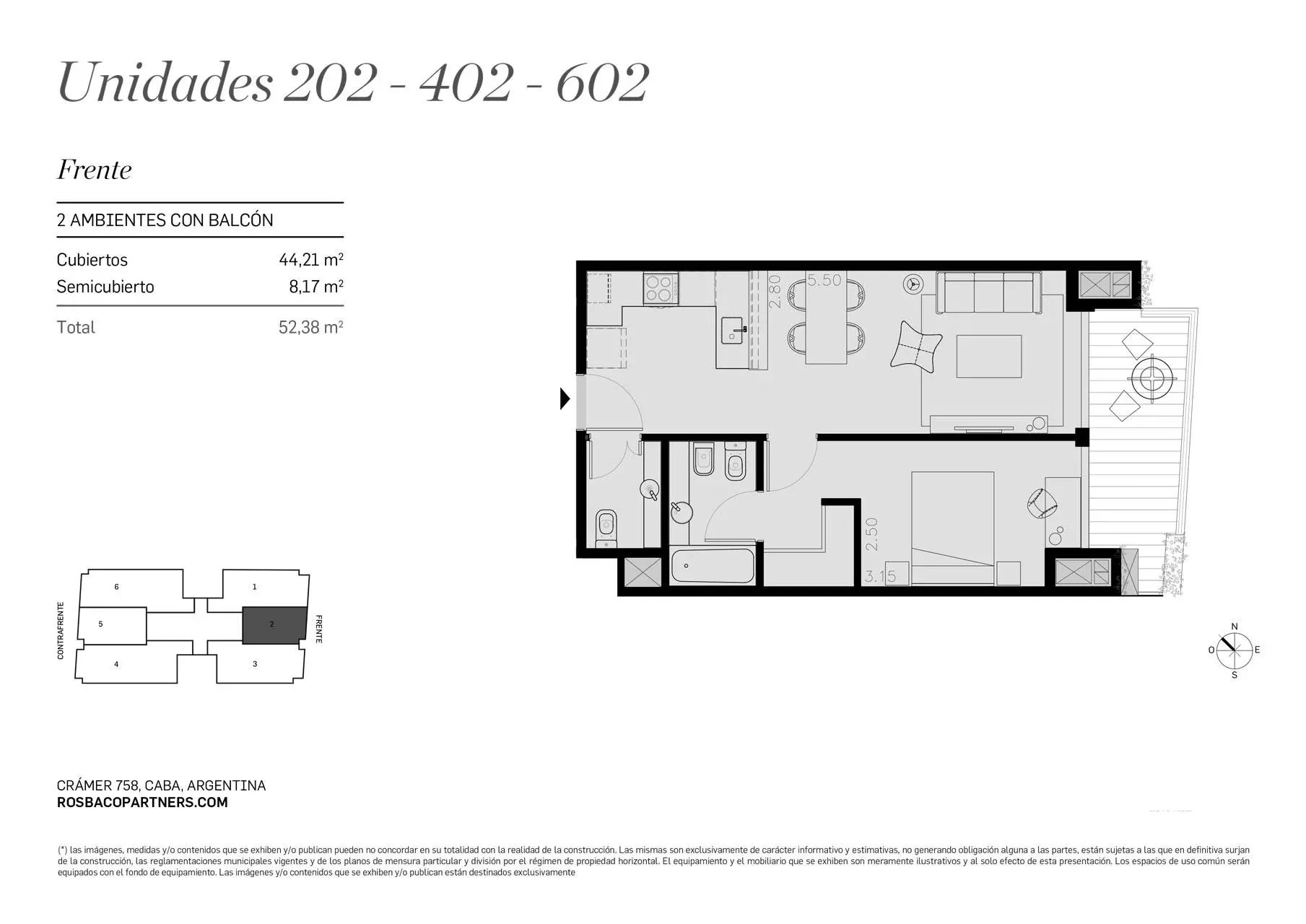
Departamento
Cramer 758 - 602
57 m²2 ambientes2 baños
Crámer 758, C1426ANR Cdad. Autónoma de Buenos Aires, Argentina
Estado
En Construcción
Posesión Aproximada ennoviembre de 2026
Precio
USD 186.960


Posesión Aproximada ennoviembre de 2026
Disposición
Proyecto
Emprendimiento
Pisos | Subsuelos
Cantidad de Unidades
Cocheras en el Emprendimiento
Ascensores
Apto profesional
Renta temporal
Apto Blanqueo