

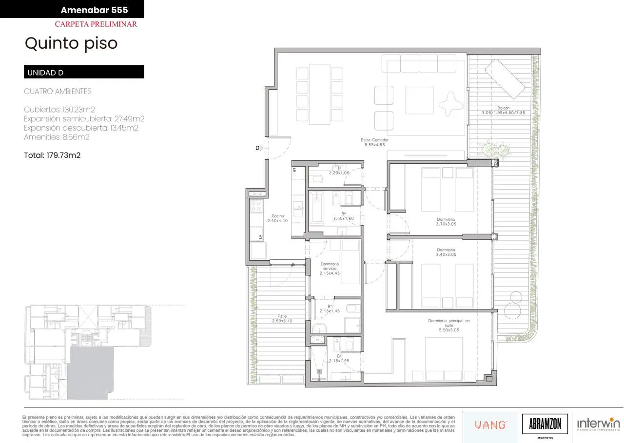
Departamento
Amenábar 555 - 5C
175.29 m²4 ambientes3 baños
Amenábar 555, C1426 Cdad. Autónoma de Buenos Aires, Argentina
Estado
Pozo
Posesión Aproximada enoctubre de 2028
Precio
USD 593.162


Posesión Aproximada enoctubre de 2028
Espectacular 4 ambientes al contrafrente, con excelente vista a pulmón con luz y sol, gran balcón corrido aterrazado. El mismo cuenta con amplia recepción, master suite con vestidor y baño compartimentado, dos dormitorios, baño completo, toilette de recepción y cocina independiente con dependencia y baño de servicio.
Proyecto
Emprendimiento
Pisos | Subsuelos
Cantidad de Unidades
Cocheras en el Emprendimiento
Locales Comerciales
Ascensores
Apto profesional
Apto Blanqueo