

Departamento
SINCLAIR Y CERVIÑO | Unidad 602
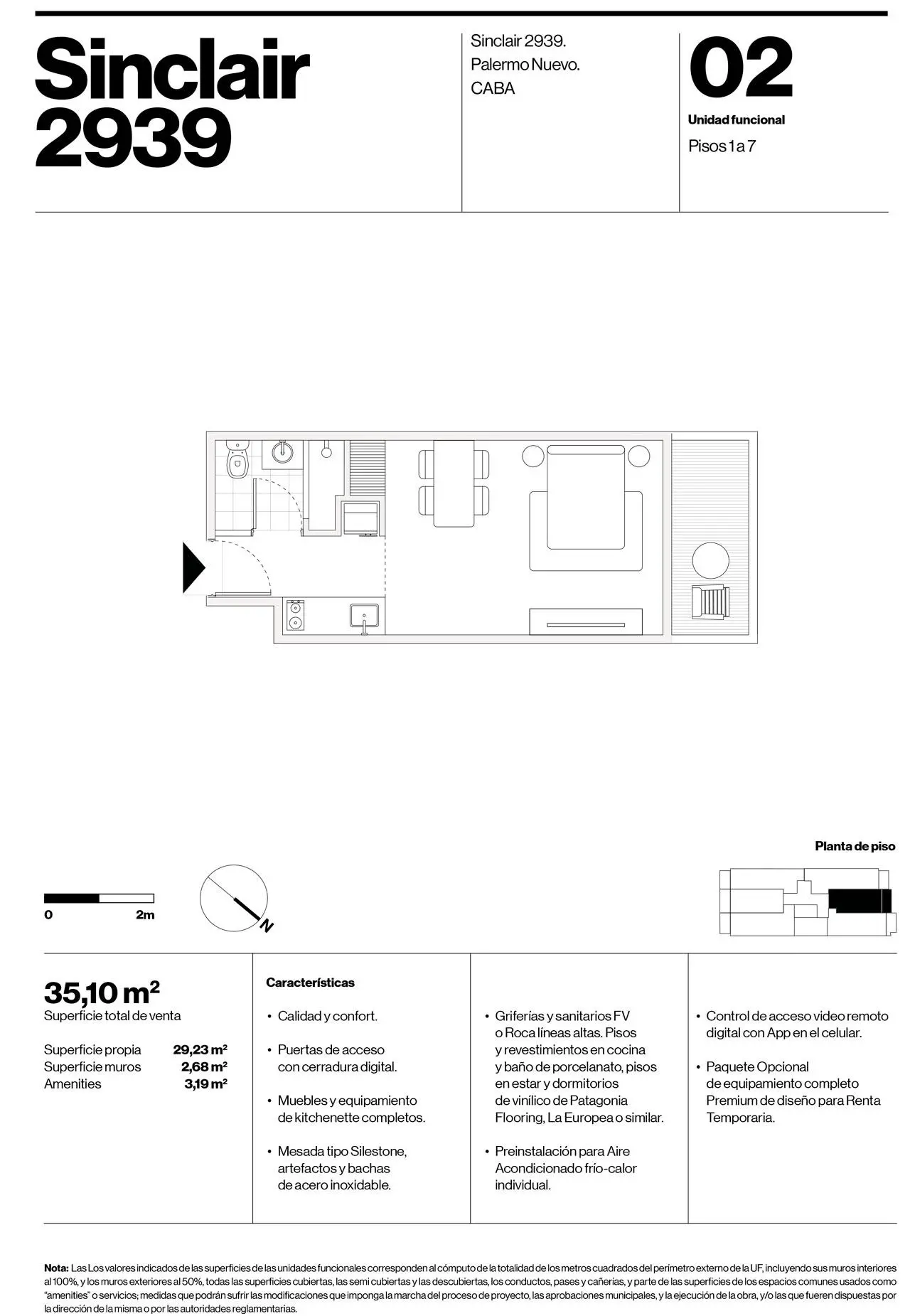
40.63 m²1 ambiente1 baños
Sinclair 2939, Palermo Nuevo, Ciudad de Buenos Aires, Argentina
Estado
Pozo
Posesión Aproximada ennoviembre de 2027
Precio
USD 172.475


Posesión Aproximada ennoviembre de 2027
Disposición
Unidad de 1 ambiente divisible al frente, con cocina integrada y baño completo. Ideal renta temporaria.
CONSULTE POR IMPORTANTE DESCUENTO POR PAGO CASH (UNIDADES EN OTRO PISO, OTRA UBICACION Y OTRAS TIPOLOGIAS).
Proyecto
Emprendimiento
Pisos | Subsuelos
Orientación del Frente
Cantidad de Unidades
Cocheras en el Emprendimiento
Ascensores
Apto profesional
Renta temporal