

Departamento
Céspedes 2518 - 305
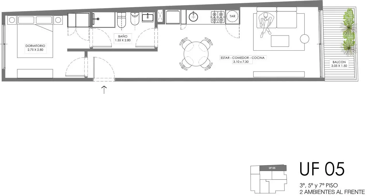
51.6 m²2 ambientes1 baños
Céspedes 2518, C1426DUJ C1426DUG, Cdad. Autónoma de Buenos Aires, Argentina
Estado
Pozo
Posesión Aproximada enmayo de 2028
Precio
USD 167.958


Posesión Aproximada enmayo de 2028
Disposición
Muy lindo 2 ambientes al frente, con balcón. El mismo cuenta con cocina integrada a living comedor, dormitorio y baño completo.
Emprendimiento