+25
- Home
- Emprendimientos
- DOME BUSINESS PLAZA - Av. Libertador 6201
Emprendimiento
DOME BUSINESS PLAZA - Av. Libertador 6201
Avda. Libertador 6201, Belgrano, Capital Federal, Argentina
EstadoObra Terminada
Entrega inmediata
Única unidad disponible
USD362.700
Destacado
Silver
Detalles
Proyecto
Esquina
Emprendimiento
OficinaEdificio
Pisos | Subsuelos
14 piso(s)/3 subsuelo(s)
Orientación del Frente
Suroeste
Cantidad de Unidades
81 en total
Cocheras en el Emprendimiento
Si
Ascensores
4
Ubicación
Amenities
- Coworking
- Sala de Reuniones
- SUM
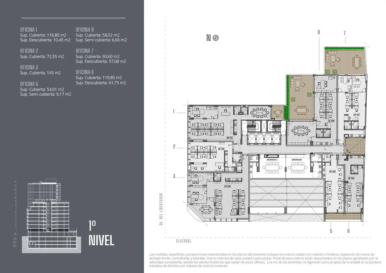
Planos
Emprendimiento1 / 18
Unidades
Servicios
- Electricidad
- Pavimento
- Alcantarillado
- Agua corriente
Emprendimiento de oficinas de primera categoría, cuenta con 81 unidades funcionales en 14 niveles y 3 subsuelos con 119 cocheras.
Amenities:
• Amplio hall de acceso.
• 3 niveles de cocheras en subsuelos.
• Salón de Usos Múltiples y expansión en el 9no nivel.
• Salas de reuniones común en el 1er nivel.
Especificaciones Generales:
Sistema constructivo general:
• Estructura de hormigón armado independiente, según cálculo.
• Muros divisorios de unidades y medianeros de mampostería con yeso proyectado y pintura de obra con látex para interiores.
• Muros interiores de las unidades funcionales con placas de yeso o mampostería.
Oficinas:
• Solados porcelanato símil madera primera calidad.
• Techo: Hormigón visto.
• Paredes: Yeso proyectado en muros divisorios.
Cocina:
• Techo: Cielorraso suspendido en placa de yeso.
• Artefacto de cocina: Anafe 1ª marca.
• Amueblamientos de cocina: Mueble bajo mesada en melamina, color a definir.
• Mesadas de granito con trasforo, color a definir.
• Bacha de acero inoxidable marca Mi Pileta o similar.
• Grifería: Monocomando de 1º calidad (FV o similar).
Baños:
• Solados: A definir.
• Techo: Cielorraso suspendido en placa de yeso.
• Paredes: A definir.
• Artefactos sanitarios: Inodoro y lavatorio de 1º calidad (FERRUM o ROCA o similar).
• Espejo a definir según proyecto.
• Grifería: Monocomando 1º calidad (FV o similar).
Aclaración
Todas las imágenes, planos, descripciones, y características indicadas son meramente referenciales e ilustrativas y podrán ser modificadas sin previo aviso.Las superficies indicadas son estimadas. Las superficies y medidas definitivas surgirán del plano de mensura final aprobado oportunamente por las autoridades pertinentes.Las fechas de inicio de obra o posesión son estimadas, podrán ser reprogramadas por la Dirección de obra y dependerán a su vez de un proceso de aprobaciones municipales u otros organismos intervinientes.Los precios indicados podrán modificarse sin previo aviso. El interesado deberá realizar las verificaciones respectivas previamente a la realización de cualquier operación, requiriendo por sí o sus profesionales las copias necesarias de la documentación que corresponda.


















