Departamento

Av. Córdoba 5277 - 8A

0 1 ambiente1 baños
Av. Córdoba 5277, Palermo Soho, Palermo, Capital Federal, Argentina
Estado
Obra Terminada

Entrega inmediata

Precio
USD 240.000

Ambientes

(1)
Baño
  • Baño Completo
Espacio Cubierto
  • Living

Detalles del emprendimiento

Proyecto

Frente Simple

Emprendimiento

Edificio

Pisos

10 piso(s)

Orientación del Frente

Noreste

Cantidad de Unidades

37 en total

Locales Comerciales

1 en total

Ascensores

1

Apto profesional

Si

Apto Blanqueo

Si

Ubicación

Mapa estatico

Amenities

  • Bicicleteros
  • Gimnasio
  • Laundry
  • Piscina
  • Sector de Parrilla
  • Solarium
  • SUM

Planos

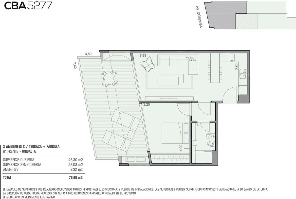
Plano de la propiedad
Plano del emprendimiento
Plano del emprendimiento
Plano del emprendimiento
Plano del emprendimiento
Plano del emprendimiento
Plano del emprendimiento
Plano del emprendimiento
Plano del emprendimiento
Plano del emprendimiento
Propiedad1 / 10

Servicios

  • Electricidad
  • Gas
  • Pavimento
  • Alcantarillado
  • Agua corriente
  • Agua Caliente Central
Última actualización: 29/01/2026
Aclaración
Todas las imágenes, planos, descripciones, y características indicadas son meramente referenciales e ilustrativas y podrán ser modificadas sin previo aviso.Las superficies indicadas son estimadas. Las superficies y medidas definitivas surgirán del plano de mensura final aprobado oportunamente por las autoridades pertinentes.Las fechas de inicio de obra o posesión son estimadas, podrán ser reprogramadas por la Dirección de obra y dependerán a su vez de un proceso de aprobaciones municipales u otros organismos intervinientes.Los precios indicados podrán modificarse sin previo aviso. El interesado deberá realizar las verificaciones respectivas previamente a la realización de cualquier operación, requiriendo por sí o sus profesionales las copias necesarias de la documentación que corresponda.
Precio de la unidad
USD 240.000