

Departamento
BNH ORO | Unidad 10B
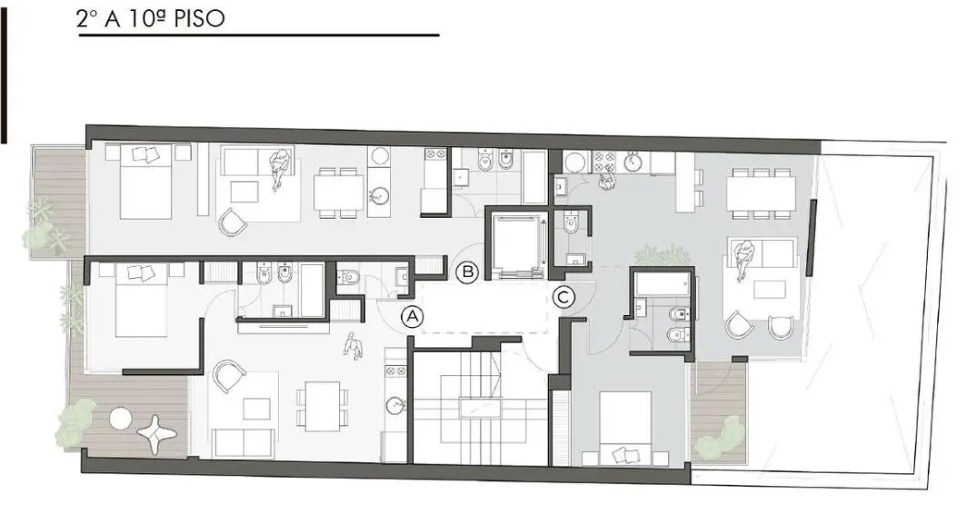
46.6 m²1 ambiente1 baños
Fray Justo santa maria de oro 2476
Estado
En Construcción
Posesión Aproximada endiciembre de 2025
Precio
USD 169.000


Posesión Aproximada endiciembre de 2025
Disposición
Departamento Monoambiente divisible al frente. Cocina integrada / Dormitorio y baño completo.
"CONSULTE POR OTRAS UNIDADES DE ESTE EMPRENDIMIENTO ( EN OTRO PISO, OTRA UBICACION Y OTRAS TIPOLOGIAS)"
Proyecto
Emprendimiento
Pisos
Orientación del Frente
Cantidad de Unidades
Locales Comerciales
Ascensores
Apto profesional
Renta temporal
Apto Blanqueo