

Oficina
Godoy Cruz 2860 - 403 (AP4945332)
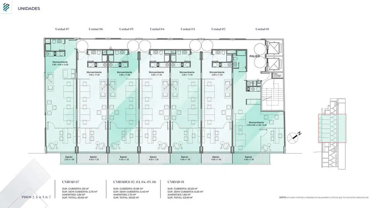
51.9 m²1 ambiente1 baños
Godoy Cruz 2860, Palermo Nuevo, Palermo, Capital Federal, Argentina
Estado
Obra Terminada
Entrega inmediata
Precio
USD 230.000


Entrega inmediata
Disposición
Tu studio, tu showroom, tu oficina, tu consultorio, tu lugar!
Amplias unidades apto profesional con excelentes vistas.
Emprendimiento