+14
- Home
- Emprendimientos
- ACQUA MARINAS - Av. del Puerto 1585
Emprendimiento
ACQUA MARINAS - Av. del Puerto 1585
Av. del Puerto, Rincón de Milberg, Provincia de Buenos Aires, Argentina
EstadoEn Construcción
Posesión Aproximada enmarzo de 2026
Precio unico
USD1
Destacado
Gold
Detalles
Emprendimiento
Edificio
Ubicación
Amenities
- Gimnasio
- Piscina
- Sector de Parrilla
- Solarium
- SUM
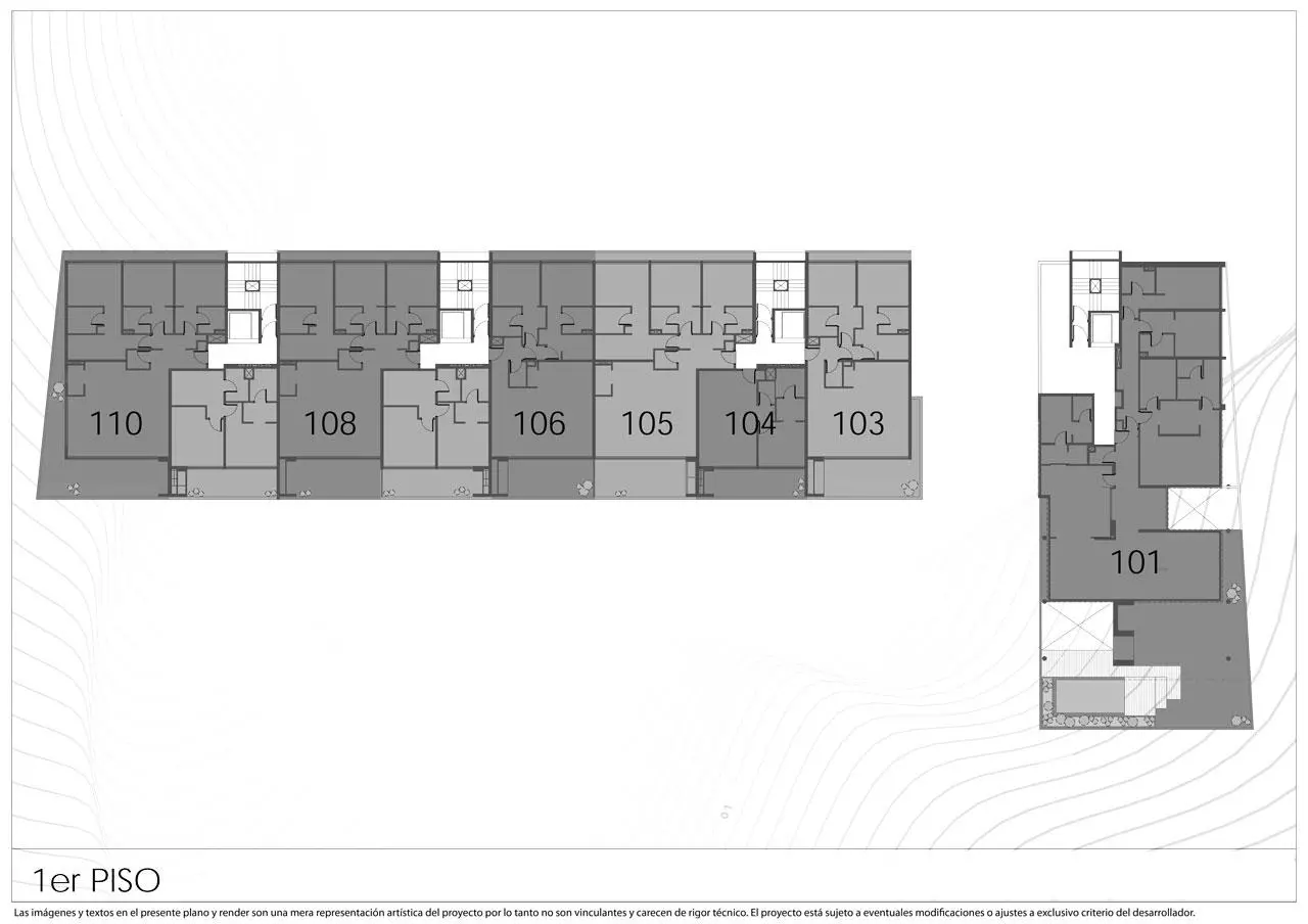
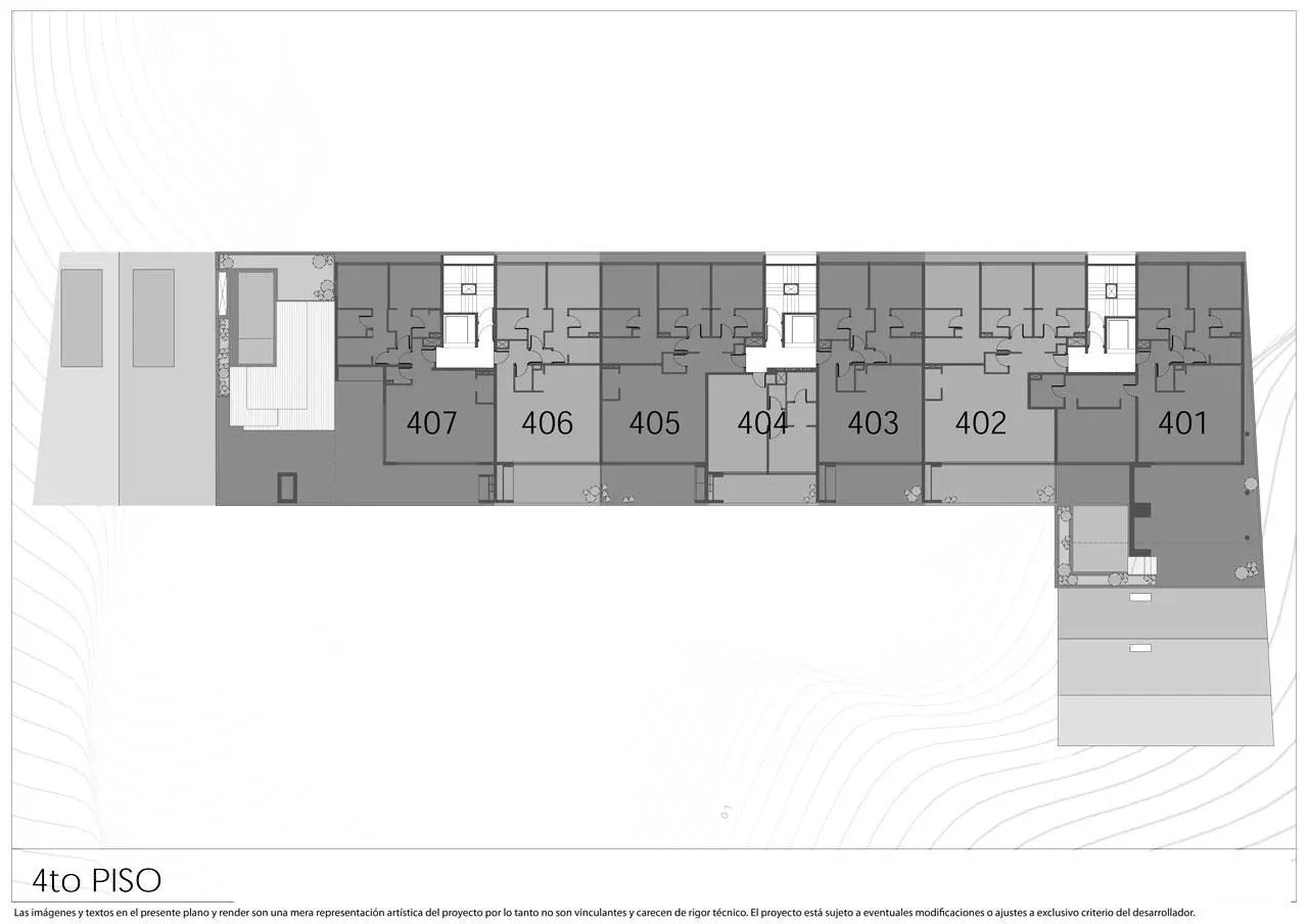
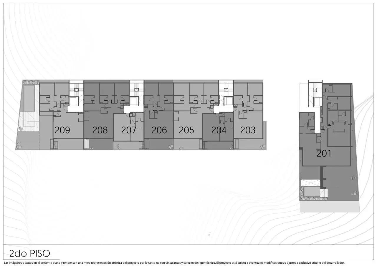
Planos
Emprendimiento1 / 8
Unidades
Servicios
- Electricidad
- Gas
- Pavimento
- Alcantarillado
- Agua corriente
ACQUA MARINAS se encuentra emplazado sobre la Av. del Puerto con balcones aterrazados hacia la costa, Acqua Marinas busca vincular a partir de visuales, la vivienda y el entorno del Río. Con los amenities comunes como principales puntos de encuentro.
El edificio cuenta con unidades de 2 a 4 ambientes. Algunas con amplias terrazas semicubiertas, parrilla y vista al rio jardín y otras con amplias terrazas. El edificio va contar con SUM, gimnasio con aparatos de ultima generación, pileta y solárium húmedo exterior, piscina de exterior, pileta climatizada cubierta, muelle privado, mirador hacia el rio, fogonero frente al rio, senderos peatonales sobre la costa, terrazas/jardines privados con parrilla y vista al rio y salida al río Lujan.
Aclaración
Todas las imágenes, planos, descripciones, y características indicadas son meramente referenciales e ilustrativas y podrán ser modificadas sin previo aviso.Las superficies indicadas son estimadas. Las superficies y medidas definitivas surgirán del plano de mensura final aprobado oportunamente por las autoridades pertinentes.Las fechas de inicio de obra o posesión son estimadas, podrán ser reprogramadas por la Dirección de obra y dependerán a su vez de un proceso de aprobaciones municipales u otros organismos intervinientes.Los precios indicados podrán modificarse sin previo aviso. El interesado deberá realizar las verificaciones respectivas previamente a la realización de cualquier operación, requiriendo por sí o sus profesionales las copias necesarias de la documentación que corresponda.













